Найти в Дзене

Из квартиры в новостройке — в уютное пространство: до и после

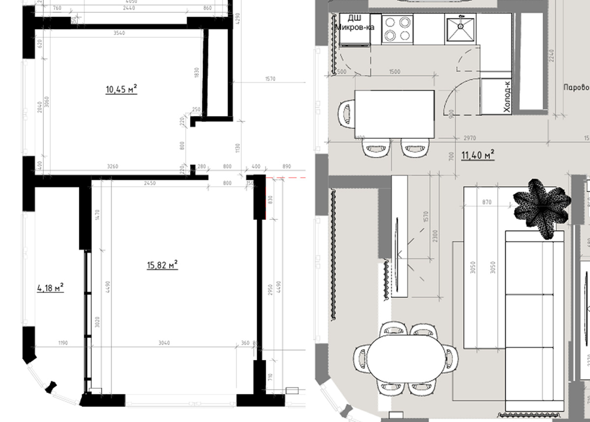
Как превратить пустые комнаты, серый бетон в новостройке, в уютную квартиру, стиль которой будет актуален даже годы спустя? Такая задача не звучит легкой. Но история одной квартиры площадью 101 м2 доказывает: с правильной командой идеи воплощаются в реальность. Компания «СтройМир» взяла этот проект и создала пространство, где каждая деталь служит комфорту, не жертвуя эстетикой. Хозяева квартиры — молодая семья с ребенком — мечтали об интерьере, который бы сочетал классику и современность, был лаконичным, но не лишенным привлекающих внимания акцентов. Они хотели, чтобы дом был не просто красивым, но и функциональным. Ключевые пожелания: Задача не из простых: сочетать стиль, практичность и нестандартные решения. Ниже рассказали, что мы для этого сделали. Что сделали? Преимуществом квартиры была утепленная лоджия с панорамными окнами. Но чтобы это пространство использовалось более эффективно, мы демонтировали стеклянные двери и расширили гостиную. Так в квартире появилось место для обед
Оглавление

Как превратить пустые комнаты, серый бетон в новостройке, в уютную квартиру, стиль которой будет актуален даже годы спустя? Такая задача не звучит легкой. Но история одной квартиры площадью 101 м2 доказывает: с правильной командой идеи воплощаются в реальность. Компания «СтройМир» взяла этот проект и создала пространство, где каждая деталь служит комфорту, не жертвуя эстетикой.

Пожелания заказчиков

Хозяева квартиры — молодая семья с ребенком — мечтали об интерьере, который бы сочетал классику и современность, был лаконичным, но не лишенным привлекающих внимания акцентов. Они хотели, чтобы дом был не просто красивым, но и функциональным.

Ключевые пожелания:

  • Общий стиль. Современный, но с элементами классики — концептуальный, но не скучный.
  • Акценты в каждой комнате. Необычные детали, которые притягивают взгляд.
  • Функциональность. Пространство должно работать на семью: от удобной кухни до уютной детской.
  • Панорамный вид. Объединить лоджию с гостиной, чтобы открыть обзор на город и создать обеденную зону.
  • Уют и индивидуальность. Каждая комната должна отражать характер хозяев.

Задача не из простых: сочетать стиль, практичность и нестандартные решения. Ниже рассказали, что мы для этого сделали.

Гостиная и обеденная зона

Что сделали? Преимуществом квартиры была утепленная лоджия с панорамными окнами. Но чтобы это пространство использовалось более эффективно, мы демонтировали стеклянные двери и расширили гостиную.

Так в квартире появилось место для обеденной зоны. В ней разместили большой обеденный стол из натурального дерева со стульями в современной обивке. Добавили подвесные светильники с теплым светом, чтобы создать уют вечером.

Телевизор закрепили на шарнирном механизме. Его можно повернуть в любую сторону, и даже со смещением он выглядит гармонично.

Акценты. Гостиная стала местом, где хочется собираться всей семьей или встречать друзей.

Кухня

Одно из популярных решений в современных квартирах — объединение кухни с гостиной. В нашем примере мы убрали хозяевам перегородку между этими зонами, создав просторное пространство для готовки, отдыха и встреч с друзьями.

Что сделали? Спроектировали кухню в отдельном углу с островом. Теперь можно готовить ужин и болтать с друзьями за бокалом вина. Остров служит для быстрых перекусов или утреннего кофе.

Акценты. Выбрали столешницу из керамогранита и добавили встроенную подсветку. Фартук из плитки с геометрическим узором стал центральным достоинством интерьера. Кухня получилась не только стильной, но и невероятно практичной.

Детская

Для ребенка хотелось создать личное пространство, в котором важное место занимает игровая зона. Однако, родителям не хотелось, чтобы по цвету и стилю комната сильно отличалась от интерьеров всей квартиры.

Что сделали? Добавили декоративное панно с нежным рисунком на стене. Установили мягкое освещение с диммерами, чтобы менять атмосферу от яркой для игр до теплой для сна. Мебель выбрали с округлыми формами — стилистическое решение, которое украшает и делает комнату более безопасной для малыша.

Акценты. Текстиль в пастельных тонах и пушистый ковер сделали комнату уютной. Детская стала любимым местом ребенка.

Спальня

Спальня - место для отдыха и сна, по желанию заказчиков важно было сделать её стильной и уютной, но не перегрузить комнату лишней мебелью и декором.

Что сделали? Использовали глубокие цветовые оттенки на поверхностях и текстиле. Кровать с мягким изголовьем стала центром композиции. Добавили встроенные шкафы, чтобы сохранить пространство.

Акценты. Бра с классическим дизайном и шторы с легким блеском добавили нотку элегантности.

-5

Ванная и гардеробная

В квартире спроектировано два сан узла. В одном установили ванную, в другом - душевую кабину.

В ванной использовали керамогранит в светлых тонах и добавили большую зеркальную панель, чтобы визуально расширить пространство. Установили подвесную сантехнику для легкости уборки.

Спроектировали отдельную зону с полками, штангами и ящиками в гардеробной. Теперь все вещи на своих местах, и в спальне нет лишних шкафов.

-7

Чтобы связать все комнаты, мы уложили ламинат цвета "беленый дуб" с узором «елочка». Мы выбрали премиальные материалы для покрытия пола, чтобы обеспечить эстетичность и практичность на долгие годы.

Наша команда создает пространство, которое отражает именно вас.

Пожелание заказчика — это руководство к действию. Мы не навязываем свои идеи, а воплощаем ваши.

  • Работаем на результат. От эскиза до финального штриха — все под контролем. Вы получаете именно то, что задумали.
  • Любим нестандартные задачи. Перепланировки, акцентные стены, шарнирные механизмы, панорамные виды — мы найдем решение для любой идеи.
  • Гарантируем качество. Все на высшем уровне - от материалов до исполнения.
А вам понравилась реализация этого проекта? Что бы вы еще добавили в интерьер, если бы заказывали дизайн такой квартиры?

СтройМир - ремонт квартир в Москве | Дзен

Чтобы не пропустить новые идеи и поводы для вдохновения, подписывайтесь на наш канал в Дзене! Здесь вас ждут истории, советы и секреты идеального ремонта.