Добавить в корзинуПозвонить
Найти в Дзене

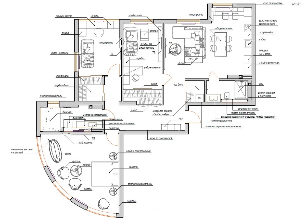
4 санузла на плане и в жизни: чертеж проектировшика против реальных фотографий

Дизайнер интерьера Ольга Романова создала проекты для квартир в новостройке ЖК Парус и ЖК Адмирал в Самаре. В каждой квартире по два санузла. В этой статье мы рассмотрим эти санузлы на плане расстановки мебели и сантехнического оборудования, а также на реальных фотографиях от дизайнера интерьера, которые сделаны после ремонта. Будем проверять, совпадет ли впечатление от планировки с итоговым результатом, который ждал жильцов. Понравился итог? Пишите в комментариях! Трехкомнатная квартира с большой кухней-гостиной, панорамным остеклением в спальне (и отдельностоящей ванной в спальне), большим количеством мест хранения и двумя санузлами, на которых мы остановимся подробнее. Один из них разработан дизайнером интерьера с джакузи у окна, второй - с душевой. Когда планировка позволяет сделать ванную комнату с окном - это всегда везение, которое можно обернуть в особую атмосферу в этом помещении. С этим должен справиться хороший дизайнер. Около окна размещено джакузи, размером оно больше ст
Оглавление

Дизайнер интерьера Ольга Романова создала проекты для квартир в новостройке ЖК Парус и ЖК Адмирал в Самаре.

В каждой квартире по два санузла. В этой статье мы рассмотрим эти санузлы на плане расстановки мебели и сантехнического оборудования, а также на реальных фотографиях от дизайнера интерьера, которые сделаны после ремонта.

Будем проверять, совпадет ли впечатление от планировки с итоговым результатом, который ждал жильцов. Понравился итог? Пишите в комментариях!

Квартира 1. ЖК Адмирал

Трехкомнатная квартира с большой кухней-гостиной, панорамным остеклением в спальне (и отдельностоящей ванной в спальне), большим количеством мест хранения и двумя санузлами, на которых мы остановимся подробнее. Один из них разработан дизайнером интерьера с джакузи у окна, второй - с душевой.

Планировка квартиры ЖК Адмирал
Планировка квартиры ЖК Адмирал

Когда планировка позволяет сделать ванную комнату с окном - это всегда везение, которое можно обернуть в особую атмосферу в этом помещении. С этим должен справиться хороший дизайнер.

Около окна размещено джакузи, размером оно больше стандартной ванны. Также в санузле подвесной унитаз с инсталляцией и столешница с раковиной в ней.

Как можно видеть на плане, это комната вытянутой формы, поэтому ее планировка оказалось задачей не из легких. Ниже несколько итоговых фотографий в галерее:

Доступ ко второй ванной комнате есть из кухни-гостиной. Ее метраж позволяет сохранить простор помещения.

Здесь разместили душ с ограждением, подвесной унитаз и встроенную раковину, аналогичную той, что стоит в первой ванной комнате.

Квартира 2. ЖК Парус

Это двухкомнатная квартира с большой кухней-гостиной, двумя гардеробными, постирочной и двумя санузлами.

-4

Первый санузел находится сразу справа от входа в квартиру (слева снизу на планировке). В него не поместилась бы в длину полноценная ванна, поэтому ее заменили на поддон и душевое ограждение, а ниша в стене за душем стала удобной зоной хранения.

Также в санузле размещены напольная раковина без тумбы и подвесной унитаз.

Вот как это реализовано:

Второй санузел значительно больше.

На подиум встала полноценная ванна, также размещены длинная столешница с встроенной в нее раковиной и унитаз с инсталляцией и гигиеническим душем.

Для всех ванных комнат в этой статье выбран единый стиль и одно сочетание текстур и цветов. Популярные в последние годы черные аксессуары, а также черная сантехника и мебель для ванных комнат выигрышно смотрится на фоне терраццо с черными вкраплениями. Это коллекция керамогранита Etagi от KERRANOVA. Подробнее о ней можно прочитать тут:

Чтобы быть в курсе всех наших новостей, подпишитесь на официальные каналы KERRANOVA:

Telegram: t.me/TM_Kerranova
ВКонтакте: vk.com/tmkerranova
Официальный сайт KERRANOVA: kerranova.ru