Добавить в корзинуПозвонить
Найти в Дзене

Модульный дом ROSA 9×9 с огромной террасой и панорамным остеклением — дом мечты для жизни и отдыха

Проект общей площадью 97,12 м² — это готовое решение для комфортного проживания на природе, в посёлке или под сдачу в аренду. Основной акцент — на просторную кухню-гостиную и открытую террасу 54 м², которую можно использовать как летнюю гостиную, лаунж или зону для барбекю. Планировка: Что делает проект особенным: Преимущества для производства и продаж: Кому подойдёт: Этот модуль — не просто жильё, а стиль жизни. Простор, свет, открытость и уют — в одном решении.

Проект общей площадью 97,12 м² — это готовое решение для комфортного проживания на природе, в посёлке или под сдачу в аренду. Основной акцент — на просторную кухню-гостиную и открытую террасу 54 м², которую можно использовать как летнюю гостиную, лаунж или зону для барбекю.

-2

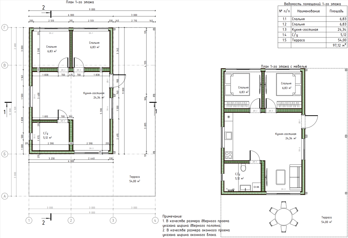
Планировка:

  • Кухня-гостиная — 24,34 м²
  • Спальни — 2×6,83 м²
  • Санузел — 5,12 м²
  • Терраса — 54,00 м²

Что делает проект особенным:

  • Панорамные окна по фасаду — визуальное расширение пространства и максимум света
  • Большая кухня-гостиная позволяет комфортно разместить зону отдыха, столовую и кухню
  • Две отдельные спальни подойдут для семьи, гостей или арендаторов
  • Просторная терраса создаёт дополнительное ценное пространство, особенно в тёплое время
  • Удобная геометрия — дом легко делится на модули, хорошо транспортируется и быстро монтируется

Преимущества для производства и продаж:

  • Универсальный формат — для ПМЖ, дачи, турбаз и аренды
  • Выгодное соотношение площади и стоимости: всего 43 м² внутренней площади + 54 м² террасы
  • Актуальный внешний вид с отделкой под дерево — тренд в малоэтажном домостроении
  • Высокая маржинальность — терраса увеличивает ценность, но не требует дорогостоящих инженерных решений
  • Лёгкий фундамент — возможна установка на сваи или блоки

Кому подойдёт:

  • Молодым семьям или парам
  • Владельцам участков на природе
  • Инвесторам в аренду и глэмпинг
  • Девелоперам малоэтажной застройки

Этот модуль — не просто жильё, а стиль жизни. Простор, свет, открытость и уют — в одном решении.