Добавить в корзинуПозвонить
Найти в Дзене

Модульный дом ALBA 8×9 с гардеробной и панорамной террасой — рациональное решение с продуманной эргономикой

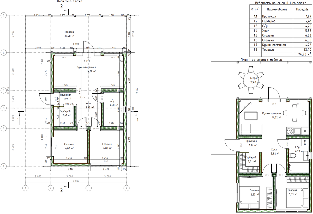
Этот проект объединяет компактность и продуманность: дом площадью 74,7 м² содержит полноценные жилые зоны и просторную террасу на 32 м². Такой модуль отлично подойдёт как для постоянного проживания, так и для размещения в аренду на турбазах и в загородных проектах. Планировка: Ключевые особенности: Преимущества для производителей: Идеальное применение: Проект подойдёт тем, кто хочет производить не просто модуль, а продуманный дом с высоким потребительским спросом и лёгкой реализацией.
ALBA 25MD08
ALBA 25MD08

Этот проект объединяет компактность и продуманность: дом площадью 74,7 м² содержит полноценные жилые зоны и просторную террасу на 32 м². Такой модуль отлично подойдёт как для постоянного проживания, так и для размещения в аренду на турбазах и в загородных проектах.

-2

Планировка:

  • Кухня-гостиная — 14,22 м²
  • Спальня 1 — 6,83 м²
  • Спальня 2 — 5,83 м²
  • Гардероб — 2,41 м²
  • Санузел — 4,20 м²
  • Холл — 5,62 м²
  • Прихожая — 1,99 м²
  • Терраса — 32,40 м²

Ключевые особенности:

  • Эргономичная планировка с чётким зонированием пространства
  • Панорамное остекление и выход на террасу — светлый интерьер и эффект “жизни с видом”
  • Наличие гардероба и холла повышает комфорт постоянного проживания
  • Уютные спальни подойдут как для семьи, так и для гостей
  • Большая терраса — дополнительная зона отдыха, которая усиливает ценность при продаже

Преимущества для производителей:

  • Прямоугольная геометрия и модульная сетка 3×3 — удобна в серийном производстве
  • Подходит для сборки из 2–3 модулей, логистика не требует спецтехники
  • Актуальный внешний вид, который можно адаптировать под дерево, металл или фиброцемент
  • Высокая востребованность как среди частных клиентов, так и девелоперов

Идеальное применение:

  • Дом для семьи 2–4 человек
  • Базовый модуль в посёлке или загородном клубе
  • Арендное жильё с высокой рентабельностью
  • Дом для жизни и удалённой работы в красивом месте

Проект подойдёт тем, кто хочет производить не просто модуль, а продуманный дом с высоким потребительским спросом и лёгкой реализацией.