Добавить в корзинуПозвонить
Найти в Дзене

Модульный дом FERN 9×6 с тремя спальнями и террасой — сбалансированный проект для жизни и аренды

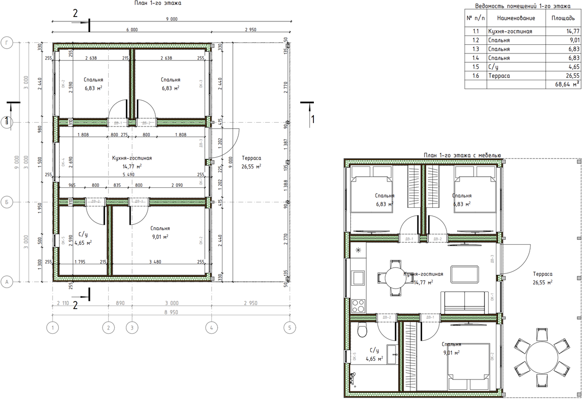
Проект этого дома объединяет в себе всё, что важно для современного жилья: функциональность, эстетика и высокая ликвидность. Общая площадь — 68,64 м², включая просторную террасу 26,5 м². Дом отлично подойдёт как для частных клиентов, так и для коммерческого применения на турбазах и в глэмпингах. Планировка: Преимущества планировки: Архитектура и конструкция: Кому подойдёт: Сбалансированный, красивый и технологичный — этот проект уверенно станет хитом в вашей линейке модулей.
FERN 25MD06
FERN 25MD06

Проект этого дома объединяет в себе всё, что важно для современного жилья: функциональность, эстетика и высокая ликвидность. Общая площадь — 68,64 м², включая просторную террасу 26,5 м². Дом отлично подойдёт как для частных клиентов, так и для коммерческого применения на турбазах и в глэмпингах.

-2

Планировка:

  • Кухня-гостиная — 14,77 м²
  • Спальня 1 — 9,01 м²
  • Спальни 2 и 3 — по 6,83 м²
  • Санузел — 4,65 м²
  • Терраса — 26,55 м²

Преимущества планировки:

  • Просторная кухня-гостиная с прямым выходом на открытую террасу
  • Удачное расположение спальни для родителей — уединённо, с доступом к санузлу
  • Панорамное остекление по фасаду усиливает эффект пространства
  • Распределённая компоновка комнат — без длинных коридоров и “потерь” площади
  • Возможность обустройства дома как ПМЖ, дачи или объекта под аренду

Архитектура и конструкция:

  • Чистая геометрия 3×3 м — легко масштабируется и оптимально для заводского изготовления
  • Широкая терраса с навесом по фасаду — повышает ценность проекта для клиента
  • Энергоэффективный контур — возможность утепления для эксплуатации круглый год
  • Производится из 2 или 3 модулей, транспортировка без спецразрешений

Кому подойдёт:

  • Частным застройщикам — как готовый дом “под ключ”
  • Девелоперам — в составе малоэтажной застройки или комплекса аренды
  • Турбазам — как домик на 4–6 гостей
  • Производителям — для линейки домов с увеличенной маржинальностью

Сбалансированный, красивый и технологичный — этот проект уверенно станет хитом в вашей линейке модулей.