Найти в Дзене

Дизайн-проект 3-комнатной квартиры монохром 74 м.кв.

Проекты с запросом на монохром приходят ко мне часто, но есть нюанс... акценты в приглушенных оттенках все равно хотят добавить. Один из таких проектов в котором чистого монохрома больший процент. Довольно долго выбирали где поставить барную стойку в итоге сошлись что вдоль окон самое интересное решение. С винишком да в женской компании поболтать, такое расположение барной удобно. Основной цвет кофейный монохром. Нюанс на кухне был в том, чтобы обыграть короб, для газовой трубы, вариантов было несколько. Был вариант добавить немного больше акцентов. Но выбрали более монохромный цвет. Проект разработан в сотрудничестве с https://rerooms.ru/ Обратится ко мне лично и узнать стоимость услуг можно по ссылке.
Оглавление

Проекты с запросом на монохром приходят ко мне часто, но есть нюанс... акценты в приглушенных оттенках все равно хотят добавить.

Один из таких проектов в котором чистого монохрома больший процент.

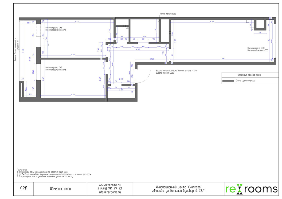
Обмерочный план
Обмерочный план
Расстановка мебели
Расстановка мебели

Кухня.

Довольно долго выбирали где поставить барную стойку в итоге сошлись что вдоль окон самое интересное решение.

-4
-5

С винишком да в женской компании поболтать, такое расположение барной удобно.

Цветовая концепция.

-6
-7

Основной цвет кофейный монохром.

Концепции в коллажах и визуализации.

Кухня.

Нюанс на кухне был в том, чтобы обыграть короб, для газовой трубы, вариантов было несколько.

-8
Шкаф с перфорацией.
Шкаф с перфорацией.
-11
-12

Спальня.

-14

Был вариант добавить немного больше акцентов.

Но выбрали более монохромный цвет.

-15
-16

Детская.

Прихожая.

-21

Санузел.

-23
-24
-25

Список товаров.

-27

Проект разработан в сотрудничестве с https://rerooms.ru/

Обратится ко мне лично и узнать стоимость услуг можно по ссылке.

Design OlgaMi