Добавить в корзинуПозвонить
Найти в Дзене
Сканди | Интерьер

Почему-то людям НЕ нравится эта однушка в хрущевке. Но я от нее в восторге! А вы как считаете?

За последние годы я пересмотрела тысячи разных интерьеров. Безжизненные квартиры с типовым ремонтом, восстановленные старые избушки, хрущевки с «бабушкиным» интерьером, скандинавские домики… И однажды поймала себя на мысли: большинство интерьеров похожи друг на друга словно выставочные экземпляры в мебельном гипермаркете. Переступаешь порог — и не понимаешь, что за человек тут живет, какой у него характер, какие увлечения. Даже шведские или финские домики, полные винтажных вещей, в какой-то момент слились воедино. Смотришь на фото и думаешь: где-то я это уже видела. Вы наверняка тоже ловили себя на такой мысли. Поэтому я каждый раз очень радуюсь, когда нахожу необычные интерьеры. Смелые, яркие, разрывающие шаблоны. Сегодня я покажу именно такую квартиру. Эта однушка в одной из московских хрущевок (пятиэтажка не попала под реновацию) многим НЕ нравится. Под постами с фотографиями ремонта — одни осуждающие комментарии. Люди пишут: визуальный винегрет, нет общего стиля, вычурные обои и ка

За последние годы я пересмотрела тысячи разных интерьеров. Безжизненные квартиры с типовым ремонтом, восстановленные старые избушки, хрущевки с «бабушкиным» интерьером, скандинавские домики…

И однажды поймала себя на мысли: большинство интерьеров похожи друг на друга словно выставочные экземпляры в мебельном гипермаркете.

Переступаешь порог — и не понимаешь, что за человек тут живет, какой у него характер, какие увлечения. Даже шведские или финские домики, полные винтажных вещей, в какой-то момент слились воедино. Смотришь на фото и думаешь: где-то я это уже видела.

Вы наверняка тоже ловили себя на такой мысли.

Поэтому я каждый раз очень радуюсь, когда нахожу необычные интерьеры. Смелые, яркие, разрывающие шаблоны.

Однушка, в которую мы сегодня заглянем, находится в одной из панельных хрущевок
Однушка, в которую мы сегодня заглянем, находится в одной из панельных хрущевок

Сегодня я покажу именно такую квартиру. Эта однушка в одной из московских хрущевок (пятиэтажка не попала под реновацию) многим НЕ нравится. Под постами с фотографиями ремонта — одни осуждающие комментарии.

Люди пишут: визуальный винегрет, нет общего стиля, вычурные обои и какой-то затасканный коврик вместо штор…

А мне эта хрущевка понравилась с первого взгляда! Да, такой интерьер — не для каждого подойдет. Но ремонт очень запоминающийся, с необычными деталями и странными мелочами.

Перед вами — 13 фото. Посмотрите и оцените ремонт, пожалуйста. Буду рада обсудить его в комментариях 📝

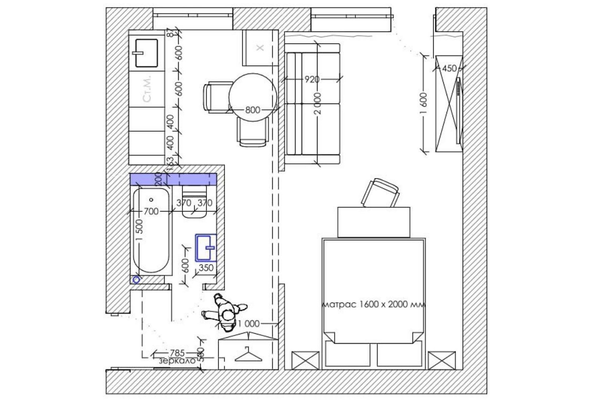
Для начала покажу планировку квартиры:

Здесь можно посмотреть, в том числе, и то, как расставлена мебель
Здесь можно посмотреть, в том числе, и то, как расставлена мебель

Эта однушка находится в панельной пятиэтажке 1960 года постройки (ориентир — Земледельческий переулок, примерно в трех километрах от Кремля).

Площадь квартиры — 33 квадрата.

Планировка стандартная. Санузел совмещенный. В единственной комнате нашли место и для кровати, и для дивана.

Звучит скучно и предсказуемо, правда? Но посмотрите, что хозяйка сотворила из этой однушки!

Эта однушка удивляет прямо с порога: гостей встречают красные стены и черная мебель
Эта однушка удивляет прямо с порога: гостей встречают красные стены и черная мебель

Хозяйка квартиры — Виктория Северина.

Когда-то девушка работала научным сотрудником, но сейчас она занимается небольшим бизнесом в сфере недвижимости. И эту однушку она полностью отремонтировала под свой вкус (процесс ремонта курировала дизайнер Анна Березняк).

— До ремонта я называла эту квартиру «Атмосфера Арбата», потому что бывшая собственница была артисткой, и вместе с квартирой она оставила мне кучу своих вещей. Забрала только кофемашину. Мне казалось, что вся квартира пропитана старой Москвой и интеллигенцией. Но если раньше здесь была атмосфера Арбата, то теперь здесь я. Квартира на 100% отражает меня и мой характер, — рассказывает Виктория.
Заглянем на кухню?
Заглянем на кухню?

Площадь кухни — около 5 квадратов, но она кажется довольно просторной. Причина — отсутствие верхних шкафов и небольшой обеденный столик для двоих.

Из деталей: необычная штора на кухне (та самая, которую в комментариях интерьерных пабликов часто обзывают ковриком) осталась от прошлых жильцов.

Еще меня зацепили обои Aura на потолке. Смело, ярко и необычно. Я бы вряд ли рискнула на подобное!

Общий вид на кухню
Общий вид на кухню
Зеркальный фартук — пожалуй, самая необычная деталь этой кухни. Такого я еще не видела!
Зеркальный фартук — пожалуй, самая необычная деталь этой кухни. Такого я еще не видела!

Предвижу вопросы по бытовой технике. Мини-холодильник встроен в кухонный гарнитур. Также есть двухконфорочная плитка, которая убрана в шкаф.

Стол — inmyroom, стулья — La Redoute
Стол — inmyroom, стулья — La Redoute
Сумасшедшее сочетание цветов и фактур: зеленые стены, красная плотная штора, розовый потолок, старая люстра
Сумасшедшее сочетание цветов и фактур: зеленые стены, красная плотная штора, розовый потолок, старая люстра

Эта советская люстра тоже осталась от бывшей хозяйки квартиры. Правда, раньше она висела в гостиной. Но когда Виктория выбрала обои для потолка на кухне, то сразу поняла: люстру надо перевесить — уж очень красиво сочетается она с белыми лебедями на розовом фоне.

А вам как такое сочетание?

При входе в гостиную прямо тебе в глаза смотрит... странный человек, заваривающий б/п лапшу. Этот плакат Виктория давным-давно купила на Авито
При входе в гостиную прямо тебе в глаза смотрит... странный человек, заваривающий б/п лапшу. Этот плакат Виктория давным-давно купила на Авито
Старый проигрыватель и виниловые пластинки — сразу понятно, чем увлекается хозяйка и какую музыку она любит слушать
Старый проигрыватель и виниловые пластинки — сразу понятно, чем увлекается хозяйка и какую музыку она любит слушать

Минутка откровений. Мало кто знает, но я коллекционирую виниловые пластинки. Ну, как собираю... В моей домашней коллекции всего около 40 пластинок. Есть проигрыватель. Иногда слушаю любимую музыку по вечерам...

Только вот мои пластинки хранятся в шкафу. Все никак не могла найти им подставку. И в этой квартире мне понравилась идея с корзинкой для хранения винила! Думаю, сделаю также.

Гостиная условно разделена на две зоны: спальня (ее покажу чуть ниже) и зона отдыха с телевизором
Гостиная условно разделена на две зоны: спальня (ее покажу чуть ниже) и зона отдыха с телевизором
А так выглядит спальный уголок
А так выглядит спальный уголок

Смотрю на эту фотографию и удивляюсь, какой интересный тут все-таки интерьер.

Арка из зеленых обоев Morris & Co повторяет полукруглое изголовье кровати. А зеленый плед перекликается с обоями.

Вид из гостиной на прихожую и коридор. Мне очень понравилось сочетание красного и черного цветов. Смело, но не агрессивно
Вид из гостиной на прихожую и коридор. Мне очень понравилось сочетание красного и черного цветов. Смело, но не агрессивно
Ванная комната ДО и ПОСЛЕ ремонта. Интерьер и до этого был нормальным. Но после ремонта помещение приобрело какой-то свой особенный характер
Ванная комната ДО и ПОСЛЕ ремонта. Интерьер и до этого был нормальным. Но после ремонта помещение приобрело какой-то свой особенный характер
Орнамент на обоях (они от бренда papierpeint.russia) — как привет из СССР
Орнамент на обоях (они от бренда papierpeint.russia) — как привет из СССР

— Да, это обои. Обои на стене. Обои на стене в ванной комнате. И на шкафу. Да, так можно. И нет, они не портятся, — отвечает Виктория на частый (и явно наболевший) вопрос.

И тут тоже: смотрите, сколько тут фактур и цветов! Особенно удивляет фиолетовый потолок, который соседствует с красной стеной
И тут тоже: смотрите, сколько тут фактур и цветов! Особенно удивляет фиолетовый потолок, который соседствует с красной стеной
Унитаз, к сожалению, расположен не очень удобно. Но других вариантов у хозяйки не было
Унитаз, к сожалению, расположен не очень удобно. Но других вариантов у хозяйки не было

Необычная квартира, правда?

Мой вердикт: сомневаюсь, что я смогла бы жить в таких декорациях. Но ведь этот интерьер был создан не для меня. И он на 100% отражает личность хозяйки.

💡И моя личная рекомендация. Делюсь своей покупкой на Wildberries (вот этой) — честный отзыв, фото и цена

Я редко покупаю вещи наобум. Могу часами напролет читать отзывы, смотреть видео-обзоры, сравнивать между собой товары... Однажды дошло до смешного: мы полгода жили без плиты, потому что я не могла выбрать между двумя моделями.

Но на этот раз клюнула на отзывы блогеров и спонтанно заказала себе чудо-средство для уборки дома — пенный очиститель BRANDFREE.

Честно признаюсь: изначально я отнеслась к этой пене скептически. Но меня подкупила недорогая стоимость. Смотрите, сколько он стоит!

Поэтому согласилась устроить честный тест-драйв этому средству. Действительно ли пена так хороша?

Спойлер: результаты меня удивили. Ниже — ДО и ПОСЛЕ использования.

Еще я чистила: варочную поверхность, зеркала, плинтуса, стекло душевой кабины.

Мой супруг чистил: фары, стекла, салон автомобиля, балкон и окна.

Но! Это еще не всё. Сейчас хочу показать вам фото из отзывов, которое меня очень впечатлило. Женщина рассказывает: купила квартиру, окна были в ужасном состоянии, все в плесени и грязи. Нанесла пену — 10 секунд — и всё чисто.

Вот фото:

Для города, где я живу (Калининград), проблема плесени тоже актуальна — из-за мокрого и переменчивого климата
Для города, где я живу (Калининград), проблема плесени тоже актуальна — из-за мокрого и переменчивого климата

Мой вердикт: пенный очиститель работает очень хорошо, это отличный помощник на кухне, который экономит время и деньги.

Добавьте его в корзину, чтобы не забыть! Позже почитаете отзывы и решите, покупать или нет.

Всем уютного и чистого дома! Ваша Мария из Калининграда

Реклама ООО «ЭПЕКО» ИНН 5752084510 Erid:2W5zFHXgHSY