Найти в Дзене

Дизайн-проект 120 м² на ул. Белобережской, Брянск!

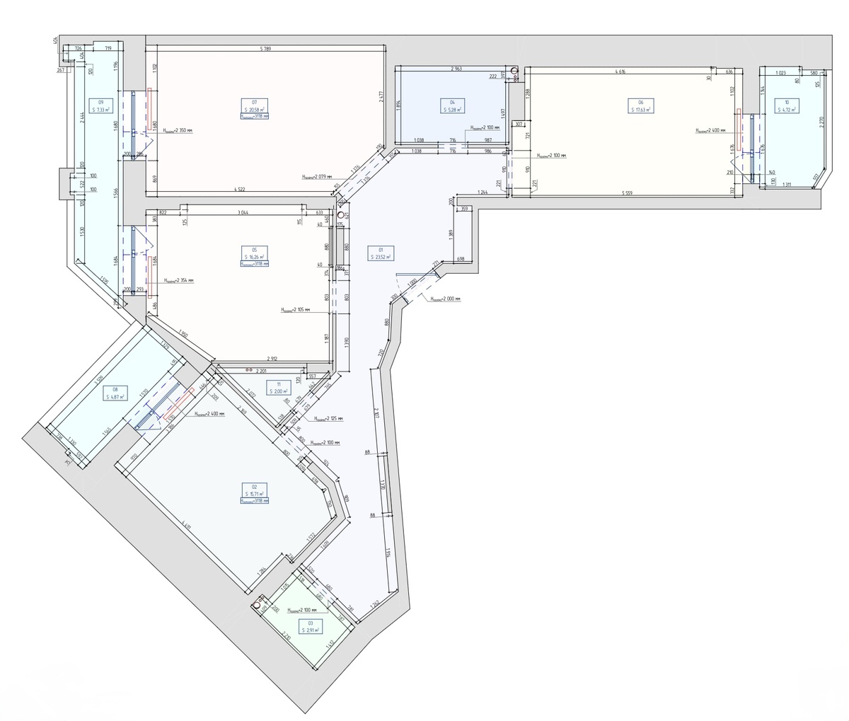
Для молодой семьи с маленьким ребёнком мы разработали уютный и современный интерьер в просторной квартире с эркерной планировкой от застройщика. Семья — не местные, поэтому весь проект вели дистанционно: показывали визуализации, согласовывали материалы, вели полный контроль на всех этапах. Что получилось: ✨ Гостиная с эркером и панорамными окнами — максимум света и воздуха
🧸 Детская — с местом для сна, игр и будущей учёбы
🛏 Спальня родителей с отдельной гардеробной — спокойно и функционально
🚿 Два санузла с продуманными системами хранения и качественной отделкой Весь интерьер — светлый, с акцентами на натуральные материалы и ощущение простора. 🔎 Обзор интерьера — смотрите далее 👉 Прихожая Кухня-гостиная Спальня Детская Мастер-ванная Гостевой санузел Гардеробная Балкон 📩 Мечтаете о таком же дизайне?
Мы создаём проекты, которые не только радуют глаз, но и делают жизнь проще и удобнее. Стоимость дизайн-проекта — от 3 500 ₽ за м². Оставьте заявку по номеру телефона 👉 +7 (910)-735-

Для молодой семьи с маленьким ребёнком мы разработали уютный и современный интерьер в просторной квартире с эркерной планировкой от застройщика. Семья — не местные, поэтому весь проект вели дистанционно: показывали визуализации, согласовывали материалы, вели полный контроль на всех этапах.

Что получилось:
✨ Гостиная с эркером и панорамными окнами — максимум света и воздуха
🧸 Детская — с местом для сна, игр и будущей учёбы
🛏 Спальня родителей с отдельной гардеробной — спокойно и функционально
🚿 Два санузла с продуманными системами хранения и качественной отделкой
Весь интерьер — светлый, с акцентами на натуральные материалы и ощущение простора.

🔎 Обзор интерьера — смотрите далее 👉

Прихожая

Кухня-гостиная

Спальня

Детская

Мастер-ванная

Гостевой санузел

Гардеробная

Балкон

📩 Мечтаете о таком же дизайне?
Мы создаём проекты, которые не только радуют глаз, но и делают жизнь проще и удобнее.
Стоимость дизайн-проекта — от 3 500 ₽ за м².

Оставьте заявку по номеру телефона 👉 +7 (910)-735-72-02, и мы разработаем для вас уникальный интерьер, идеально подходящий вашему стилю жизни и желаниям.

Мы умеем не просто красиво — мы умеем удобно, надолго и без нервов 🤝