Добавить в корзинуПозвонить
Найти в Дзене
GREY HOUSE

Навес для машины с утепленным хозблоком

Наша бригада приступила к строительству навеса для автомобиля с утепленным хозблоком. Ранее на этом участке мы строили дом по проекту Химос Параметры объекта: Технические особенности: 1. Бригады: постоянные, история строительства (фотоотчеты), можно выбрать понравившуюся бригаду, можно посетить строящиеся объекты, почитать отзывы клиентов 2. Документация: детальная смета, чертежи дома в соответствии с нормами, разработанные конструктором 3. Премиальное качество и разумная цена ***
Все новости читайте в нашем телеграм-канале Подписывайтесь на нашу группу Вконтакте И, конечно же, подписывайтесь на нас в «Дзене» Наши контакты:
Телефон: 8-495-504-71-33
mail@grey-house.ru
Сайт: grey-house.ru
Оглавление

Наша бригада приступила к строительству навеса для автомобиля с утепленным хозблоком. Ранее на этом участке мы строили дом по проекту Химос

Параметры объекта:

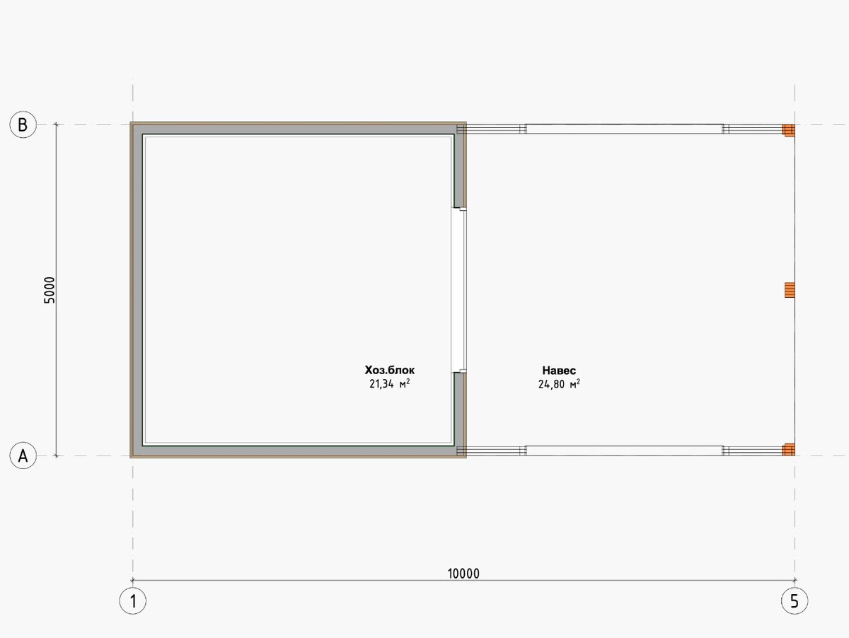
  • Размер: 5×10 м
  • Площадь теплоконтура (хозблок): 25 м²
  • Навес для машины: 24,8 м²
  • Высота потолка: 2,7–3,1 м

Технические особенности:

  • Фундамент: бетонная плита
  • Каркас: сухая строганная доска
  • Хозблок: утеплен
  • Крыша: мягкая черепица
  • Отделка внутри: ОСБ
  • Отделка снаружи: имитация бруса

Планировка навеса

-2

Строительство навеса

Выемка грунта
Выемка грунта
Выемка грунта
Выемка грунта
-5
Засыпка и трамбовка песчаной подушки
Засыпка и трамбовка песчаной подушки
Утепление бетонной плиты
Утепление бетонной плиты
Заливка фундамента бетоном
Заливка фундамента бетоном
Заливка фундамента бетоном
Заливка фундамента бетоном
Цокольный ряд из бетонных блоков
Цокольный ряд из бетонных блоков
Строительство каркаса
Строительство каркаса
Строителство каркаса
Строителство каркаса
Строительство каркаса
Строительство каркаса
Строительство каркаса
Строительство каркаса
Монтаж стропильной системы
Монтаж стропильной системы
Монтаж стропильной системы
Монтаж стропильной системы
Подшивка потолка
Подшивка потолка

Готовый навес для машин

Навес для авто с утепленным хозблоком
Навес для авто с утепленным хозблоком
Навес для авто с утепленным хозблоком
Навес для авто с утепленным хозблоком
Навес для авто с утепленным хозблоком
Навес для авто с утепленным хозблоком
Навес для авто с утепленным хозблоком
Навес для авто с утепленным хозблоком
Навес для авто с утепленным хозблоком
Навес для авто с утепленным хозблоком
Навес для машины
Навес для машины
Навес для машины с утепленным хозблоком
Навес для машины с утепленным хозблоком
Навес для машины с утепленным хозблоком
Навес для машины с утепленным хозблоком
Навес для машины с утепленным хозблоком
Навес для машины с утепленным хозблоком
Навес для машины с утепленным хозблоком
Навес для машины с утепленным хозблоком
Навес для машины с утепленным хозблоком
Навес для машины с утепленным хозблоком
Навес для машины с утепленным хозблоком
Навес для машины с утепленным хозблоком
Навес для машины с утепленным хозблоком
Навес для машины с утепленным хозблоком
Навес для машины с утепленным хозблоком
Навес для машины с утепленным хозблоком

Наши преимущества:

1. Бригады: постоянные, история строительства (фотоотчеты), можно выбрать понравившуюся бригаду, можно посетить строящиеся объекты, почитать отзывы клиентов

2. Документация: детальная смета, чертежи дома в соответствии с нормами, разработанные конструктором

3. Премиальное качество и разумная цена

***
Все новости читайте в нашем телеграм-канале

Подписывайтесь на нашу группу Вконтакте

И, конечно же, подписывайтесь на нас в «Дзене»

Наши контакты:
Телефон:
8-495-504-71-33
mail@grey-house.ru
Сайт:
grey-house.ru