Найти в Дзене
INMYROOM

Забудьте про дизайнера: как женщина-юрист сама придумала квартиру своей мечты

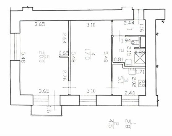
Из типовой брежневки в уникальное и стильное жилье Стоимость услуг дизайнера интерьера часто вызывает желание схватиться за сердце. А когда уже потратил миллионы на покупку квартиры и ремонт, экономия на проекте кажется разумным решением. Но сможет ли человек без специального образования создать стильное, функциональное пространство? Ксения, юрист из Санкт-Петербурга, доказала, что это возможно. Она самостоятельно спроектировала интерьер своей двушки в брежневке серии 528 кп40 и превратила типовую квартиру площадью 51,6 м² в стильное жилье в стиле мид-сенчери. Весь ремонт обошелся в 3 миллиона рублей, и значительную часть этой суммы удалось сэкономить, обойдясь без услуг дизайнера. Тип дома: брежневка Метраж: 51,6 м² Высота потолков: 2,7 м Дизайн: Ксения Ксения по профессии юрист, в последние полтора года работает в IT-сфере, развивая цифровой сервис для юристов. К дизайну интерьеров она не имела никакого отношения. Тем не менее, она решила самостоятельно взяться за планировку и визуал
Оглавление

Из типовой брежневки в уникальное и стильное жилье

Стоимость услуг дизайнера интерьера часто вызывает желание схватиться за сердце. А когда уже потратил миллионы на покупку квартиры и ремонт, экономия на проекте кажется разумным решением. Но сможет ли человек без специального образования создать стильное, функциональное пространство? Ксения, юрист из Санкт-Петербурга, доказала, что это возможно. Она самостоятельно спроектировала интерьер своей двушки в брежневке серии 528 кп40 и превратила типовую квартиру площадью 51,6 м² в стильное жилье в стиле мид-сенчери. Весь ремонт обошелся в 3 миллиона рублей, и значительную часть этой суммы удалось сэкономить, обойдясь без услуг дизайнера.

Главное из статьи:

  • Для создания технического проекта перепланировки достаточно стандартного онлайн-планировщика;
  • Визуализацию интерьера можно сделать в обычном приложении для презентаций, если хорошо им владеть;
  • Когда опыта не хватает, стоит привлечь профессионала точечно — например, для проектирования сложной мебели;
  • Поиск вдохновения в интернете помогает понять, какой стиль вам ближе;
  • Важно заранее продумать зонирование квартиры под ваш образ жизни;
  • Перепланировку нужно согласовывать официально, особенно если вы сносите или перемещаете стены.
Тип дома: брежневка
Метраж: 51,6 м²
Высота потолков: 2,7 м
Дизайн: Ксения
 📷
📷

Как юрист стал сам себе дизайнером

Ксения по профессии юрист, в последние полтора года работает в IT-сфере, развивая цифровой сервис для юристов. К дизайну интерьеров она не имела никакого отношения. Тем не менее, она решила самостоятельно взяться за планировку и визуализацию своей квартиры.

«Я пользовалась стандартным онлайн-планировщиком, где отрисовала технический проект. А вот уже визуальную часть — это такой мой лайфхак, можно сказать — я пользовалась стандартным приложением, где готовят презентации. Я просто очень хорошо умею пользоваться этим приложением, этим сервисом», — рассказывает Ксения.

Подход оказался на удивление эффективным. В презентационном приложении Ксения «делала всевозможные коллажи, вырезала какие-то тумбочки, телевизоры, диваны, все это подставляла по цветам, накидывала оформление стен». По сути, она создала для себя импровизированную программу для дизайнера, используя привычные инструменты.

Этот опыт показывает, что для создания дизайн-проекта необязательно владеть сложными профессиональными программами. Иногда достаточно творческого подхода и умения работать с доступными инструментами.

Фото до ремонта:

-3
-4
-5
-6

Знай, когда нужна помощь: точечное привлечение профессионалов

Несмотря на самостоятельную работу над проектом, Ксения понимала, что в некоторых вопросах ей не хватает опыта. Поэтому на финальных этапах она все же обратилась к профессионалу — но очень избирательно.

«Дизайнер, которая мне на последнем этапе помогала отрисовать мебель, которой мне не хватало в квартире, — это, собственно, шкаф в прихожей, отрисовка по моим чертежам шкафа в спальне и оформление зоны в ванной», — делится Ксения.

Такой подход позволил сэкономить значительную часть бюджета, но при этом получить профессиональные решения в самых сложных зонах квартиры. Особенно это касается систем хранения, которые должны быть не только красивыми, но и функциональными.

Например, шкаф в спальне был спроектирован под конкретную нишу: «Специально заранее была заложена ниша и внутри здесь по сути рейлинги, система этих рейлингов, и потом отдельно мы еще заказывали различные полки и ящики».

 📷
📷

Не бойтесь экспериментировать и искать нестандартные решения

Одно из преимуществ самостоятельного проектирования — свобода экспериментировать и находить нестандартные решения, которые подходят именно вам.

Так, Ксения разработала необычную систему зонирования в спальне, совмещенной с кабинетом: «Я не хотела делать прям какие-то статичные, очень массивные перегородки. Поэтому я придумала в какой-то момент такой шкаф, который сама рисовала полностью. Он под заказ делался по моим чертежам».

В ванной комнате она продумала систему хранения, которая решает распространенную проблему: «Как все девочки знают, у всех это боль — раковина, обставленная кучей всяких тюбиков, масок. Меня это раздражает, я не люблю, чтобы это визуально портило картинку. Стояла задача сделать пространство так, чтобы можно было хранить все женские предметы, крема и прочее, но чтобы это не портило визуал. Поэтому был придуман шкаф, где есть сбоку открытая секция, с неё есть спокойный доступ, а от раковины его не видно».

А на кухне Ксения нашла элегантное решение проблемы обеденной зоны: «Поскольку кухню я уменьшила, встал вопрос: где будет зона для приема пищи? Для каждодневного, такого быстрого использования я сделала просто очень широкий подоконник. Здесь спокойно можно сидеть с ногами вдвоем».

 📷
📷

Винтаж и современность: как создать свой стиль

Ксения выбрала для своей квартиры стиль мид-сенчери, который сочетает современные и винтажные элементы. При этом она не копировала готовые решения из интернета, а создала действительно индивидуальный интерьер.

В гостиной разместилась настоящая советская радиола «Ригонда» примерно 1968 года выпуска, которую петербургские умельцы модернизировали, добавив Bluetooth-модуль: «Музыку можно раздавать прямо с телефона и слушать ее. У нее прекрасное звучание, и пластинки на ней тоже можно слушать».

Рядом с радиолой — советская цветомузыка: «Она светится разными цветами, понимает звучание радиолы и подсвечивает разные цвета в ритм. Такая советская дискотека интеллигентов».

В кабинетной зоне разместились восстановленный чехословацкий стол и винтажное кресло гнутой формы: «Это кресло гно, которое тоже было с рук, потом я его на реставрацию отдавала. Стул этот тоже такой известный представитель шестидесятых, баухаус направления».

Эти винтажные предметы создают характер и атмосферу в квартире, делая ее непохожей на типовые решения профессиональных дизайнеров.

 📷
📷
 📷
📷

Свет в интерьере: создаем разные сценарии

Особое внимание Ксения уделила освещению, создав несколько сценариев света для разных ситуаций.

«Здесь много сценариев освещения. Есть основной свет, есть подсветка боковая, этот свет разведен — можно хоть одну, хоть другую включать. Есть боковые бра, есть светильник около телевизора, есть еще дополнительная подсветка персонально для цветов», — рассказывает она о гостиной.

Такой подход позволяет менять атмосферу в квартире в зависимости от настроения и потребностей. «Я вообще не люблю верхний свет, поэтому вечером всегда здесь у меня очень камерная атмосфера с нижним светом, с разными боковыми», — признается Ксения.

Даже на небольшой кухне предусмотрено три сценария освещения: верхний свет, подсветка стены с цветами и окном, и свет от вытяжки.

 📷
📷
 📷
📷
 📷
📷

Выбираем строителей правильно: юридический подход

Как юрист, Ксения очень внимательно подошла к выбору строительной бригады. Этот опыт особенно ценен, так как показывает, на что обращать внимание при заключении договора.

«Я меняла бригаду на начальных этапах ремонта. И вторую бригаду я практически устраивала целый кастинг — выбирала примерно из шести разных бригад», — рассказывает она.

Что было важно для Ксении при выборе строителей:

«Для меня как для юриста важно официальное оформление, чтобы был договор, была четкая понятная смета по работам и техническим нюансам. Мы с ними общались, как они будут делать работы, они мне отвечали. Их видение процесса совпало с моим».

Это напоминание о том, что даже при самостоятельном проектировании необходимо серьезно подходить к выбору исполнителей и правильно оформлять отношения с ними.

Опыт Ксении доказывает, что создание интерьера мечты возможно и без профессионального дизайнера. Ключ к успеху — четкое понимание своих потребностей, готовность уделить время планированию и визуализации, а также смелость экспериментировать. При этом важно знать свои ограничения и не бояться привлекать специалистов для решения конкретных задач.

Следуя этому подходу, вы не только сэкономите значительную сумму, но и получите интерьер, который на 100% отражает вашу индивидуальность и образ жизни. Ведь никто лучше вас не знает, какой должна быть именно ваша квартира мечты.