Найти в Дзене

Реализованный проект квартиры 100 м2 для замечательной семьи с ребёнком 🤍✨ Часть 1

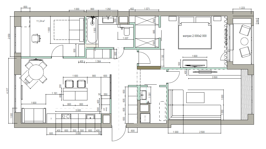
Привет всем любителям эстетики и красивых интерьеров! 🤍 Сегодня я покажу вам наш реализованный проект квартиры, который мы проектировали с бетона и реализовали под ключ для наших замечательных заказчиков! Работа над проектом с реализацией - это всегда долгий и сложный путь, поэтому я немного волнуюсь перед написанием этой статьи, прошу поддержать лайком ) Вам не долго, а мне - приятно 😄 Спойлер: будет очень много картинок! Начинаем! Квартира располагается в жк Город на реке - Тушино 2018, на первом этаже. Кстати, первый этаж - это всегда привилегия в плане размещения мокрых зон, имейте это в виду ) На площади 100 м2 нам требовалось разместить: Вот такая планировка у нас получилась в итоге! Просторная кухня с островом, я бы даже назвала её кухня-гостиная, так как удалось разместить еще и диван; гостиная с большим диваном и телевизором, отдельный кабинет и спальня с гардеробной 🤍В общем, всё что нужно для комфортной жизни! На этом варианте мы бы и остановились, но жизнь внесла свои ко

Привет всем любителям эстетики и красивых интерьеров! 🤍 Сегодня я покажу вам наш реализованный проект квартиры, который мы проектировали с бетона и реализовали под ключ для наших замечательных заказчиков! Работа над проектом с реализацией - это всегда долгий и сложный путь, поэтому я немного волнуюсь перед написанием этой статьи, прошу поддержать лайком ) Вам не долго, а мне - приятно 😄 Спойлер: будет очень много картинок!

Начинаем!

День замеров. Фото автора
День замеров. Фото автора

Квартира располагается в жк Город на реке - Тушино 2018, на первом этаже. Кстати, первый этаж - это всегда привилегия в плане размещения мокрых зон, имейте это в виду ) На площади 100 м2 нам требовалось разместить:

  • Кухню
  • Гостиную
  • Кабинет
  • Спальню
  • Гардеробную
  • Ванную
  • Прачечную
  • Прихожую
Планировочное решение автора
Планировочное решение автора

Вот такая планировка у нас получилась в итоге! Просторная кухня с островом, я бы даже назвала её кухня-гостиная, так как удалось разместить еще и диван; гостиная с большим диваном и телевизором, отдельный кабинет и спальня с гардеробной 🤍В общем, всё что нужно для комфортной жизни! На этом варианте мы бы и остановились, но жизнь внесла свои коррективы! Как сейчас помню этот телефонный звонок, когда заказчица позвонила мне и сказала, что в проекте нам потребуется детская...🥰

Планировочное решение автора
Планировочное решение автора

Так, кабинет стал детской, а в гостиной вдоль окна мы разместили шикарное рабочее место для главы семейства!

Самые внимательные из вас заметили, что это были не единственные изменения в планировке - прачечную мы заменили на душевую! Это была мечта моего заказчика, а мечты обязательно должны сбываться ✨ Блок стиральной и сушильной машины мы разместили в кухне, на плане это ниша рядом с ванной комнатой. Идеально!

А теперь перейдем к самому интересному - к 3д визуализациям! ❤ Если вы до сих пор не поставили лайк этой статье, то сейчас самое время это исправить )

Начнем с прихожей!

3д визуализация автора
3д визуализация автора

Межкомнатные двери мы сделали выше стандарта, это смотрится дорого и визуально вытягивает пространство!

3д визуализация автора
3д визуализация автора

Вид на входную дверь

3д визуализация автора
3д визуализация автора

В прихожей мы разместили зону хранения сезонных вещей, сидение с ящиком для обуви и технический шкаф, в котором прячется щиток и прочее оборудование. Он у нас сразу при входе. Глубина мебельной конструкции - 60 см, что оптимально для хранения!

Фото реализации объекта автора
Фото реализации объекта автора

В процессе реализации мы немного изменили концепцию - сделали шире шкаф слева и установили в нишу зеркало. Как вам такое решение? Пишите в комментариях 👇

А я приглашаю вас проследовать на кухню )

3д визуализация автора
3д визуализация автора
3д визуализация автора
3д визуализация автора

3д визуализация автора
3д визуализация автора
3д визуализация автора
3д визуализация автора
3д визуализация автора
3д визуализация автора

А вот это уже фотографии с нашей реализации 🙌

Фото реализованного объекта автора
Фото реализованного объекта автора
Фото реализованного объекта автора
Фото реализованного объекта автора
Фото реализованного объекта автора
Фото реализованного объекта автора

Обзор кухни так же можно посмотреть в этом ролике: https://dzen.ru/shorts/67ec3fe6d172de1b8ddf2c90?share_to=link

Реализовать кухню удалось практически 1-в-1 с проектом! Для меня это очень важно и я очень ценю, что это так же важно и для моих дорогих заказчиков! Ведь визуал и техническая часть продумываются максимально подробно, и каждая деталь имеет значение и влияет на восприятие интерьера 🤍 А воплотить идею в реальность помогает авторский надзор 🙌

Гостиная!

Начнем с 3д визуализации

3д визуализация автора
3д визуализация автора

Гостиная-кабинет это, наверное, мое самое любимое помещение в этом проекте )

3д визуализация автора
3д визуализация автора
3д визуализация автора
3д визуализация автора

А вот что получилось в реализации!

Фото еще без штор
Фото еще без штор

В этом ролике можно посмотреть, как выглядит рабочая зона со шторами на электроприводе: https://dzen.ru/shorts/67e9abd651e7ac5bb5aa766c?share_to=link

Фото автора. Кажется, пора покупать айфон :)
Фото автора. Кажется, пора покупать айфон :)
Фото автора
Фото автора
Фото автора
Фото автора

Белая решетка под потолком - это система приточной вентиляции, на потолке установлена встроенная трековая система освещения от компании Arlight, потолки в проекте у нас натяжные, с теневым профилем.

Во время реализации мы дополнили пространство вот так вот авторским стеллажом - в проекте его не было, но удалось вписать гармонично, будто бы так и планировалось изначально )

Чтобы статья получилась не слишком огромной, я разобью её на две части 💫 А вы пока пишите комментарии и задавайте вопросы, я с радостью отвечу на каждый и учту ваши пожелания во второй части нашего обзора )

А если вам требуется консультация по дизайну и ремонту, пишите мне, контакты в шапке профиля 🤍