Найти в Дзене
Ingenium Corp.

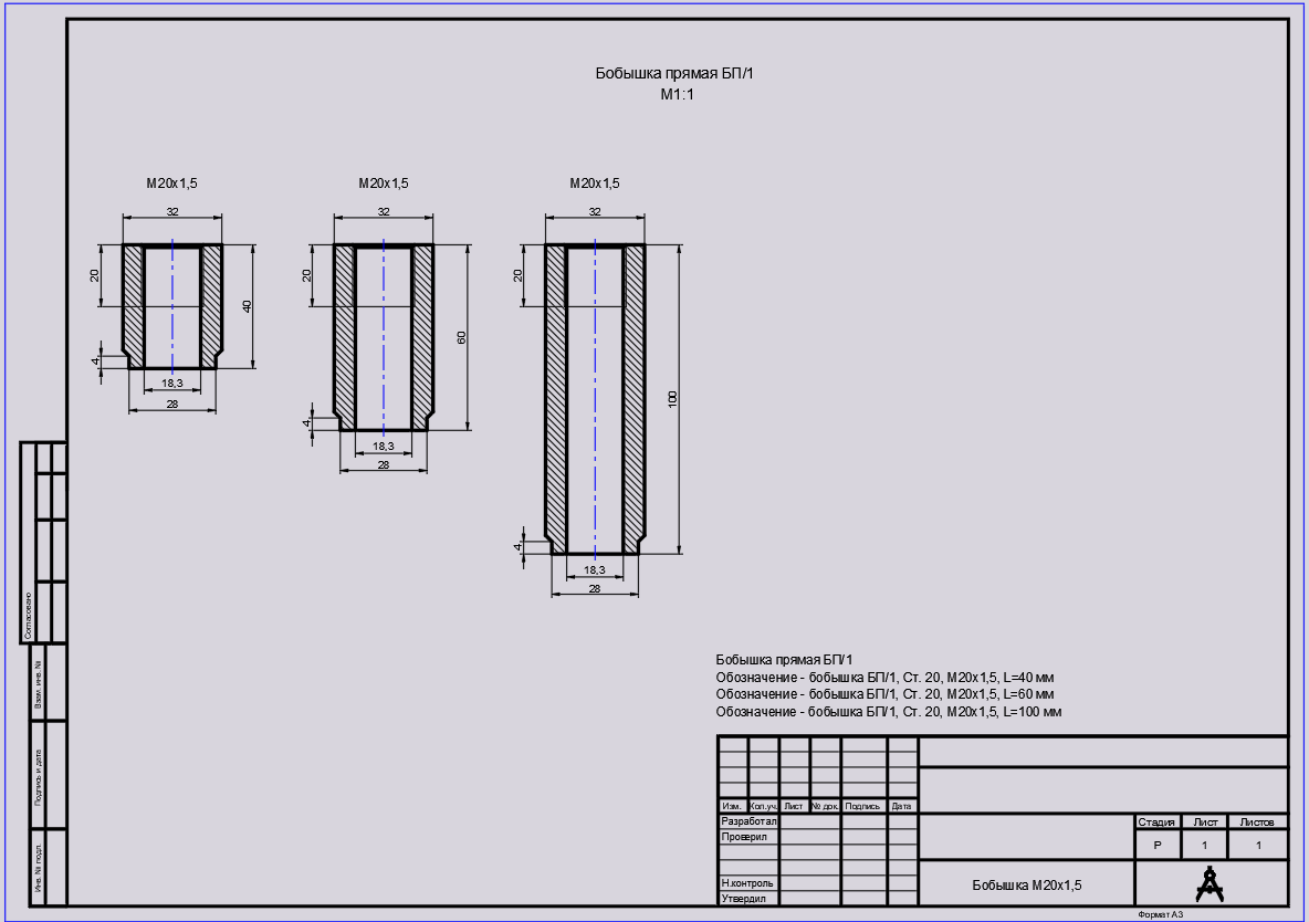
Чертеж бобышки М20х1,5

Чертеж прямой бобышки М20х1,5 типа БП/1. Бобышка — это фитинг в виде короткого патрубка с резьбой или фланцем, который вваривается или приваривается к трубопроводу для подключения дополнительного оборудования (датчиков, манометров, дренажных систем и т. д.).пробоя: ребристая поверхность для увеличения пути тока утечки. 🔹 По конструкции - Фланцевая. - Под приварку. - Эллиптическая. 🔹 По материалу 📌 Размеры и присоединение 📌 Давление и температура 📌 Стандарты ✅ Установка манометров и датчиков
✅ Подключение дренажных и воздухоотводчиков
✅ Монтаж предохранительных клапанов
✅ Врезка в трубопроводы под сварку 1️⃣ Определите тип подключения (резьба, фланец, сварка).
2️⃣ Выберите материал (сталь, нержавейка).
3️⃣ Уточните диаметр и резьбу (например, М20х1,5").
4️⃣ Проверьте давление/температуру среды. Формат – AutoCAD 2010. #Чертежи 👉 Скачать файл "Чертеж бобышки М20х1,5" – ЯндексДиск – 👇Подписчики получают больше материалов: закрытые посты, обновления каждую неделю!👇
Оглавление

Чертеж прямой бобышки М20х1,5 типа БП/1.

Бобышка — это фитинг в виде короткого патрубка с резьбой или фланцем, который вваривается или приваривается к трубопроводу для подключения дополнительного оборудования (датчиков, манометров, дренажных систем и т. д.).пробоя: ребристая поверхность для увеличения пути тока утечки.

1. Основные типы бобышек

🔹 По конструкции

- Фланцевая.

- Под приварку.

- Эллиптическая.

🔹 По материалу

  • Сталь 20, 09Г2С, 12Х18Н10Т (обычные и нержавеющие марки).
  • Латунь, медь (для низких давлений и специфичных сред).

2. Основные параметры выбора

📌 Размеры и присоединение

  • Диаметр бобышки (DN): от DN10 до DN100
  • Резьба: G½", G¼", NPT ½", М12×1,5 и др.
  • Фланец: DN15-DN100 (стандарты DIN, ГОСТ, ANSI)

📌 Давление и температура

  • Рабочее давление: от 10 до 160 бар (зависит от толщины стенки)
  • Температура: -60°C до +450°C (для углеродистой стали)

📌 Стандарты

  • ГОСТ 22792-83 (бобышки под приварку)
  • ГОСТ 28919-91 (фланцевые)
  • DIN 2616, DIN 2633 (немецкие стандарты)

3. Где применяются бобышки?

✅ Установка манометров и датчиков
✅ Подключение дренажных и воздухоотводчиков
✅ Монтаж предохранительных клапанов
✅ Врезка в трубопроводы под сварку

4. Как подобрать бобышку?

1️⃣ Определите тип подключения (резьба, фланец, сварка).
2️⃣
Выберите материал (сталь, нержавейка).
3️⃣
Уточните диаметр и резьбу (например, М20х1,5").
4️⃣
Проверьте давление/температуру среды.

5. Монтаж бобышек

  • Приварка – для стальных трубопроводов (важно качество сварного шва).
  • Резьбовое соединение – с уплотнительной лентой или пастой.
  • Фланцевое крепление – с прокладкой и болтами.

Формат – AutoCAD 2010. #Чертежи

👉 Скачать файл "Чертеж бобышки М20х1,5" – ЯндексДиск –

👇Подписчики получают больше материалов: закрытые посты, обновления каждую неделю!👇