Добавить в корзинуПозвонить
Найти в Дзене
Ingenium Corp.

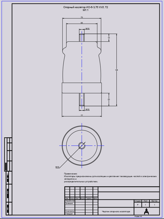
Чертеж опорного изолятора

Опорные изоляторы типа ИО (Изолятор Опорный) предназначены для крепления и изоляции токоведущих частей электроустановок в условиях высокого напряжения. Они применяются в:
✅ Распределительных устройствах (РУ, КРУ, КСО).
✅ Подстанциях.
✅ Воздушных линиях электропередачи (ЛЭП).
✅ Трансформаторах и силовых шинах. 1️⃣ Определите напряжение (6, 10, 35, 110 кВ и т. д.). 2️⃣ Уточните механическую нагрузку (вес шин, ветровые воздействия). 3️⃣ Выберите материал (фарфор, полимер). 4️⃣ Проверьте климатическое исполнение (УХЛ1, Т1, ОМ). - Тип: ИО-6. - Материал: фарфор. - Крепление: резьба М10. - Климатическое исполнение: УХЛ. Формат – AutoCAD 2010. #Чертежи
👉 Скачать файл "Чертеж опорного изолятора " – ЯндексДиск –
👇Подписчики получают больше материалов: закрытые посты, обновления каждую неделю!👇
Оглавление

Опорные изоляторы типа ИО (Изолятор Опорный) предназначены для крепления и изоляции токоведущих частей электроустановок в условиях высокого напряжения. Они применяются в:
✅ Распределительных устройствах (РУ, КРУ, КСО).
✅ Подстанциях.
✅ Воздушных линиях электропередачи (ЛЭП).
✅ Трансформаторах и силовых шинах.

Конструктивные особенности

  • Материал изоляции:
  • Фарфор (традиционный, устойчив к УФ и влаге)
  • Стекло (высокая прочность, но хрупкость)
  • Полимеры (силикон, эпоксид) – легкие, устойчивые к загрязнениям
  • Крепление:
  • Резьбовое (болтовое) – для шин и аппаратов
  • Цанговое – для проводов и тросов
  • Защита от пробоя: ребристая поверхность для увеличения пути тока утечки.

Как выбрать изолятор?

1️⃣ Определите напряжение (6, 10, 35, 110 кВ и т. д.).

2️⃣ Уточните механическую нагрузку (вес шин, ветровые воздействия).

3️⃣ Выберите материал (фарфор, полимер).

4️⃣ Проверьте климатическое исполнение (УХЛ1, Т1, ОМ).

Пример подбора для КРУ 6 кВ:

- Тип: ИО-6.

- Материал: фарфор.

- Крепление: резьба М10.

- Климатическое исполнение: УХЛ.

Формат – AutoCAD 2010. #Чертежи

👉 Скачать файл "Чертеж опорного изолятора " – ЯндексДиск –

👇Подписчики получают больше материалов: закрытые посты, обновления каждую неделю!👇