Добавить в корзинуПозвонить
Найти в Дзене
GREY HOUSE

Энергоэффективный каркасный дом Байкал

Фото со сдачи дома. Площадь дома - 77 м2. - Фундамент - Железобетонные сваи 150х150х3000мм - Защитная сетка от грызунов - Каркас дома сухой строганный 45х195мм - Ветрозащита - JUTAVEK 115 - Пароизоляция Ютафол Н110+скотч Delta - Отделка снаружи - скандинавская доска толщиной 21мм с заводской покраской - Отделка внутри дома - стены и потолок - имитация бруса толщиной 16мм, пол - OSB 22 мм - Утепление - пол и кровля - 200 мм, наружные стены 150 мм Технониколь Роклайт, перегородки 100 мм - Отделка пола на террасе лиственницей толщиной 28мм - Кровля - Металлочерепица толщиной 0,45мм - Окна ПВХ Rehau Grazio толщиной 70мм двойной стеклопакет - Дверь входная - ПВХ Rehau толщиной 70мм - Водосточная система и снегозадержатели GrandLine - Ступени с поручнем - Разводка электрики 62 точки - Разводка труб ХВС и ГВС - Монтаж канализационных фановых труб по точкам - Вентиляционный выход на кровлю в кухне и в 2-х с/у - Утепленный Vilpe d125мм 1шт. - Приточный клапан - КИВ 125мм 2 шт. Строим в Московск
Оглавление

Фото со сдачи дома.

Площадь дома - 77 м2.

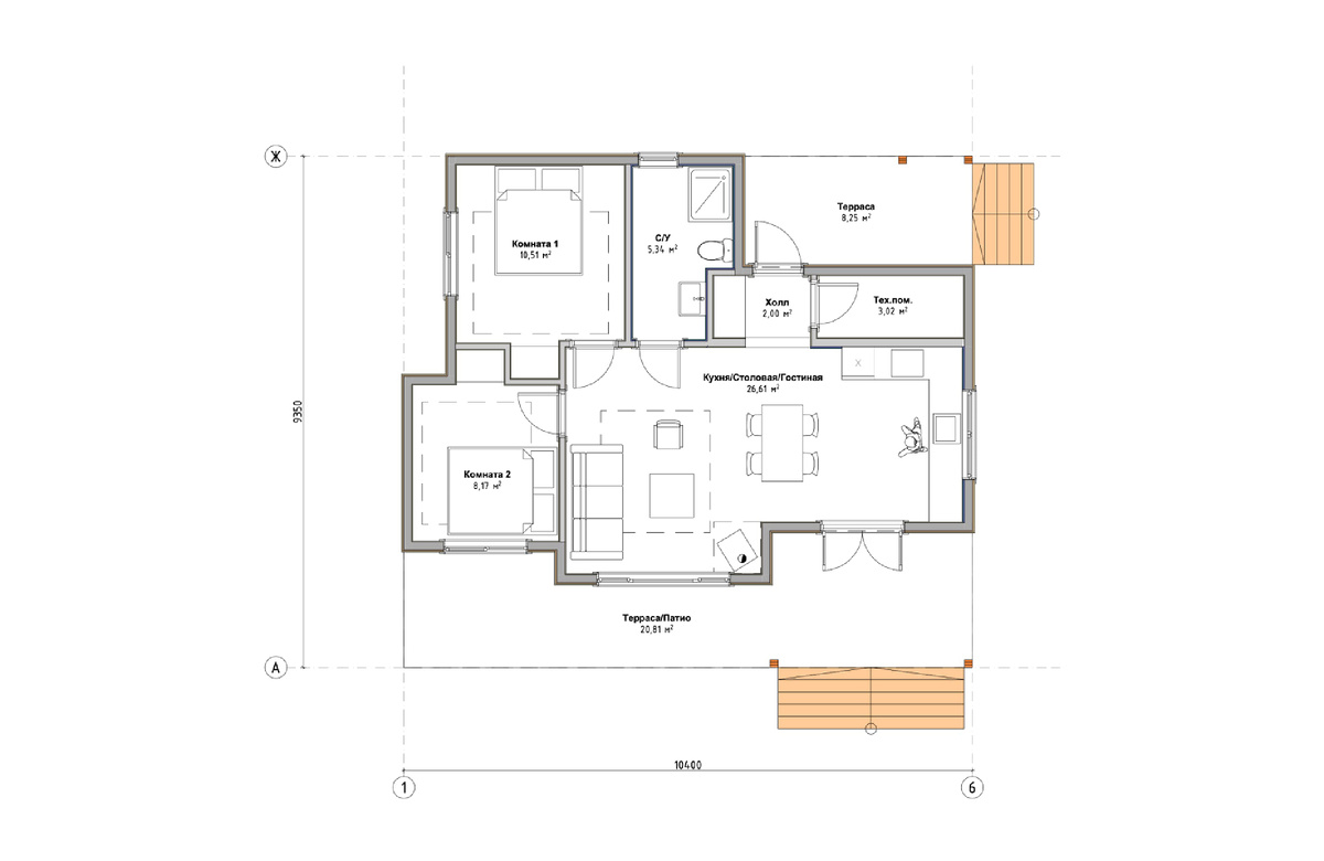
Планировка дома

Планировка дома Байкал
Планировка дома Байкал

Фотографии готового дома

Комплектация дома:

- Фундамент - Железобетонные сваи 150х150х3000мм

- Защитная сетка от грызунов

- Каркас дома сухой строганный 45х195мм

- Ветрозащита - JUTAVEK 115

- Пароизоляция Ютафол Н110+скотч Delta

- Отделка снаружи - скандинавская доска толщиной 21мм с заводской покраской

- Отделка внутри дома - стены и потолок - имитация бруса толщиной 16мм, пол - OSB 22 мм

- Утепление - пол и кровля - 200 мм, наружные стены 150 мм Технониколь Роклайт, перегородки 100 мм

- Отделка пола на террасе лиственницей толщиной 28мм

- Кровля - Металлочерепица толщиной 0,45мм

- Окна ПВХ Rehau Grazio толщиной 70мм двойной стеклопакет

- Дверь входная - ПВХ Rehau толщиной 70мм

- Водосточная система и снегозадержатели GrandLine

- Ступени с поручнем

- Разводка электрики 62 точки

- Разводка труб ХВС и ГВС

- Монтаж канализационных фановых труб по точкам

- Вентиляционный выход на кровлю в кухне и в 2-х с/у - Утепленный Vilpe d125мм 1шт.

- Приточный клапан - КИВ 125мм 2 шт.

Стоимость дома - https://grey-house.ru/nahi-raboty/dom-bajkal

Строим в Московской и Ленинградской областях

***
Все новости читайте в нашем телеграм-канале

Подписывайтесь на нашу группу Вконтакте

И, конечно же, подписывайтесь на нас в «Дзене»

Наши контакты:
Телефон:
8-495-504-71-33
mail@grey-house.ru
Сайт:
grey-house.ru