Найти в Дзене

Стильный и функциональный проект однокомнатной квартиры для молодой девушки!

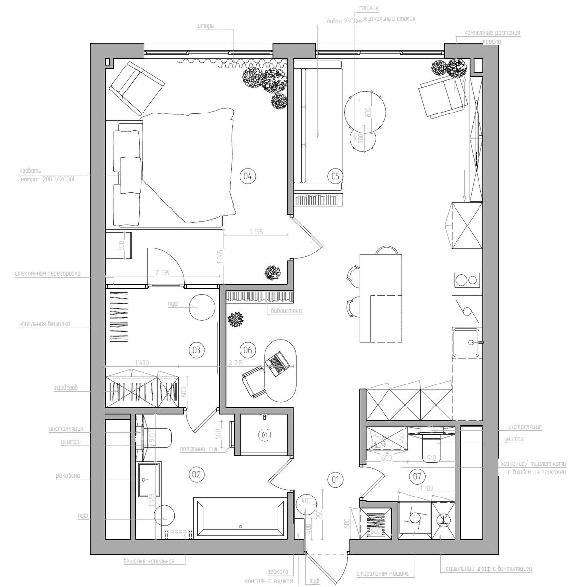
В обычной квартире я спроектировала планировку в стиле «квартиры Керри Брэдшоу». Здесь можно перемещаться по кругу, что особенно полезно для экономии времени Девушка предпочитает тёмные тона в интерьере, но опасается, что вся квартира будет выглядеть мрачной. Чтобы избежать этого, я предложила зонировать пространство: сделать прихожую, кухню и гостиную более светлыми, а спальню оформить в тёмных тонах. Заказчице понравилась эта идея. Синий — любимый цвет заказчицы, поэтому я использовала его для объединения всех зон помещения
Чтобы коту было удобно, я спроектировала проход в санузел через специальное отверстие. Так посторонние запахи не попадут в квартиру и можно не держать дверь открытой
Оглавление

Все начинается с планировки

Нестандартная планировка однушки по кругу. Дизайнер Харашкевич Юлия
Нестандартная планировка однушки по кругу. Дизайнер Харашкевич Юлия

В обычной квартире я спроектировала планировку в стиле «квартиры Керри Брэдшоу». Здесь можно перемещаться по кругу, что особенно полезно для экономии времени

Учла все пожелания заказчицы:

  • выделить блок спальня-гардероб-санузел
  • отделить прачечную
  • оставить место для кухни-гостиной
  • выделить зону для работы со столом
Девушка предпочитает тёмные тона в интерьере, но опасается, что вся квартира будет выглядеть мрачной. Чтобы избежать этого, я предложила зонировать пространство: сделать прихожую, кухню и гостиную более светлыми, а спальню оформить в тёмных тонах. Заказчице понравилась эта идея.

Синий — любимый цвет заказчицы, поэтому я использовала его для объединения всех зон помещения

И кот! Такой же лаконичный как интерьер


Чтобы коту было удобно, я спроектировала проход в санузел через специальное отверстие. Так посторонние запахи не попадут в квартиру и можно не держать дверь открытой

Котоход в стене для кота. Современный интерьер. Дизайнер Харашкевич Юлия
Котоход в стене для кота. Современный интерьер. Дизайнер Харашкевич Юлия