Добавить в корзинуПозвонить
Найти в Дзене
Филдс

Мини-кухня и винтажная мебель: элегантная студия 27 м² в духе старого Петербурга

Дизайнер Мария Бирюкова оформила студию 27 м² для краткосрочной сдачи в аренду. Перед автором проекта стояла задача создать нескучный интерьер, который бы отсылал к классической архитектуре Санкт-Петербурга. Квартира сдавалась с готовым ремонтом. Однако имеющаяся планировка и отделка владельцев жилья не устроили. Благодаря статусу апартаментов проблем с согласованием переустройства не возникло. В результате демонтировали стену, отделяющую прихожую от комнаты, а также построили ниши для кухни и большого встроенного шкафа. Для посуточной аренды масштабный функционал кухни не требовался, поэтому мини-гарнитур упаковали в небольшую нишу. Ее целиком облицевали вертикальной плиткой кораллового оттенка. Вместо навесных модулей установили антикварный навесной шкаф, который нашли на блошином рынке. Двухуровневый потолок прежде всего выполняет зонирующую функцию. Автор проекта решила не жертвовать ни зоной отдыха, ни полноценным спальным местом, поэтому в квартире появились достаточно массивна
Оглавление

Дизайнер Мария Бирюкова оформила студию 27 м² для краткосрочной сдачи в аренду. Перед автором проекта стояла задача создать нескучный интерьер, который бы отсылал к классической архитектуре Санкт-Петербурга.

  • Общая площадь: 27 м²
  • Место: Санкт-Петербург
  • Количество комнат: студия
  • Высота потолка: 3 м
  • Бюджет: 1,5 млн рублей
  • Кто здесь живет: сдается в аренду
  • Дизайнер: Мария Бирюкова
  • Стилист:Виктория Берлинская
  • Фото: Степан Мартынов

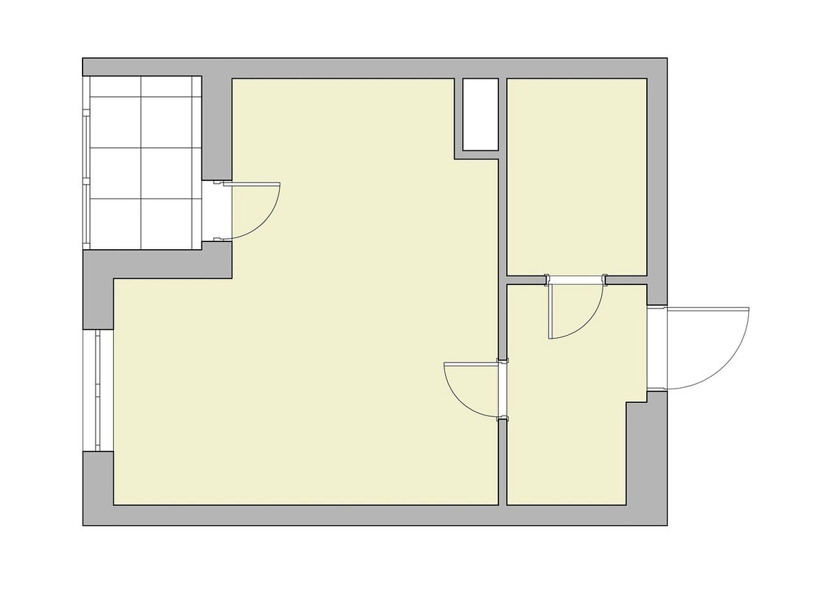
Планировка до и после

Квартира сдавалась с готовым ремонтом. Однако имеющаяся планировка и отделка владельцев жилья не устроили. Благодаря статусу апартаментов проблем с согласованием переустройства не возникло. В результате демонтировали стену, отделяющую прихожую от комнаты, а также построили ниши для кухни и большого встроенного шкафа.

Кухня

Для посуточной аренды масштабный функционал кухни не требовался, поэтому мини-гарнитур упаковали в небольшую нишу. Ее целиком облицевали вертикальной плиткой кораллового оттенка. Вместо навесных модулей установили антикварный навесной шкаф, который нашли на блошином рынке. Двухуровневый потолок прежде всего выполняет зонирующую функцию.

Спальня

Автор проекта решила не жертвовать ни зоной отдыха, ни полноценным спальным местом, поэтому в квартире появились достаточно массивная двуспальная кровать и изящная акцентная кушетка у окна. Зонировать пространство помогла сама конфигурация помещения.

Фасады и корпусы системы хранения вокруг телевизора оформили в двух цветах, что помогло добиться необычного визуального эффекта — тумба зрительно растворилась на фоне отделки, тогда как пеналы по бокам сработали на создание контраста.

Практически посередине комнаты расположили столовую группу. Компактный круглый стол укомплектовали винтажными стульями.

Прихожая

Отделка прихожей получилась сдержанной. Из мебели предусмотрели большой встроенный шкаф, который помог очертить границу с комнатой, а также банкетку, перекликающуюся с плиткой в зоне кухни. Зеркало в резной деревянной раме привнесло дух старого Петербурга.

Санузел

Санузел целиком и полностью облицевали керамогранитом под мрамор. Такое покрытие считается более износостойким для краткосрочной аренды, нежели краска. Для душевой предусмотрели стеклянное ограждение, а стиральную машину задвинули под столешницу.

Интересные мнения в комментариях приветствуются. Если материал понравился — ставь лайк!

🖤 Филдс — это не только блог на Дзене, но и магазин дизайнерской мебели. Заходите на сайт, чтобы увидеть предметы интерьера, которые дизайнеры выбирают для своих проектов.