Найти в Дзене
DIVAN.RU

Оттенки осени и много цвета в двухкомнатной квартире 56 кв.м

Этот интерьер полон цвета — здесь можно встретить зелень, терракоту, синий и, конечно, бордо. Смелые решения отражают характер и оптимистический взгляд на мир молодой хозяйки. Объект: двухкомнатная квартира 56 кв.м, г. Москва, ЖК «Береговой» Авторы проекта: дизайнеры Светлана Хабеева, Вика Папертная, стилист Светлана Кикина, автор фото Ольга Мелекесцева Застройщик сдавал квартиру с предчистовой отделкой. Здесь две изолированные комнаты, кухня, просторная прихожая и раздельный санузел. Изменения в планировку по просьбе заказчицы не вносили. Пространство кухни напоминает о летних путешествиях: цвет моря на стенах и верхних фасадах кухонного гарнитура, цвет полыни на нижних фасадах и римской шторе. Дубовый обеденный стол со стульями и ротанговая люстра над ним еще больше приближают нас к природе. Ярким акцентом гостиной выступает диван Мисл от бренда divan.ru — насыщенный оттенок обивки мнговенно привлекает внимание. Картина на стене и ковер делают композицию законченной, полынь в отделке
Оглавление

Этот интерьер полон цвета — здесь можно встретить зелень, терракоту, синий и, конечно, бордо. Смелые решения отражают характер и оптимистический взгляд на мир молодой хозяйки.

Авторы проекта: дизайнеры Светлана Хабеева и Вика Папертная, стилист Светлана Кикина, автор фото Ольга Мелекесцева
Авторы проекта: дизайнеры Светлана Хабеева и Вика Папертная, стилист Светлана Кикина, автор фото Ольга Мелекесцева

Объект: двухкомнатная квартира 56 кв.м, г. Москва, ЖК «Береговой»

Авторы проекта: дизайнеры Светлана Хабеева, Вика Папертная, стилист Светлана Кикина, автор фото Ольга Мелекесцева

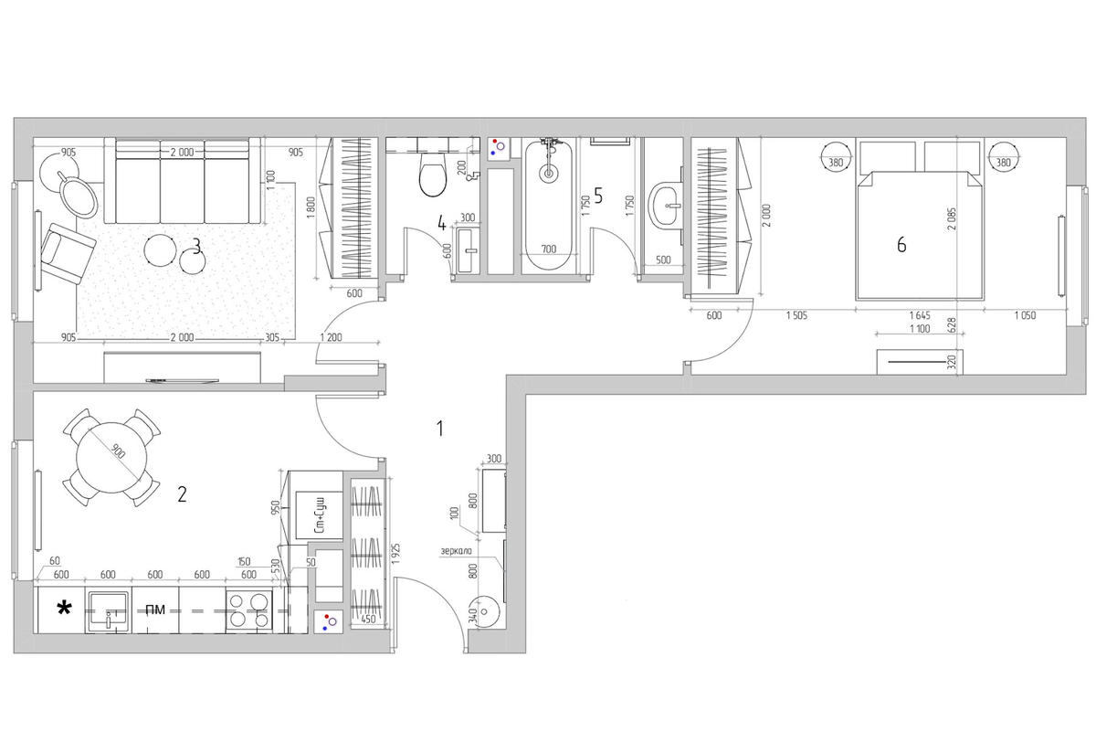
Застройщик сдавал квартиру с предчистовой отделкой. Здесь две изолированные комнаты, кухня, просторная прихожая и раздельный санузел. Изменения в планировку по просьбе заказчицы не вносили.

Планировочное решение и расстановка мебели
Планировочное решение и расстановка мебели

Кухня

Пространство кухни напоминает о летних путешествиях: цвет моря на стенах и верхних фасадах кухонного гарнитура, цвет полыни на нижних фасадах и римской шторе. Дубовый обеденный стол со стульями и ротанговая люстра над ним еще больше приближают нас к природе.

Гостиная

Ярким акцентом гостиной выступает диван Мисл от бренда divan.ru — насыщенный оттенок обивки мнговенно привлекает внимание. Картина на стене и ковер делают композицию законченной, полынь в отделке и серый в мебели и деталях «разбавляют» сочный винный оттенок.

Авторы проекта: дизайнеры Светлана Хабеева и Вика Папертная, стилист Светлана Кикина, автор фото Ольга Мелекесцева
Авторы проекта: дизайнеры Светлана Хабеева и Вика Папертная, стилист Светлана Кикина, автор фото Ольга Мелекесцева

В кадре диван Мисл Barhat Marsala от бренда divan.ru >>

Нам требовался раскладной диван за приемлемую цену. Хотелось сделать яркий цветовой акцент именно в винном оттенке. В divan.ru большая палитра цветов и тканей — это огромный плюс. Раскладной диван Мисл на тонких металлических ножках подошел по всем параметрам.

В кадре кресло Тилар Textile Grafit от бренда divan.ru >>

💥Готовы к главной распродаже года?💥 Мы уже снизили цены на тысячи товаров. Успейте купить мебель и декор со скидками до 50% на divan.ru >>

-6

Спальня

Самой «осенней» комнатой по своей палитре стала спальня. Бордовый цвет стен в сочетании с песочным панно и такого же цвета портьерами создают атмосферу спокойствия. Ротанговые прикроватные тумбы и деревянная этажерка, керамика — подчеркивают близость к природе этого интерьера.

Ванная комната и туалет

В ванной комнате скомбинированы два цвета: полынный и бордовый. Обратите внимание на затирку швов на плитке в зоне душа — она тоже бордового цвета. Динамику пространству задает овальная плитка, выложенная над раковиной. Местом для хранения выступает большая подвесная тумба с выдвигающимися ящиками. Акценты расставлены черным: подвесные лампы у зеркала, смесители, полотенцесушитель, розетки.

В туалете стены покрасили влагостойкой синей краской и выложили белой овальной плиткой. Зеркало неправильной формы отсылает нас к природным мотивам.

Прихожая

Цвет стен в прихожей и отделка пол в прихожей такие же, как в кухне. В роли акцентов — черная консоль с картиной, выключатели и зеркало, обрамленное деревом.

=========

Оцените интерьер в комментариях, а если статья понравилась — не забудьте поставить лайк.

🖤divan.ru — не только блог про интерьеры, но и производитель доступной дизайнерской мебели. Ищите новые идеи и переходите на сайт, чтобы воплотить их в жизнь.

*Цены актуальны на момент публикации статьи