Добавить в корзинуПозвонить
Найти в Дзене
ЭТО ВАШ ИНТЕРЬЕР

Нам с мамой надоел наш старый советский интерьер, и мы решили дать своей "двушке" новую жизнь! Теперь здесь по-настоящему хочется жить

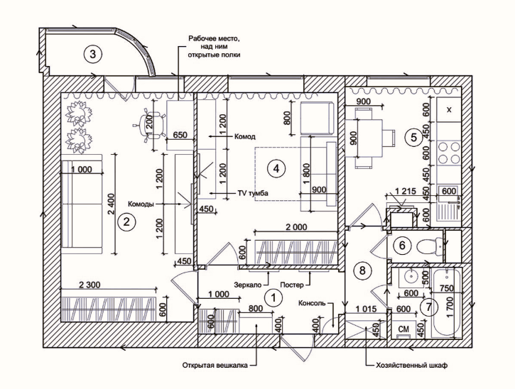
Это жилое помещение расположено в панельном многоквартирном доме, находящемся в южной части столицы. Собственник, зрелый мужчина, проживает здесь вместе со своей мамой. Интерьер, который долгое время радовал их, стал казаться им устаревшим, и они решили полностью изменить его. С этой целью они обратились к дизайнеру Марии Трещуковой. Давайте посмотрим, что из этого получилось. Стены в прихожей решили оклеить обоями под покраску и покрасить и в светлый нейтральный оттенок. Что касается пола, то здесь оставили плитку, которую хозяева клали много лет назад (она была в отличном состоянии и сильно нравилась владельцам). Слева от входа была организована открытая система хранения с мягкой банкеткой. Далее расположился вместительный гардероб. Так же в прихожей, рядом с ванной комнатой, разместили хозяйственный блок, где хранится: пылесос, швабы, бытовая техника и тд. Начнем с отделки — она полностью идентична с отделкой в прихожей. Справа от входа установили Г-образный кухонный гарнитур, сд
Оглавление

Это жилое помещение расположено в панельном многоквартирном доме, находящемся в южной части столицы. Собственник, зрелый мужчина, проживает здесь вместе со своей мамой.

Интерьер, который долгое время радовал их, стал казаться им устаревшим, и они решили полностью изменить его. С этой целью они обратились к дизайнеру Марии Трещуковой. Давайте посмотрим, что из этого получилось.

Проект

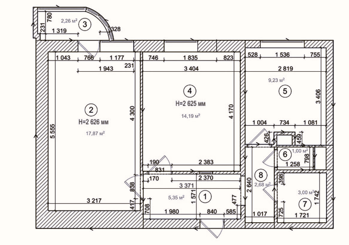
  • Местоположение: г. Москва
  • Площадь квартиры: 55 квадратных метров
  • Владельцы: мужчина со своей мамой
  • Срок ремонта: 3 месяца

Прихожая

Стены в прихожей решили оклеить обоями под покраску и покрасить и в светлый нейтральный оттенок. Что касается пола, то здесь оставили плитку, которую хозяева клали много лет назад (она была в отличном состоянии и сильно нравилась владельцам).

-3

Слева от входа была организована открытая система хранения с мягкой банкеткой. Далее расположился вместительный гардероб. Так же в прихожей, рядом с ванной комнатой, разместили хозяйственный блок, где хранится: пылесос, швабы, бытовая техника и тд.

-4

Кухня

Начнем с отделки — она полностью идентична с отделкой в прихожей. Справа от входа установили Г-образный кухонный гарнитур, сделанный по индивидуальным размерам. Фасады специально подобрали в тон стенам, чтобы гарнитур растворился в пространстве, и чтобы лишний раз не утяжелял небольшое помещение.

На фартуке использовали плитку под мрамор. Напротив гарнитура разместили полноценную столовую зону с большим обеденным столом. При входе так же удалось расположить небольшой телевизор.

-6

Предвидя некоторых комментаторов, сразу скажу про холодильник — он находится слева от варочной панели! Он просто не попал на фото, но на плане его видно!

Гостиная

В самой большой комнате было решено организовать зону гостиной. Для стен выбрали всё те же обои, а вот на полу уложен ламинат. Слева от входа был установлен большой гардероб, который занимает практически всю стену.

-8

В центре находится большой диван и телевизионная зона. Кстати, именно этот раскладной диван является спальным местом для хозяина квартиры (он сам захотел себе раскладной диван вместо полноценной кровати).

Поскольку наш герой часто трудится удалённо, находясь у себя дома, ему потребовалось оборудовать рабочее место. Дизайнер, разумеется, откликнулся на его просьбу и обустроил уголок для работы рядом с окном.

-10

Спальня мамы

Для оформления комнаты матери заказчик пожелал создать атмосферу умиротворения и покоя. В связи с этим было решено использовать тёплые оттенки серого в сочетании с нежным розовым цветом. В результате получилось уютное пространство, идеально подходящее для сна, чтения и отдыха.

За хранение здесь отвечает большой шкаф при входе в комнату, а в качестве спального места здесь тоже выступает раскладной диван (сразу скажу — это была просьба мамы!).

Ванная комната

В оформлении стен ванной комнаты была использована та же плитка с имитацией мрамора, что и на кухонном фартуке. Интерьер был дополнен чёрными смесителями и другими элементами, придающими графичность.

-13

Также в помещении появилась деревянная тумба и экран, выполненные из дерева, что придало помещению уюта и тепла. И, конечно же, здесь нашлось место для стиральной машины, которая расположена напротив раковины.

Если вам понравилась статья, то не забудьте поставить лайк и подписаться, чтобы не пропустить новый материал!

Так же пишите в комментариях, что вам понравилось в этом проекте, а что вызывает сомнения.