Найти в Дзене

Влияние формы крыши и фасадов на восприятие дома.

Осенью 2024 года в архитектурном бюро Ладом был разработан проект Березово. Задачей было спроектировать дом для семьи из 3-4 человек, со всеми необходимыми вспомогательными помещениями и террасой. В итоге получилась вот такая планировка: Благодаря удачному планированию удалось выделить гостевую зону и зону спален. Общая площадь 112 кв.м с террасой. В результате получили небольшой эргономичный дом. Чуть позже заказчик увидел в нашем портфолио этот проект попросил внести корректировки: убрать одну спальню и добавить гараж. В результате перепланировки получили следующую планировку: Новый проект получил название Березово Парк. Изменения коснулись входной группы и добавления гаража (с его появлением мы перенесли котельную именно в гараж). Площадь получившегося дома составила 130 кв.м И теперь самое интересное! При проработке фасадов и кровли мы решили попробовать поменять вид кровли - вот что из этого получилось: Внешний вид конечно дело вкуса. Но фактически мы получили дома с совершенно ра

Осенью 2024 года в архитектурном бюро Ладом был разработан проект Березово. Задачей было спроектировать дом для семьи из 3-4 человек, со всеми необходимыми вспомогательными помещениями и террасой. В итоге получилась вот такая планировка:

Планировочное решение дома Березово
Планировочное решение дома Березово

Благодаря удачному планированию удалось выделить гостевую зону и зону спален. Общая площадь 112 кв.м с террасой. В результате получили небольшой эргономичный дом.

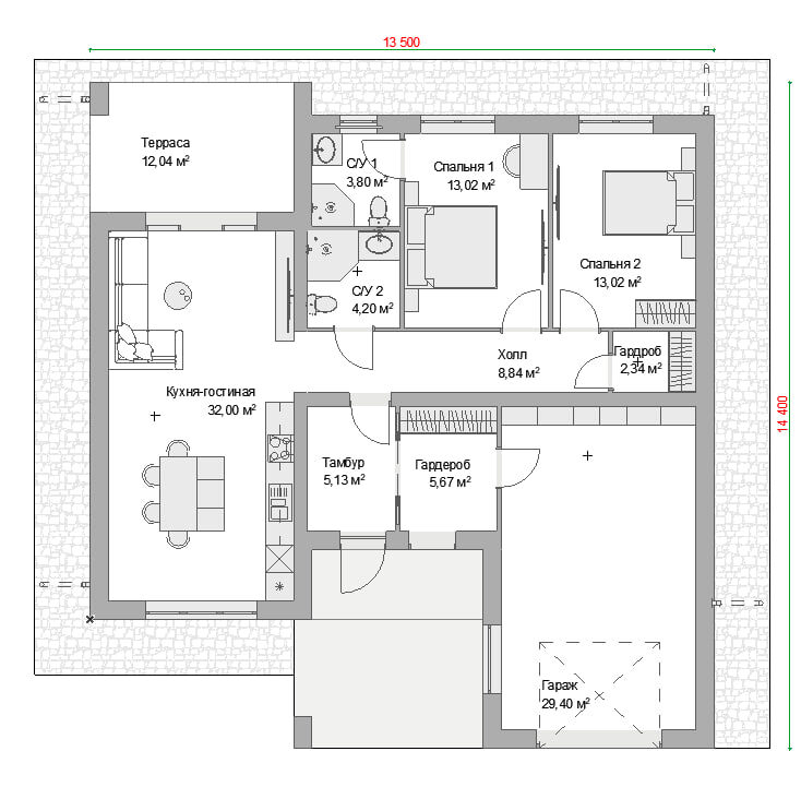
Чуть позже заказчик увидел в нашем портфолио этот проект попросил внести корректировки: убрать одну спальню и добавить гараж. В результате перепланировки получили следующую планировку:

Планировочное решение Березово Парк
Планировочное решение Березово Парк

Новый проект получил название Березово Парк. Изменения коснулись входной группы и добавления гаража (с его появлением мы перенесли котельную именно в гараж). Площадь получившегося дома составила 130 кв.м

И теперь самое интересное!

При проработке фасадов и кровли мы решили попробовать поменять вид кровли - вот что из этого получилось:

Внешний вид конечно дело вкуса. Но фактически мы получили дома с совершенно разной энергетикой - от озорного Березово перешли к весьма консервативному Березово Парк!

Предлагаем оценить получившиеся проекты в комментариях.

И еще раз рассмотреть дома в деталях.

Жилой дом Березово 112 кв.м

Жилой дом Березово Парк 130 кв.м

И как всегда готовы сделать проект и построить любой каменный дом на вашем или нашем участке. С актуальными проектами можно ознакомится на сайте СК Ладом