Найти в Дзене

На месте бывшего мясокомбината в центре Нижнего Новгорода построят шестиэтажку

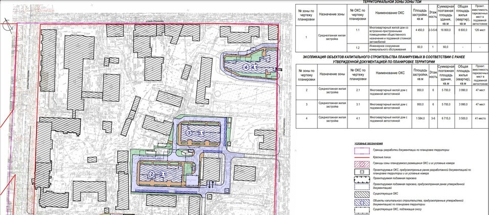
В Нижнем Новгороде вынесли на общественные обсуждения проект планировки территории, включая проект межевания территории, в границах улиц Ковалихинской, Нестерова, Ульянова, Семашко. На участке, где ранее располагался «Ковалихинский мясокомбинат», планируется строительство жилых домов. Согласно документам с сайта мэрии, заказчиком выступило ООО «Дом на Ковалихе», разработчик проектной документации — ООО «Русский дом-НН». Она предусматривает строительство многоквартирных домов переменной этажности (2-6 этажей и 3-6 этажей), двух жилых зданий с встроенно-пристроенными помещениями общественного назначения (по 6 этажей), а также создание комплекса площадок общего пользования, объединенных в спортивно-игровой кластер, который включает: Проект будет проходить общественные обсуждения до 22 ноября 2024 г. Напомним, нижегородский архитектурный совет при региональном минграде обсудил концепцию застройки участка в границах улиц Ковалихинской, Нестерова, Ульянова и Семашко в 2023 г. Она предполагал

В Нижнем Новгороде вынесли на общественные обсуждения проект планировки территории, включая проект межевания территории, в границах улиц Ковалихинской, Нестерова, Ульянова, Семашко. На участке, где ранее располагался «Ковалихинский мясокомбинат», планируется строительство жилых домов.

Согласно документам с сайта мэрии, заказчиком выступило ООО «Дом на Ковалихе», разработчик проектной документации — ООО «Русский дом-НН». Она предусматривает строительство многоквартирных домов переменной этажности (2-6 этажей и 3-6 этажей), двух жилых зданий с встроенно-пристроенными помещениями общественного назначения (по 6 этажей), а также создание комплекса площадок общего пользования, объединенных в спортивно-игровой кластер, который включает:

  • площадки для детей дошкольного и младшего школьного возрастов;
  • спортивно-развлекательные игровые зоны;
  • площадки для отдыха взрослого населения;
  • благоустройство и озеленение прилегающей территории.

Проект будет проходить общественные обсуждения до 22 ноября 2024 г.

Напомним, нижегородский архитектурный совет при региональном минграде обсудил концепцию застройки участка в границах улиц Ковалихинской, Нестерова, Ульянова и Семашко в 2023 г. Она предполагала размещение на первой линии улицы Ковалихинской коммерческих зданий.

NN.DK.RU писал также, здание бывшего мясокомбината в Нижнем Новгороде снесли в конце лета 2023 г. В ходе работ были выявлены нарушения.