Π”ΠΎΠ±Π°Π²ΠΈΡ‚ΡŒ Π² ΠΊΠΎΡ€Π·ΠΈΠ½ΡƒΠŸΠΎΠ·Π²ΠΎΠ½ΠΈΡ‚ΡŒ
Найти Π² Π”Π·Π΅Π½Π΅

🏠 Π“ΠΎΡ‚ΠΎΠ²Ρ‹ΠΉ ΠΏΡ€ΠΎΠ΅ΠΊΡ‚ каркасного Π΄ΠΎΠΌΠ°: Ideal 133 – ΠŸΡ€ΠΎΡΡ‚ΠΎΡ€ ΠΈ ΠΊΠΎΠΌΡ„ΠΎΡ€Ρ‚ Π² ΠΊΠ°ΠΆΠ΄ΠΎΠΉ Π΄Π΅Ρ‚Π°Π»ΠΈ

Если Π²Ρ‹ ΠΌΠ΅Ρ‡Ρ‚Π°Π΅Ρ‚Π΅ ΠΎ Π΄ΠΎΠΌΠ΅ с ΠΌΠ°ΠΊΡΠΈΠΌΠ°Π»ΡŒΠ½Ρ‹ΠΌ ΠΊΠΎΠΌΡ„ΠΎΡ€Ρ‚ΠΎΠΌ для всСй сСмьи, ΠΏΡ€ΠΎΠ΅ΠΊΡ‚ Ideal 133 станСт ΠΎΡ‚Π»ΠΈΡ‡Π½Ρ‹ΠΌ Π²Ρ‹Π±ΠΎΡ€ΠΎΠΌ. Π­Ρ‚ΠΎΡ‚ просторный Π΄ΠΎΠΌ с трСмя спальнями ΠΈ ΠΎΡ‚ΠΊΡ€Ρ‹Ρ‚ΠΎΠΉ гостиной идСально ΠΏΠΎΠ΄Ρ…ΠΎΠ΄ΠΈΡ‚ для Ρ‚Π΅Ρ…, ΠΊΡ‚ΠΎ Ρ†Π΅Π½ΠΈΡ‚ Ρ„ΡƒΠ½ΠΊΡ†ΠΈΠΎΠ½Π°Π»ΡŒΠ½ΠΎΡΡ‚ΡŒ ΠΈ эстСтику.
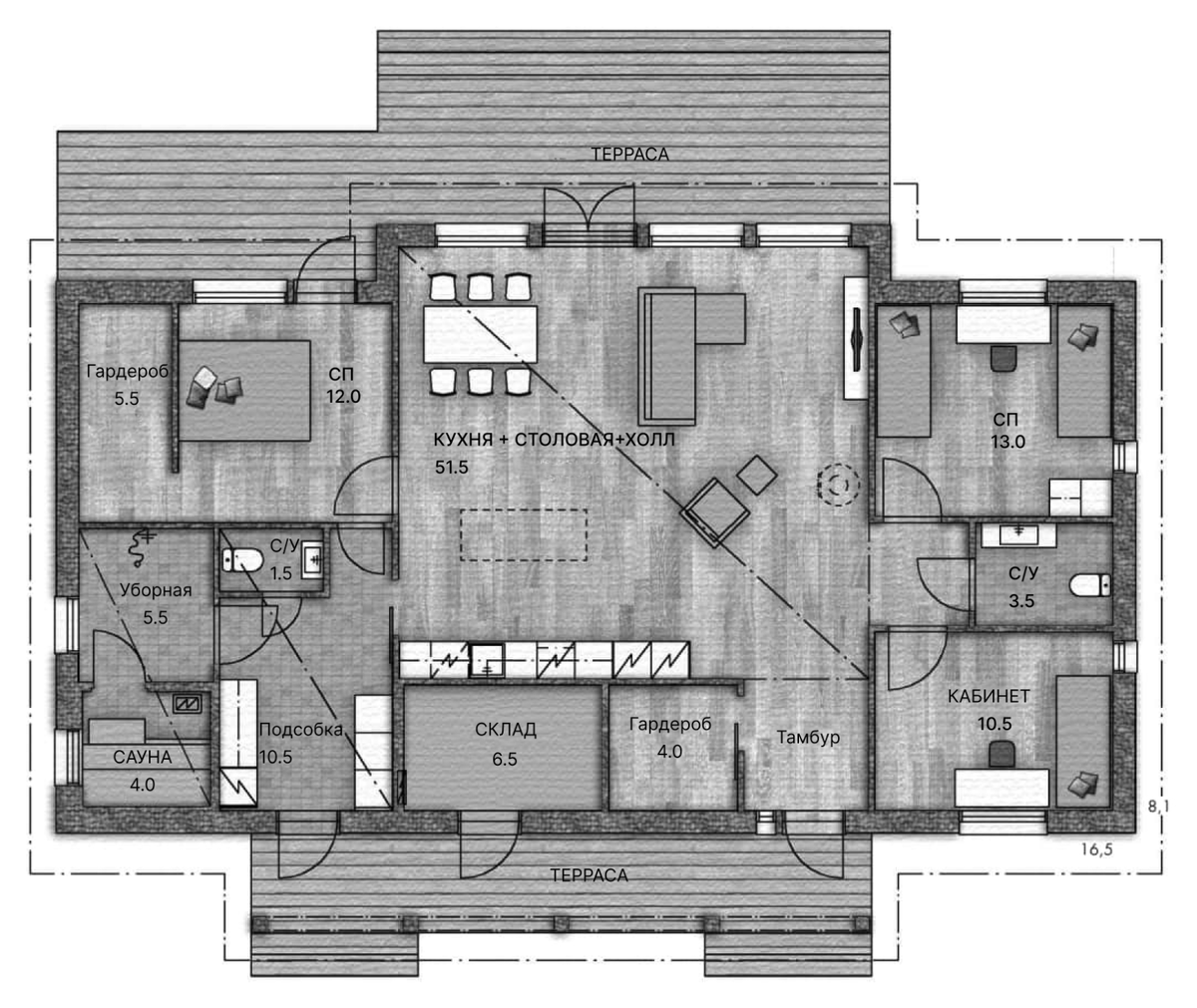
ΠŸΡ€ΠΎΠ΅ΠΊΡ‚ Π΄ΠΎΠΌΠ° - https://scandicprofile.ru/ideal-133/ Π Π°Π·ΠΌΠ΅Ρ€: 16,50 ΠΌ Γ— 8,10 ΠΌ
ΠŸΠ»ΠΎΡ‰Π°Π΄ΡŒ: 158 ΠΌΒ²
ΠšΠΎΠ»ΠΈΡ‡Π΅ΡΡ‚Π²ΠΎ ΠΊΠΎΠΌΠ½Π°Ρ‚: 4
ΠžΡΠΎΠ±Π΅Π½Π½ΠΎΡΡ‚ΠΈ: Для Ρ‚ΠΎΠ³ΠΎ Ρ‡Ρ‚ΠΎΠ±Ρ‹ ваш Π΄ΠΎΠΌ идСально вписался Π² любой Π»Π°Π½Π΄ΡˆΠ°Ρ„Ρ‚, ΠΏΡ€Π΅Π΄Π»Π°Π³Π°ΡŽΡ‚ΡΡ нСсколько Π²Π°Ρ€ΠΈΠ°Π½Ρ‚ΠΎΠ² ΠΎΡ‚Π΄Π΅Π»ΠΊΠΈ фасада: ΠŸΡ€ΠΎΠ΅ΠΊΡ‚ Ideal 133 ΠΌΠΎΠΆΠ΅Ρ‚ Π±Ρ‹Ρ‚ΡŒ Π°Π΄Π°ΠΏΡ‚ΠΈΡ€ΠΎΠ²Π°Π½ ΠΏΠΎΠ΄ Π»ΡŽΠ±Ρ‹Π΅ потрСбности. Π’Ρ‹ ΠΌΠΎΠΆΠ΅Ρ‚Π΅ Π²Ρ‹Π±Ρ€Π°Ρ‚ΡŒ Π±Π°Π·ΠΎΠ²Ρ‹ΠΉ Π΄ΠΎΠΌΠΎΠΊΠΎΠΌΠΏΠ»Π΅ΠΊΡ‚, ΠΊΠΎΡ‚ΠΎΡ€Ρ‹ΠΉ Π²ΠΊΠ»ΡŽΡ‡Π°Π΅Ρ‚ всС основныС элСмСнты, ΠΈΠ»ΠΈ ΠΆΠ΅ ΠΎΡΡ‚Π°Π½ΠΎΠ²ΠΈΡ‚ΡŒΡΡ Π½Π° Π±ΠΎΠ»Π΅Π΅ ΠΏΡ€ΠΎΠ΄Π²ΠΈΠ½ΡƒΡ‚ΠΎΠΉ ΠΊΠΎΠΌΠΏΠ»Π΅ΠΊΡ‚Π°Ρ†ΠΈΠΈ с Ρ‚Ρ‘ΠΏΠ»Ρ‹ΠΌ ΠΊΠΎΠ½Ρ‚ΡƒΡ€ΠΎΠΌ ΠΈ Π΄ΠΎΠΏΠΎΠ»Π½ΠΈΡ‚Π΅Π»ΡŒΠ½Ρ‹ΠΌΠΈ опциями, ΠΊΠΎΡ‚ΠΎΡ€Ρ‹Π΅ обСспСчат ΡƒΡŽΡ‚ ΠΈ Ρ‚Π΅ΠΏΠ»ΠΎ Π² Π΄ΠΎΠΌΠ΅ Π² любоС врСмя Π³ΠΎΠ΄Π°. Π­Ρ‚ΠΎΡ‚ ΠΏΡ€ΠΎΠ΅ΠΊΡ‚ ΠΈΠ΄Π΅Π°Π»Π΅Π½ для Ρ‚Π΅Ρ…, ΠΊΡ‚ΠΎ Ρ…ΠΎΡ‡Π΅Ρ‚ Π½Π°ΡΠ»Π°ΠΆΠ΄Π°Ρ‚ΡŒΡΡ ΠΊΠ°ΠΆΠ΄Ρ‹ΠΌ ΠΌΠΎΠΌΠ΅Π½Ρ‚ΠΎΠΌ Π² своём Π΄ΠΎΠΌΠ΅. Π£Π΄ΠΎΠ±Π½ΠΎΠ΅ располоТСниС ΠΊΠΎΠΌΠ½Π°Ρ‚, просторныС ΠΈ свСтлыС помСщСния, Π° Ρ‚Π°ΠΊΠΆΠ΅ Π²ΠΎΠ·ΠΌΠΎΠΆΠ½ΠΎΡΡ‚ΡŒ Π²Ρ‹Π±Ρ€Π°Ρ‚ΡŒ ΠΎΡ‚Π΄Π΅Π»ΠΊΡƒ, ΡΠΎΠΎΡ‚Π²Π΅Ρ‚ΡΡ‚Π²ΡƒΡŽΡ‰ΡƒΡŽ Π²Π°ΡˆΠ΅ΠΌΡƒ ΡΡ‚ΠΈΠ»ΡŽ β€” всё это Π΄Π΅Π»Π°Π΅Ρ‚ Ideal
ОглавлСниС

Если Π²Ρ‹ ΠΌΠ΅Ρ‡Ρ‚Π°Π΅Ρ‚Π΅ ΠΎ Π΄ΠΎΠΌΠ΅ с ΠΌΠ°ΠΊΡΠΈΠΌΠ°Π»ΡŒΠ½Ρ‹ΠΌ ΠΊΠΎΠΌΡ„ΠΎΡ€Ρ‚ΠΎΠΌ для всСй сСмьи, ΠΏΡ€ΠΎΠ΅ΠΊΡ‚ Ideal 133 станСт ΠΎΡ‚Π»ΠΈΡ‡Π½Ρ‹ΠΌ Π²Ρ‹Π±ΠΎΡ€ΠΎΠΌ. Π­Ρ‚ΠΎΡ‚ просторный Π΄ΠΎΠΌ с трСмя спальнями ΠΈ ΠΎΡ‚ΠΊΡ€Ρ‹Ρ‚ΠΎΠΉ гостиной идСально ΠΏΠΎΠ΄Ρ…ΠΎΠ΄ΠΈΡ‚ для Ρ‚Π΅Ρ…, ΠΊΡ‚ΠΎ Ρ†Π΅Π½ΠΈΡ‚ Ρ„ΡƒΠ½ΠΊΡ†ΠΈΠΎΠ½Π°Π»ΡŒΠ½ΠΎΡΡ‚ΡŒ ΠΈ эстСтику.

ΠŸΡ€ΠΎΠ΅ΠΊΡ‚ Π΄ΠΎΠΌΠ° -
https://scandicprofile.ru/ideal-133/

О домС:

Π Π°Π·ΠΌΠ΅Ρ€: 16,50 ΠΌ Γ— 8,10 ΠΌ
ΠŸΠ»ΠΎΡ‰Π°Π΄ΡŒ: 158 ΠΌΒ²
ΠšΠΎΠ»ΠΈΡ‡Π΅ΡΡ‚Π²ΠΎ ΠΊΠΎΠΌΠ½Π°Ρ‚: 4
ΠžΡΠΎΠ±Π΅Π½Π½ΠΎΡΡ‚ΠΈ:

-2

  • Гостиная: Π’ этом Π΄ΠΎΠΌΠ΅ сразу ΠΏΡ€ΠΈ Π²Ρ…ΠΎΠ΄Π΅ вас встрСчаСт большая, свСтлая гостиная, которая становится Ρ†Π΅Π½Ρ‚Ρ€ΠΎΠΌ всСй ΠΆΠΈΠ·Π½ΠΈ. ΠŸΡ€ΠΎΡΡ‚ΠΎΡ€ ΠΈ удобство – основа для сСмСйных Π²Π΅Ρ‡Π΅Ρ€ΠΎΠ² ΠΈ встрСч с Π΄Ρ€ΡƒΠ·ΡŒΡΠΌΠΈ.
  • Бпальни: ВсС Ρ‚Ρ€ΠΈ спальни располоТСны Π² ΠΊΠΎΠ½Ρ†Π΅ Π΄ΠΎΠΌΠ°, Ρ‡Ρ‚ΠΎ обСспСчиваСт ΠΏΡ€ΠΈΠ²Π°Ρ‚Π½ΠΎΡΡ‚ΡŒ ΠΈ ΡƒΡŽΡ‚. ΠœΠ°ΡΡ‚Π΅Ρ€ спальня с просторной Π³Π°Ρ€Π΄Π΅Ρ€ΠΎΠ±Π½ΠΎΠΉ – идСальноС мСсто для ΠΎΡ‚Π΄Ρ‹Ρ…Π°, Π° Π²Ρ‹Ρ…ΠΎΠ΄ Π½Π° тСррасу добавляСт особый ΠΊΠΎΠΌΡ„ΠΎΡ€Ρ‚.
  • ΠšΡƒΡ…Π½Ρ-гостиная: ΠŸΡ€ΠΎΡΡ‚ΠΎΡ€Π½Π°Ρ кухня с совмСщённой гостиной – мСсто для ΠΊΡƒΠ»ΠΈΠ½Π°Ρ€Π½Ρ‹Ρ… экспСримСнтов ΠΈ друТСских посидСлок. Всё ΠΏΠΎΠ΄ Ρ€ΡƒΠΊΠΎΠΉ, всё Π½Π° мСстС.
-3
-4

Π’Π°Ρ€ΠΈΠ°Π½Ρ‚Ρ‹ внСшнСй ΠΎΡ‚Π΄Π΅Π»ΠΊΠΈ:

Для Ρ‚ΠΎΠ³ΠΎ Ρ‡Ρ‚ΠΎΠ±Ρ‹ ваш Π΄ΠΎΠΌ идСально вписался Π² любой Π»Π°Π½Π΄ΡˆΠ°Ρ„Ρ‚, ΠΏΡ€Π΅Π΄Π»Π°Π³Π°ΡŽΡ‚ΡΡ нСсколько Π²Π°Ρ€ΠΈΠ°Π½Ρ‚ΠΎΠ² ΠΎΡ‚Π΄Π΅Π»ΠΊΠΈ фасада:

  • Π˜ΠΌΠΈΡ‚Π°Ρ†ΠΈΡ бруса Π³ΠΎΡ€ΠΈΠ·ΠΎΠ½Ρ‚Π°Π»ΡŒΠ½Π°Ρ
  • Π˜ΠΌΠΈΡ‚Π°Ρ†ΠΈΡ бруса Π²Π΅Ρ€Ρ‚ΠΈΠΊΠ°Π»ΡŒΠ½Π°Ρ
  • ПланкСн

Π‘Ρ‚ΠΎΠΈΠΌΠΎΡΡ‚ΡŒ ΠΊΠΎΠΌΠΏΠ»Π΅ΠΊΡ‚Π°Ρ†ΠΈΠΈ:

  • Π”ΠΎΠΌΠΎΠΊΠΎΠΌΠΏΠ»Π΅ΠΊΡ‚: ΠΎΡ‚ 6 320 000 β‚½
  • Π’Ρ‘ΠΏΠ»Ρ‹ΠΉ ΠΊΠΎΠ½Ρ‚ΡƒΡ€: 9 480 000 β‚½
  • Под Ρ‚Π°ΠΏΠΎΡ‡ΠΊΠΈ: 14 220 000 β‚½

Π§Ρ‚ΠΎ Π²Ρ…ΠΎΠ΄ΠΈΡ‚ Π² ΠΊΠΎΠΌΠΏΠ»Π΅ΠΊΡ‚Π°Ρ†ΠΈΡŽ:

ΠŸΡ€ΠΎΠ΅ΠΊΡ‚ Ideal 133 ΠΌΠΎΠΆΠ΅Ρ‚ Π±Ρ‹Ρ‚ΡŒ Π°Π΄Π°ΠΏΡ‚ΠΈΡ€ΠΎΠ²Π°Π½ ΠΏΠΎΠ΄ Π»ΡŽΠ±Ρ‹Π΅ потрСбности. Π’Ρ‹ ΠΌΠΎΠΆΠ΅Ρ‚Π΅ Π²Ρ‹Π±Ρ€Π°Ρ‚ΡŒ Π±Π°Π·ΠΎΠ²Ρ‹ΠΉ Π΄ΠΎΠΌΠΎΠΊΠΎΠΌΠΏΠ»Π΅ΠΊΡ‚, ΠΊΠΎΡ‚ΠΎΡ€Ρ‹ΠΉ Π²ΠΊΠ»ΡŽΡ‡Π°Π΅Ρ‚ всС основныС элСмСнты, ΠΈΠ»ΠΈ ΠΆΠ΅ ΠΎΡΡ‚Π°Π½ΠΎΠ²ΠΈΡ‚ΡŒΡΡ Π½Π° Π±ΠΎΠ»Π΅Π΅ ΠΏΡ€ΠΎΠ΄Π²ΠΈΠ½ΡƒΡ‚ΠΎΠΉ ΠΊΠΎΠΌΠΏΠ»Π΅ΠΊΡ‚Π°Ρ†ΠΈΠΈ с Ρ‚Ρ‘ΠΏΠ»Ρ‹ΠΌ ΠΊΠΎΠ½Ρ‚ΡƒΡ€ΠΎΠΌ ΠΈ Π΄ΠΎΠΏΠΎΠ»Π½ΠΈΡ‚Π΅Π»ΡŒΠ½Ρ‹ΠΌΠΈ опциями, ΠΊΠΎΡ‚ΠΎΡ€Ρ‹Π΅ обСспСчат ΡƒΡŽΡ‚ ΠΈ Ρ‚Π΅ΠΏΠ»ΠΎ Π² Π΄ΠΎΠΌΠ΅ Π² любоС врСмя Π³ΠΎΠ΄Π°.

ΠŸΠΎΡ‡Π΅ΠΌΡƒ Ideal 133?

Π­Ρ‚ΠΎΡ‚ ΠΏΡ€ΠΎΠ΅ΠΊΡ‚ ΠΈΠ΄Π΅Π°Π»Π΅Π½ для Ρ‚Π΅Ρ…, ΠΊΡ‚ΠΎ Ρ…ΠΎΡ‡Π΅Ρ‚ Π½Π°ΡΠ»Π°ΠΆΠ΄Π°Ρ‚ΡŒΡΡ ΠΊΠ°ΠΆΠ΄Ρ‹ΠΌ ΠΌΠΎΠΌΠ΅Π½Ρ‚ΠΎΠΌ Π² своём Π΄ΠΎΠΌΠ΅. Π£Π΄ΠΎΠ±Π½ΠΎΠ΅ располоТСниС ΠΊΠΎΠΌΠ½Π°Ρ‚, просторныС ΠΈ свСтлыС помСщСния, Π° Ρ‚Π°ΠΊΠΆΠ΅ Π²ΠΎΠ·ΠΌΠΎΠΆΠ½ΠΎΡΡ‚ΡŒ Π²Ρ‹Π±Ρ€Π°Ρ‚ΡŒ ΠΎΡ‚Π΄Π΅Π»ΠΊΡƒ, ΡΠΎΠΎΡ‚Π²Π΅Ρ‚ΡΡ‚Π²ΡƒΡŽΡ‰ΡƒΡŽ Π²Π°ΡˆΠ΅ΠΌΡƒ ΡΡ‚ΠΈΠ»ΡŽ β€” всё это Π΄Π΅Π»Π°Π΅Ρ‚ Ideal 133 ΠΎΡ‚Π»ΠΈΡ‡Π½Ρ‹ΠΌ Π²Ρ‹Π±ΠΎΡ€ΠΎΠΌ для ΠΊΠΎΠΌΡ„ΠΎΡ€Ρ‚Π½ΠΎΠΉ ΠΆΠΈΠ·Π½ΠΈ.

Π—Π΄Π΅ΡΡŒ Π΅ΡΡ‚ΡŒ всё для Ρ‚ΠΎΠ³ΠΎ, Ρ‡Ρ‚ΠΎΠ±Ρ‹ Ρ‡ΡƒΠ²ΡΡ‚Π²ΠΎΠ²Π°Ρ‚ΡŒ сСбя ΠΊΠ°ΠΊ Π΄ΠΎΠΌΠ°, нСзависимо ΠΎΡ‚ Π²Ρ€Π΅ΠΌΠ΅Π½ΠΈ Π³ΠΎΠ΄Π°. Π­Ρ‚ΠΎΡ‚ Π΄ΠΎΠΌ создаст атмосфСру ΡƒΡŽΡ‚Π° ΠΈ Ρ‚Π΅ΠΏΠ»Π° для вашСй сСмьи Π½Π° Π΄ΠΎΠ»Π³ΠΈΠ΅ Π³ΠΎΠ΄Ρ‹!

πŸ”‘ ΠŸΡƒΡΡ‚ΡŒ ваш Π΄ΠΎΠΌ Π±ΡƒΠ΄Π΅Ρ‚ Ρ‚Π°ΠΊΠΈΠΌ, ΠΊΠ°ΠΊΠΈΠΌ Π²Ρ‹ всСгда Π΅Π³ΠΎ прСдставляли! 🌟

#каркасныйдом #ΠΏΡ€ΠΎΠ΅ΠΊΡ‚Ideal133 #ΠΊΠΎΠΌΡ„ΠΎΡ€Ρ‚Π½Ρ‹ΠΉΠ΄ΠΎΠΌ #ΡΡ‚Ρ€ΠΎΠΈΡ‚Π΅Π»ΡŒΡΡ‚Π²ΠΎ #Π΄ΠΎΠΌΠΏΠΎΠ΄ΠΊΠ»ΡŽΡ‡ #ΠΆΠΈΠ»ΠΈΡ‰Π½Ρ‹Π΅ΠΏΡ€ΠΎΠ΅ΠΊΡ‚ΠΈΡ€Ρ‹ #домаотпроизводитСля #Π΄ΠΎΠΌΠΎΠΊΠΎΠΌΠΏΠ»Π΅ΠΊΡ‚