Добавить в корзинуПозвонить
Найти в Дзене

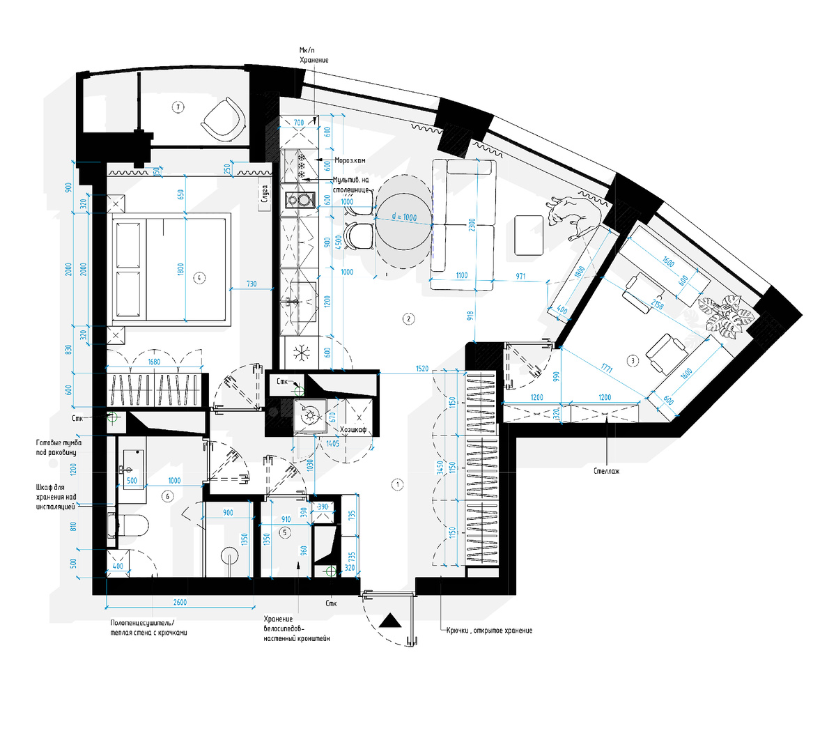
Особенности планировки для круглой квартиры

Сложность при проектировании была в том, что дом круглой формы, комнаты без четкой геометрии. Квартира для молодых ребят с большим лабрадором.
Площадь квартиры - 60 м2
Планировка от застройщика была такой: Итак, что мы сделали:
1. небольшой кабинет с двумя рабочими столами, полноценный хоум-офис 2. нет отдельного гардероба, все вещи хранятся в большом шкафу в коридоре 3. кладовка для велосипедов, так как заказчики активно ими пользуются 4. вынесли стиральную и сушильную машины в коридор, чтобы не занимать места в санузле 5. не присоединяли балкон, оставив его под место отдыха с кальяном 6. перенесли вход в кабинет из коридора в гостиную, увеличив так прихожую и сделав систему хранения Как вам результат?

Сложность при проектировании была в том, что дом круглой формы, комнаты без четкой геометрии.

Квартира для молодых ребят с большим лабрадором.
Площадь квартиры - 60 м2
Планировка от застройщика была такой:

Итак, что мы сделали:
1. небольшой кабинет с двумя рабочими столами, полноценный хоум-офис

2. нет отдельного гардероба, все вещи хранятся в большом шкафу в коридоре

3. кладовка для велосипедов, так как заказчики активно ими пользуются

4. вынесли стиральную и сушильную машины в коридор, чтобы не занимать места в санузле

5. не присоединяли балкон, оставив его под место отдыха с кальяном

6. перенесли вход в кабинет из коридора в гостиную, увеличив так прихожую и сделав систему хранения

-2

Как вам результат?