Найти в Дзене

Идеальный дом на 4 спальни, площадью всего 160 м2!

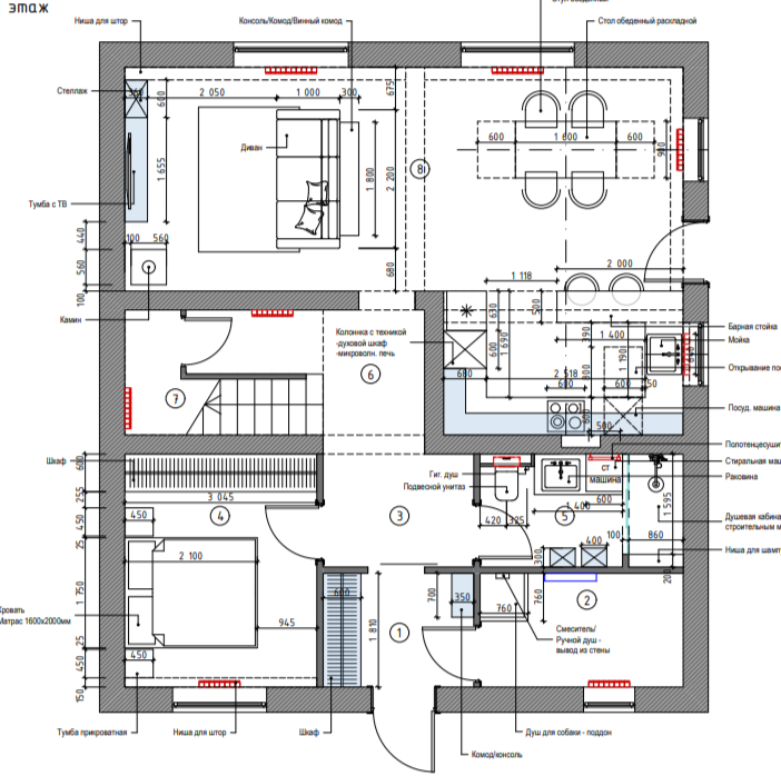
Если вы думаете, что функциональный дом для большой семьи – это обязательно большой дом, хотим вас разубедить. В нашем новом проекте дом с площадью 160 м2, в нем 4 спальни и есть всё, что мы ожидаем от собственного дома: места хранения, гардеробные, несколько санузлов и даже отдельная «лапомойка» для собак. Итак, у нас два этажа, второй мансардный из бруса. На первом традиционно расположена кухня-гостиная, которая занимает 40 м2. Кухня у нас П-образная, занимает всё выделенное под нее пространство. Мойка расположена у небольшого глухого окна с видом на сад, рядом выход на террасу. На противоположной стороне встроенная техника: пенал с холодильником и второй с СВЧ и духовым шкафом. Компоновка традиционная для современной кухни: три яруса, второй и третий одной глубины, верхние модули-витрины со стеклянными фасадами. Хозяйке было важно получить вместительную кухню, в которой будет достаточно места для всевозможных девайсов, чтобы оставить столешницу не захламленной. Цветовое решение очен

Если вы думаете, что функциональный дом для большой семьи – это обязательно большой дом, хотим вас разубедить. В нашем новом проекте дом с площадью 160 м2, в нем 4 спальни и есть всё, что мы ожидаем от собственного дома: места хранения, гардеробные, несколько санузлов и даже отдельная «лапомойка» для собак.

Итак, у нас два этажа, второй мансардный из бруса. На первом традиционно расположена кухня-гостиная, которая занимает 40 м2. Кухня у нас П-образная, занимает всё выделенное под нее пространство.

Портфолио Remplanner
Портфолио Remplanner

Мойка расположена у небольшого глухого окна с видом на сад, рядом выход на террасу. На противоположной стороне встроенная техника: пенал с холодильником и второй с СВЧ и духовым шкафом.

Портфолио Remplanner
Портфолио Remplanner

Компоновка традиционная для современной кухни: три яруса, второй и третий одной глубины, верхние модули-витрины со стеклянными фасадами. Хозяйке было важно получить вместительную кухню, в которой будет достаточно места для всевозможных девайсов, чтобы оставить столешницу не захламленной.

Портфолио Remplanner
Портфолио Remplanner

Цветовое решение очень удачное, на наш взгляд: светлые фасады в эмали со столешницей и фартуком с текстурой черно-белого гранита. Т.к. окна здесь черные, то мы решили и в дизайне кухни использовать черные детали: черные рамки стеклянных фасадов, черный профиль Гола.

Помещение у нас Г-образное, и кухня расположена так, что ее не видно из гостиной, при этом сама гостиная граничит со столовой, они занимают примерно равное пространство.

Портфолио Remplanner
Портфолио Remplanner

Разделяет их традиционно диван, установленный в центре. Столовая просторная, в ней большие окна и выход на летнюю террасу. Стол из массива и МДФ с натуральным шпоном, размер 160х90 см с возможностью раскладывать до размера 280х90 см.

Портфолио Remplanner
Портфолио Remplanner

Позади дивана невысокая тумба для хранения и небольшого декора. Поскольку это загородный дом, то без камина было не обойтись. Здесь установлена компактная топка с панорамным стеклом на две стороны, в лаконичном современном дизайне.

Портфолио Remplanner
Портфолио Remplanner

Это легкая конструкция, не требующая отдельного фундамента. Стены из пенобетона, отделаны декоративной штукатуркой, пол – керамогранит, все противопожарные нормы соблюдены.

Портфолио Remplanner
Портфолио Remplanner

Высота расположения ТВ-экрана согласовывалась заранее, выбрана была с учетом возможности смотреть ТВ из любой части помещения.

На первом этаже на входе у нас прихожая и котельная, в которой также расположена упомянутая выше лапомойка для собак, она же мойка для обуви и инвентаря для уборки.

Портфолио Remplanner
Портфолио Remplanner

Прихожая состоит из встроенного шкафа с открытой нишей для обуви, консоли и зеркала с закругленным нижним краем. Стена с зеркалом декорирована рейками, на фоне которых едва различима дверь в котельную.

Портфолио Remplanner
Портфолио Remplanner

Вход в жилую часть дома через откатную дверь – в небольших пространствах и узких коридорах всегда самый удобный вариант.

Портфолио Remplanner
Портфолио Remplanner

Через стенку от котельной расположен один из трех санузлов.Размер его 5,6 м2 и это самый маленький санузел в доме. Какой смысл жить в своем доме и ютиться в крошечных ванных комнатах? Здесь, кстати, нет ванны, пространство напротив входа занимает большая душевая (86х160 см).

Портфолио Remplanner
Портфолио Remplanner

В этом интерьере использованы светлые, теплые оттенки, душевая в этом плане не исключение. Светло-бежевый керамогранит здесь дополняет мебель медового оттенка, а душевая оформлена с использованием двух оттенков плитки с текстурой дерева. Один вариант плитки на полу, второй в раскладке английская елочка на двух стенах. Третья все в том же молочно-бежевом керамограните.

Кстати, в двух из трех санузлах были выбраны бачки скрытого монтажа в сочетании с напольными приставными унитазами.

Также на первом этаже расположена одна из спален – гостевая. Комната маленькая, всего 11,3 м2, кажется, что в ней нет ничего, кроме кровати и двух тумб, но нет – справа от кровати большой встроенный шкаф.

Цветовая гамма серо-бежевая, немного яркости добавляют тумбы сложного зеленого оттенка и постер с листьями-перьями.

Портфолио Remplanner
Портфолио Remplanner

Изголовье декорировано панелями МДФ с текстурой дерева, это пластик, промежутки между панелями – декоративная штукатурка. Шкаф, стены и дверь покрашены в один цвет. На полу керамогранит, как и на всем 1 этаже, поскольку везде предусмотрен водяной теплый пол.

Портфолио Remplanner
Портфолио Remplanner

Выходим в холл и идем к лестнице (под ней спрятана кладовка, кстати), здесь уже привычное цветовое сочетание – нейтральная база теплого тона и текстура дерева.

Поскольку мансардный этаж у нас брусовый, деревянная лестница выглядит максимально логично. Также было решено обшить лестницу снизу и сделать такую «невидимую дверь» в кладовку за счет сочетания материалов.

Наверху мы оказываемся в небольшом холле (12 м2) – это минимальная площадь для комфортного расположения 5 межкомнатных дверей. Куда они ведут?

Дверь прямо – второй санузел, площадь 5,7 м2. Здесь, в отличие от первого этажа, есть окно и оформить его было решено нетрадиционно для такого помещения – многослойным текстилем.

Портфолио Remplanner
Портфолио Remplanner

Расстояние от окна до умывальника и унитаза достаточное, чтобы на шторы не попадали брызги воды, а в сочетании с ломанной формой потолка и деревянной отделкой выглядит такой санузел очень уютно.

Здесь у нас часть стены на входе – тонированный и покрытый лаком брус, далее панели МДФ в той же отделке, что и мебель во всех санузлах. Плитка в душевой, как и внизу, с текстурой дерева.

Портфолио Remplanner
Портфолио Remplanner

Две двери слева от лестницы – это две спальни, обе со скошенным потолком, поэтому расстановку мебели определяло именно это.

Портфолио Remplanner
Портфолио Remplanner

Шкафы в обеих комнатах встроенные, в первой к светлой отделке и деревянным текстурам прибавились синий и терракотовый цвета, которые делают помещение ярче, но не перетягивают на себя всё внимание.

Площадь каждой комнаты 17,2 м2, но скошенный потолок визуально уменьшает пространство, поэтому не хотелось сокращать его еще и за счет лишних предметов. Так что в комнатах царит почти аскетичная обстановка.

Встроенные шкафы, письменные столы-консоли, максимально легкие и воздушные, такие же визуально легкие стеллажи и навесные полки.

Во второй комнате внимание привлекает ковер с классическим рисунком, который у многих ассоциируется с «советским бабушкиным ковром». Во-первых, это шерстяной ковер именно с классическим узором, во-вторых, мода циклична, и сейчас именно этот вариант рисунка снова популярен.

Портфолио Remplanner
Портфолио Remplanner

Также в этой спальне присутствуют растения, в ней больше ярких деталей: круглое зеркало с подсветкой, яркие постеры над рабочим столом, оригинальный торшер-воздушный шарик, тумбы в стиле ретро. Всё это в сочетании с деревянной отделкой стен выглядит очень органично.

Двери справа от лестницы – мастер-спальня и общая гардеробная. Площадь гардеробной 5.8 м2, это длинное, узкое помещение, которое почти полностью занимает система хранения со встроенной подсветкой, для удобства использования.

Здесь предусмотрено место хранения для одежды, обуви, сумок и бытовых предметов.

Мастер-спальня – последнее помещение в этом доме и самое большое после кухни-гостиной. С учетом гардеробной и санузла, площадь почти 30 м2.

Портфолио Remplanner
Портфолио Remplanner

Сама спальня максимально лаконичная. Здесь нет ничего, кроме кровати и пары изящных тумб. Мы использовали кроватный бокс и мягкие стеновые панели, которые закрывают не только изголовье, но и всю стену на высоту 120 см.

Портфолио Remplanner
Портфолио Remplanner

В домах из натуральной древесины, чей уникальный рисунок красиво подчеркивает покрытие, не хочется чем-то заставлять эти стены. Здесь такая возможность была, поэтому на стенах нет ничего кроме блока кондиционера, приставного зеркала и воздушного, полупрозрачного декора на стене напротив кровати.

Санузел и гардеробная расположены тут анфиладой, то есть в санузел вы попадаете, пройдя через гардеробную. Вообще, это самое удобное и разумное планирование для спальни, поскольку позволяет с минимальным дискомфортом для второго спящего встать и собраться на работу.

Портфолио Remplanner
Портфолио Remplanner

Гардеробная компактная, но достаточно вместительная для двоих человек. Слева система хранения, справа у окна туалетный столик.

Портфолио Remplanner
Портфолио Remplanner

Санузел, как и все остальные в доме, оборудован душевой. Здесь также есть большая тумба и комод для хранения полотенец и различных средств для мытья и ухода.

Портфолио Remplanner
Портфолио Remplanner

Для отделки выбран серый керамогранит, который неплохо сочетается с нашими деревянными стенами. Теплая текстура дерева добавляет уюта и уравновешивает холодный серый.

Портфолио Remplanner
Портфолио Remplanner

В оформлении окна снова использован текстиль, но здесь это просто одна собранная плотная портьера.

Портфолио Remplanner
Портфолио Remplanner

Как видите, даже для нужд большой семьи дома на 160 м2 может быть более чем достаточно. У нас есть котельная, сочетающая в себе функцию мойки. Функциональная кухня и вместительная столовая, уютная гостиная с камином, кладовая и несколько гардеробных, а главное – 4 полноценных спальни. В таком доме удобно жить и принимать гостей, не боясь, что будет мало места.

Другие проекты вы найдете в нашем портфолио, а если вас интересует индивидуальный дизайн-проект – просто заполните заявку на сайте, и мы с вами свяжемся!