Добавить в корзинуПозвонить
Найти в Дзене

ВОЛГА 146 м2 - проект одноэтажного дома с большой террасой и двумя блоками жилых комнат

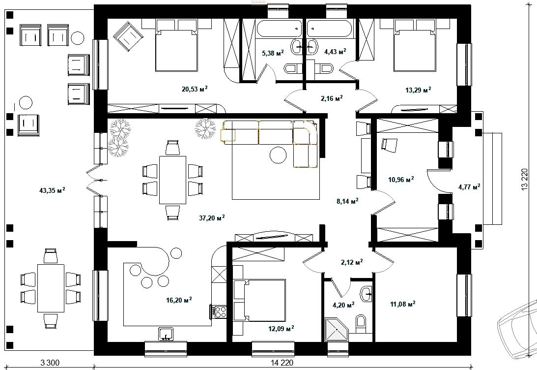
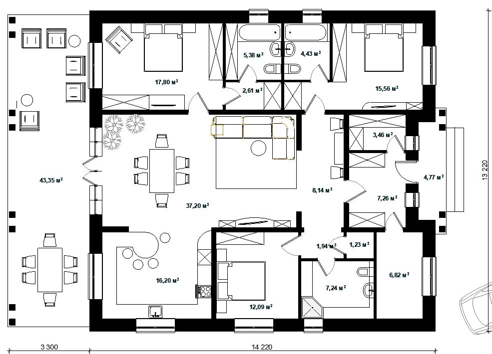
В доме нет несущих внутренних стен. Основа - наружные и две внутренних стены. В плане дом разделен на три автономных части. Средняя - общая, левая и правая - жилые, планировку которых можно менять в зависимости от ваших потребностей. Ниже представляем три из возможных вариантов плана. Один из них - с изолированной кухней. ► Дома с похожим внешним видом и планировкой представлены в подборке 👇 ► Особенность дома - терраса вдоль всего садового фасада. Вот ещё похожий дом с длинной террасой, но площадь его побольше, и он на 5 спален 👇 Фундамент монолитный ленточный. Пол монолитный.
Стены из газосиликатных блоков 300 мм с утеплением и отделкой фасада кирпичом.
Чердачное перекрытие тёплое деревянное. Чердак холодный. Комплект чертежей проекта состоит из двух разделов.
В Паспорте показан внешний вид, планировка, отделка. В альбоме СКР (строительный) дана информация о геометрии дма, конструкциях и расходе материалов строительства. ► Стоимость и порядок заказа документации - на сайте на стр
Оглавление

ПЛАНИРОВКА

В доме нет несущих внутренних стен. Основа - наружные и две внутренних стены. В плане дом разделен на три автономных части. Средняя - общая, левая и правая - жилые, планировку которых можно менять в зависимости от ваших потребностей. Ниже представляем три из возможных вариантов плана. Один из них - с изолированной кухней.

► Дома с похожим внешним видом и планировкой представлены в подборке 👇

Проекты больших одноэтажников простой формы | Инваполис - проекты рациональных домов | Дзен

► Особенность дома - терраса вдоль всего садового фасада. Вот ещё похожий дом с длинной террасой, но площадь его побольше, и он на 5 спален 👇

БУГУЛЬМА 159 м2 - проект одноэтажного дома 13х17 с пятью спальнями, с большой кухней и террасой
Инваполис - проекты рациональных домов 29 марта 2022

КОНСТРУКТИВНЫЕ ОСОБЕННОСТИ

Фундамент монолитный ленточный. Пол монолитный.
Стены из газосиликатных блоков 300 мм с утеплением и отделкой фасада кирпичом.
Чердачное перекрытие тёплое деревянное. Чердак холодный.

ИНФОРМАЦИЯ О ПРОЕКТЕ

Комплект чертежей проекта состоит из двух разделов.
В
Паспорте показан внешний вид, планировка, отделка. В альбоме СКР (строительный) дана информация о геометрии дма, конструкциях и расходе материалов строительства.

► Стоимость и порядок заказа документации - на сайте на странице проекта.

Все проекты одноэтажных домов ИНВАПОЛИС - здесь

► Если планируете строительство или просто любите смотреть домики и читать статьи о частном домостроении, подпишитесь на наш канал ДЗЕН