Добавить в корзинуПозвонить
Найти в Дзене

АНОНС нового проекта одноэтажного дома

Вот задумали ещё один одноэтажник. Никто не заказывал, но что-то захотелось. Назовём, наверное, АМЕТИСТ. Красиво так... Проанализировали тенденции и запросы этого года, и составили планировку по мотивам некоторых обращений к нам клиентов. Вот планировка 👇, а ниже 👇👇 - и сами тенденции, замеченные нами в этом году. Через недельку доделаем и покажем. Шале сейчас больше привечают, чем дома под четырехскатными крышами. Что понравилось-не понравилось, пишите в комментах. PS
Внешний вид готов, дом можно глянуть на сайте https://www.invapolis.ru/project-cottage/katalog/ametist/ ► Все проекты одноэтажных домов ИНВАПОЛИС - здесь
Оглавление

Вот задумали ещё один одноэтажник. Никто не заказывал, но что-то захотелось. Назовём, наверное, АМЕТИСТ. Красиво так...

Проанализировали тенденции и запросы этого года, и составили планировку по мотивам некоторых обращений к нам клиентов.

Вот планировка 👇, а ниже 👇👇 - и сами тенденции, замеченные нами в этом году.

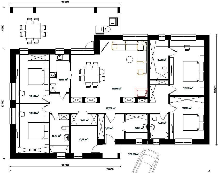
Планировка:

Тенденции:

  1. Четыре комнаты, одна из которых большая, но не "мастер-спальня с санузлом", а просто большая комната с кладовкой. Спальни на два крыла обязательно, чтоб никто никому не мешал.
  2. "Недоизолированная" (не знаю как ещё назвать :)) кухня. То есть, она в составе гостиной, но должна закрываться на время готовки, и должна иметь вход напрямую из холла минуя гостиную. Так и сделали. Отделили трансформирующейся перегородкой. Мойка перед окном - прямо все хотят.
  3. Котельная с отдельным входом. Некоторое время люди старались делать вход в котельную из дома (аргумент - меньше входных дверей безопаснее, теплее и экономнее). Теперь стараются максимально отделить, чтобы не водить обслуживающего сотрудника через дом, и он бы мог прийти даже в отсутствии хозяев.
  4. Одна ванная комната - большая, с возможностью устроить там постирочную, вторая - маленькая. Но обе не с душем, а с полноценными ваннами.
  5. Кладовка с раковиной при входе - чтобы можно было сезонные вещи и обувь привести в порядок перед хранением. Кладовка в коридоре рядом с кухней - для уборочного инвентаря и консервных банок. Встроенные в интерьер дома стеллажи вместо стены, отделяющей гостиную.
  6. Места хранения в холле и коридорах, чтобы, во-первых, не пустые стены, а во-вторых, чтоб хранить общее имущество, но не в гостиной. В гостиной корпусную мебель народ ставить разлюбил, чтоб был простор!
  7. В гостиной - возможность один глазом смотреть в телевизор, другим в камин :))
  8. Сам дом - достаточно широкий, чтобы перегородить участок поперёк и спрятать сад от дорожного шума и любопытствующих.
  9. БОЛЬШАЯ терраса. Прямо БОЛЬШУЮ просят. Вот такую, как тут!
  10. И вообще весь дом такой не маленький. Больше 150 метров, но меньше 200. Здесь 160-165 примерно.
  11. Архитектура будет шале. Что-то примерно как дом САЛАМАНДРА 👇но отделка фасада - кирпич.

Через недельку доделаем и покажем. Шале сейчас больше привечают, чем дома под четырехскатными крышами.

Что понравилось-не понравилось, пишите в комментах.

PS
Внешний вид готов, дом можно глянуть на сайте
https://www.invapolis.ru/project-cottage/katalog/ametist/

► Все проекты одноэтажных домов ИНВАПОЛИС - здесь