Добавить в корзинуПозвонить
Найти в Дзене
DIVAN.RU

ДО/ПОСЛЕ: преображение унылой хрущевки 37 кв.м

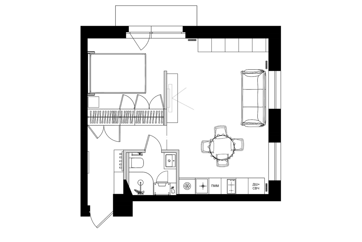
Из типовой советской двушки в монохромный интерьер в сканди-стиле с элементами современной классики. Об объекте: двухкомнатная квартира 36,9 кв.м в доме 1964 года постройки (серия II-18), г. Москва Автор проекта: дизайнер Кристина Личик, декоратор Наталья Балашова, автор фото Анастасия Кутырина Бюджет проекта: 3,5 млн рублей В этой квартире живет женщина, которая посвящает свободное время заботе о внуках и увлекается шитьем. Основные просьбы владелицы к дизайнеру: Изначально квартира была двухкомнатной. В ходе перепланировки часть перегородок демонтировали. Чтобы согласовать изменения в БТИ, официально отказались от газа. По функционалу в обновленной квартире удалось разместить кухню-гостиную, спальню, Г-образный коридор и совмещенный санузел. До ремонта это была типичная «кухня без эргономики и дизайна» — желтая краска на стенах, разнокалиберные шкафы, нехватка пространства для готовки и хранения. Требовалось улучшить функционал и придумать стильный дизайн. В ходе перепланировки кухню
Оглавление

Из типовой советской двушки в монохромный интерьер в сканди-стиле с элементами современной классики.

Об объекте: двухкомнатная квартира 36,9 кв.м в доме 1964 года постройки (серия II-18), г. Москва

Автор проекта: дизайнер Кристина Личик, декоратор Наталья Балашова,

автор фото Анастасия Кутырина

Бюджет проекта: 3,5 млн рублей

В этой квартире живет женщина, которая посвящает свободное время заботе о внуках и увлекается шитьем. Основные просьбы владелицы к дизайнеру:

  • объединить кухню и гостиную, спальню оставить изолированной;
  • визуально расширить границы помещений, избавиться от «давящих» низких потолков;
  • предусмотреть место для игр с маленькими детьми;
  • продумать системы хранения.

Изначально квартира была двухкомнатной. В ходе перепланировки часть перегородок демонтировали. Чтобы согласовать изменения в БТИ, официально отказались от газа. По функционалу в обновленной квартире удалось разместить кухню-гостиную, спальню, Г-образный коридор и совмещенный санузел.

Кухня

До ремонта это была типичная «кухня без эргономики и дизайна» — желтая краска на стенах, разнокалиберные шкафы, нехватка пространства для готовки и хранения. Требовалось улучшить функционал и придумать стильный дизайн.

В ходе перепланировки кухню объединили с гостиной. Мокрые зоны остались на своих местах. Гарнитур спроектировали линейный, со шкафами-пеналами по бокам. Чтобы извлечь максимум полезного пространства, шкафы довели до потолка. Хозяйка любит готовить, поэтому наполнение кухни «максимальное»: посудомоечная машина, варочная панель на две конфорки и много хранения в нижних и верхних секциях. Под мойкой есть фильтр для воды и пищевой измельчитель.

Прием: верхний ярус заказали с фрезеровкой на фасадах — повторяющиеся вертикальные линии визуально приподнимают потолок.

На фоне светлого монохрома выделяется обеденная группа: стол из темного дерева и мягкие стулья в акцентной синей обивке.

На фото проект дизайнера Кристины Личик; декоратор Наталья Балашова; автор фото Анастасия Кутырина
На фото проект дизайнера Кристины Личик; декоратор Наталья Балашова; автор фото Анастасия Кутырина

Гостиная

Небольшая комната производила гнетущее впечатление. Это было тесное маленькое помещение с отклеивающимися обоями, неопрятным темным ковролином и покосившейся мебелью.

После демонтажа двух перегородок комнату присоединили к кухне и спальне. Роль стены, отделяющей зону гостиной от спальни, теперь выполняет стеклянная перегородка.

Вдоль стены между двумя окнами спроектировали шкаф-витрину. За глухими фасадами организовали хранение, за стеклянными дверцами расставили посуду, на открытых полках — книги и декор.

На фото проект дизайнера Кристины Личик; декоратор Наталья Балашова; автор фото Анастасия Кутырина
На фото проект дизайнера Кристины Личик; декоратор Наталья Балашова; автор фото Анастасия Кутырина

➡️В кадре журнальный стол Тони Black от бренда divan.ru >>

Диван поставили не совсем стандартным способом — спинкой к окну. Это позволило оформить ТВ-зону напротив. Рифленые фасады ТВ-тумбы повторяют фрезеровку кухонных верхних шкафчиков.

Одним из пожеланий заказчицы было дополнительное спальное место, чтобы можно было оставлять на ночь внуков. Для этой роли отлично подошел диван Слипсон от бренда divan.ru. Обивку без труда подобрали в «Конструкторе» в тон основным оттенкам интерьера.

➡️В кадре диван Слипсон Velvet Milk от бренда divan.ru >>

💥Сейчас этот диван можно приобрести с выгодой до 26 000₽*! Цены уже праздничные! Покупайте мебель со скидками до 60% на divan.ru>>

-9

Спальня

Изначально в комнате большое значение отдали функционалу — здесь было два спальных места, которые не оставляли пространства для свободного передвижения и другой мебели.

После ремонта спальня полностью преобразилась. Благодаря светлой отделке теперь она выглядит просторнее. А в качестве акцентов использовали яркий текстиль. Зеркальными фасады шкафа «удваивают» естественный свет.

Прием: стену за изголовьем кровати оформили фреской с полукруглыми элементами. Арочные формы повторяются на стеклянной перегородке, в элементах настольной лампы и торшера.

Кровать Слипсон от бренда divan.ru в нейтральной светлой обивке имеет схожий с диваном дизайн. Лаконичная и одновременно стильная модель гармонично вписалась в скандинавскую стилистику.

➡️В кадре кровать Слипсон Bucle Beige от бренда divan.ru >>

Прихожая

До ремонта здесь была бюджетная отделка, неактуальная мебель и отсутствовал декор. Входные и межкомнатные двери точно нуждались в обновлении.

Новый интерьер кардинально отличается. Стены во входной зоне выкрасили в один цвет с комнатами, чтобы визуально не дробить пространство на части. Одну из поверхностей оформили декоративными рифлеными панелями. Они добавляют ритм и текстуру в однотонный дизайн. Деликатные вертикали в тандеме с дверью скрытого монтажа «вытягивают» потолок, визуально делая его выше.

Санузел

Мрачная зеленая краска на стенах, устаревшая аляпистая плитка на полу, требующая замены сантехника — санузел требовал капитальных перемен. Мест для хранения здесь не было совсем.

Конфигурацию санузла изменили в ходе перепланировки — помещение стало более функциональным. Ванну сменили на душевую, предусмотрели инсталляцию, подвесную тумбу под раковину, открытый стеллаж для хранения, нашли место для стиральной машины.

На фото проект дизайнера Кристины Личик; декоратор Наталья Балашова; автор фото Анастасия Кутырина
На фото проект дизайнера Кристины Личик; декоратор Наталья Балашова; автор фото Анастасия Кутырина

=========

Оцените интерьер в комментариях, а если статья понравилась — не забудьте поставить лайк.

🖤divan.ru — не только блог про интерьеры, но и производитель доступной дизайнерской мебели. Ищите новые идеи и переходите на сайт, чтобы воплотить их в жизнь.

*Цены актуальны на момент публикации статьи