Найти в Дзене
Лесстрой Портал

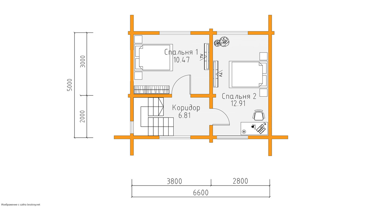
Дом из профилированного бруса "Гребнево" от 3 444 000 рублей

Двухэтажный дом общей площадью 72м2 и стоимостью от 3 444 000 рублей. От нашего подрядчика RealHaus Ссылка на проект: https://lesstroy.net/user/36477/project/82296/
Фундамент - Забивные сваи 150х150х3000* мм. Стены - Обвязочный брус 100х150 мм. Естественной влажности в 2 ряда
- Домокомплект из Профилированного бруса 145х145 мм. Естественной влажности
- Усадочный крепеж: узел"sila"
- Утеплитель межвенцовый и на чаши: Политерм
- Балки перекрытия 100х200 мм. Естественной влажности
- Огнебиозащита для обвязки и балок перекрытия Крыша - Стропильная система 50х200 мм. Естественной влажности
- Огнебиозащита для стропильной системы
- Гидроизоляция Изоспан AQ Proff
- Контрбрусок 40х50 мм. Камерной сушки
- Обрешетка 25х150 мм. Естественной влажности
- Крюки для водосточной системы Grand Line
- Металлочерепица 0,5 мм. Grand Line, цвет на выбор Фундамент - Забивные сваи 150х150х3000* мм. Стены - Обвязочный брус 100х200 мм. Естественной влажности в 2 ряда
- Домокомплект из Оцилиндрованного бревна
Оглавление

Двухэтажный дом общей площадью 72м2 и стоимостью от 3 444 000 рублей. От нашего подрядчика RealHaus

Ссылка на проект: https://lesstroy.net/user/36477/project/82296/

"Под усадку" Профилированный брус
2 535 000 ₽

Фундамент

- Забивные сваи 150х150х3000* мм.

Стены

- Обвязочный брус 100х150 мм. Естественной влажности в 2 ряда
- Домокомплект из Профилированного бруса 145х145 мм. Естественной влажности
- Усадочный крепеж: узел"sila"
- Утеплитель межвенцовый и на чаши: Политерм
- Балки перекрытия 100х200 мм. Естественной влажности
- Огнебиозащита для обвязки и балок перекрытия

Крыша

- Стропильная система 50х200 мм. Естественной влажности
- Огнебиозащита для стропильной системы
- Гидроизоляция Изоспан AQ Proff
- Контрбрусок 40х50 мм. Камерной сушки
- Обрешетка 25х150 мм. Естественной влажности
- Крюки для водосточной системы Grand Line
- Металлочерепица 0,5 мм. Grand Line, цвет на выбор

"Под усадку" Оцилиндрованное бревно
2 332 000 ₽

Фундамент

- Забивные сваи 150х150х3000* мм.

Стены

- Обвязочный брус 100х200 мм. Естественной влажности в 2 ряда
- Домокомплект из Оцилиндрованного бревна D200 мм. Естественной влажности
- Усадочный крепеж: березовые нагеля
- Утеплитель межвенцовый и на чаши: Политерм
- Балки перекрытия 100х200 мм. Естественной влажности
- Огнебиозащита для обвязки и балок перекрытия

Крыша

- Стропильная система 50х200 мм. Естественной влажности
- Огнебиозащита для стропильной системы
- Гидроизоляция Изоспан AQ Proff
- Контрбрусок 40х50 мм. Камерной сушки
- Обрешетка 25х150 мм. Естественной влажности
- Крюки для водосточной системы Grand Line
- Металлочерепица 0,5 мм. Grand Line, цвет на выбор

"Тепловой контур" Профилированный брус
3 444 000 ₽

Фундамент

- Забивные сваи 150х150х3000* мм.

Стены

- Обвязочный брус 100х150 мм. Естественной влажности в 2 ряда
- Домокомплект из Профилированного бруса 140х140 мм. Камерной сушки
(Влажность не более 22%)
- Усадочный крепеж: узел"sila"
- Утеплитель межвенцовый и на чаши: Политерм
- Балки перекрытия 90х190 мм. Камерной сушки
- Огнебиозащита для обвязки и балок перекрытия

Крыша

- Стропильная система 45х190 мм. Камерной сушки
- Огнебиозащита для стропильной системы
- Пароизоляция Изоспан FD Proff
- Утеплитель 200 мм. RockWool LB Скандик
- Гидроизоляция Изоспан AQ Proff
- Контрбрусок 40х50 мм. Камерной сушки
- Обрешетка 25х150 мм. Естественной влажности
- Крюки для водосточной системы Grand Line
- Металлочерепица 0,5 мм. Grand Line, цвет на выбор

Внешний контур

- Обсадная коробка 45х140 мм. Камерной сушки под внешние проемы
- Остекление ПВХ Melke с 2-х камерным стеклопакетом (3 стекла), цвет белый
- Входная дверь металлическая, с терморазрывом

Полы

- Гидроизоляция Изоспан AQ Proff
- Утеплитель 200 мм. RockWool LB Скандик
- Пароизоляция Изоспан FD Proff

Что еще включено в стоимость:

Доставка до 100 км. от МКАД, далее перерасчет

Монтажные работы

Уборка территории после окончания работ

Гарантия 5 лет

Контроль строительства всех этапов работ

Внесения изменений в проект - бесплатно

Кредит, ипотека, материнский капитал