Добавить в корзинуПозвонить
Найти в Дзене
Лесстрой Портал

Каркасный дом "КД-21" от 3 500 000 рублей

Дом площадью застройки 8,5х14м, общей площадью 119м2 и стоимостью от 3 500 000 рублей. От нашего подрядчика НеоГарден Ссылка на проект: https://lesstroy.net/user/2346/project/84351/
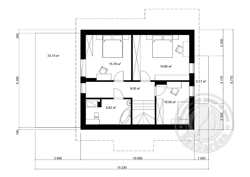
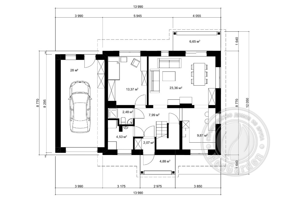
Количество этажей: 1 с мансардой Длина: 14000 мм Ширина: 8500 мм Общая площадь: 119 кв.м Балкон: есть Тип дома: Каркасный Что входит в стоимость:

Дом площадью застройки 8,5х14м, общей площадью 119м2 и стоимостью от 3 500 000 рублей. От нашего подрядчика НеоГарден

Ссылка на проект: https://lesstroy.net/user/2346/project/84351/

Описание проекта

Количество этажей: 1 с мансардой

Длина: 14000 мм

Ширина: 8500 мм

Общая площадь: 119 кв.м

Балкон: есть

Тип дома: Каркасный

Что входит в стоимость:

  • Балкон
  • Крыльцо
  • Гараж
  • Гарантия
  • Двери входные
  • Окна
  • Черновые полы
  • Межкомнатные перегородки
  • Межэтажные перекрытия
  • Утепление
  • Гидроизоляция фундамента
  • Мансарда
  • Стеновой комплект