Добавить в корзинуПозвонить
Найти в Дзене
Уютный Дом

Будем строиться!!!! Муки выбора!!!

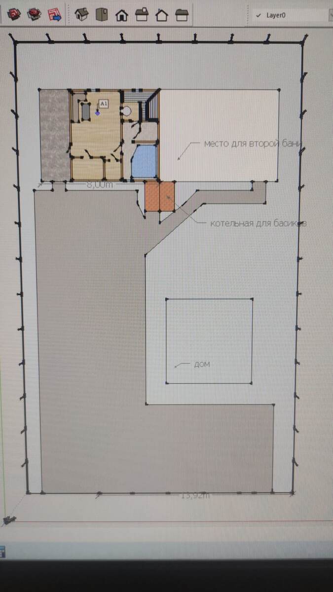
Как писали ранее, разместив объявление на сваях, оставили участок в резерв, начали ждать, работать и копить бобосики!!!! Вообще история строительства пришла спонтанно, как то в будний день хотели арендовать баню на несколько часов, но у нас ничего не вышло. Звонили по многим объявлениям в нашем районе, ну хотя бы с транспортной доступностью 10-15 минут, в итоге ничего не нашли, все нас отфутболивали на 2-3 дня. Ну как говорится: спрос рождает предложение!!!! Переспав с этой мыслью, было принято решение- ранней весной начинаем стройку!!!!!! Как говорится: готовь сани летом!!! Сказано- сделано, сразу пошла движ, что очень мы любим и уважаем!!! Все проекты рисовали и выдумывали сами, сначала делали упор на то что нужно разместить 2 бани на участке так, что бы гости не пересекались друг с другом, соответственно для каждой бани свой мангал и своя зона отдыха. Ничего толкового в голову не приходило, так как участок небольшой, а теперь стояла задача с этого участка получить макси

Как писали ранее, разместив объявление на сваях, оставили участок в резерв, начали ждать, работать и копить бобосики!!!!

Вообще история строительства пришла спонтанно, как то в будний день хотели арендовать баню на несколько часов, но у нас ничего не вышло. Звонили по многим объявлениям в нашем районе, ну хотя бы с транспортной доступностью 10-15 минут, в итоге ничего не нашли, все нас отфутболивали на 2-3 дня. Ну как говорится: спрос рождает предложение!!!!

Переспав с этой мыслью, было принято решение- ранней весной начинаем стройку!!!!!! Как говорится: готовь сани летом!!! Сказано- сделано, сразу пошла движ, что очень мы любим и уважаем!!!

Все проекты рисовали и выдумывали сами, сначала делали упор на то что нужно разместить 2 бани на участке так, что бы гости не пересекались друг с другом, соответственно для каждой бани свой мангал и своя зона отдыха. Ничего толкового в голову не приходило, так как участок небольшой, а теперь стояла задача с этого участка получить максимум полезной площади. Но как то так получилось, товарищ поделился тем что построил дом A-фрэйм, для посуточной сдачи в аренду, ну и что вы думаете, в моменте меняем курс в сторону дом+ баня, много думок, расчетов, хотелось какой то оригинальности, а не как у большинства подобных объектов. Вот как это было:

-2

Что мы придумали и выбрали узнаете дальше, в следующих статьях!!!

Первым делом на семейном совете было принято решение заказать и купить по максимуму сезонного материала!!!!

-3

Первым делом заказали септик, скидос в несезон приличный, кому интересно по септику, отдельно расскажу про него, пишите в комментариях. Далее заказали лес, да да да в 23 году заказали лес на 24, хоть мы и понимали, что всего до мелочей не закажем сразу, хоть и есть опыт в строительстве, но основной объем заказали, цена летом 24 года доходила до 27.000 за куб.

Встретили новый год и начали ждать и готовиться к предстоящему строительству, ну а как всё начиналось узнаете в следующей статье!!!!