Добавить в корзинуПозвонить
Найти в Дзене

АМЕТИСТ 166 м2 - проект большого одноэтажного дома-шале

Это первый проект 2025 года. Ранее показывали только планировку этого нового проекта. Теперь готов и внешний вид. Публикуем развернутый обзор дома. Такая внешность популярна сейчас. В этом году пользовался успехом вот этот проект 👇 в похожем стиле. Кстати, его тоже придумали без заказа, и угадали. Дом спроектирован с учетом некоторых современных тенденций планировок одноэтажных домов, по результатам обращений в наше бюро. Почитать описание плана этого дома и подробный обзор тенденций планировочных решений - 2024 можно в прошлой статье 👇👇 На базе этого плана будет ещё дом в другом стиле, похожий на вот этот 👇. Через дней 8-10 подготовим. Потом можно будет пообсуждать/посравнивать. Конструктивное решение коттеджа предполагает выполнение интерьеров (особенно центрального пространства с колоннами) стиле шале. Фундамент монолитный ленточный. Пол из пустотных плит.
Наружные стены из газосиликатных D400 блоков, толщиной 300 мм с отделкой фасада кирпичом, несущие колонны кирпичные.
Пере
Оглавление

Это первый проект 2025 года.

Ранее показывали только планировку этого нового проекта. Теперь готов и внешний вид. Публикуем развернутый обзор дома.

Такая внешность популярна сейчас. В этом году пользовался успехом вот этот проект 👇 в похожем стиле. Кстати, его тоже придумали без заказа, и угадали.

ДОЛОМИТЫ 144 м2 - проект большого одноэтажного дома - шале с 4 спальнями, террасой, кладовками и чердаком.
Инваполис - проекты рациональных домов 10 января 2023

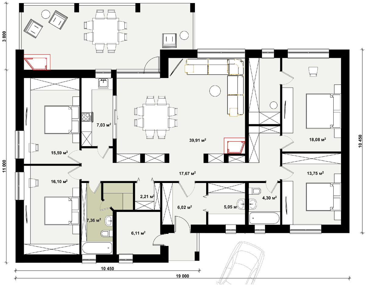
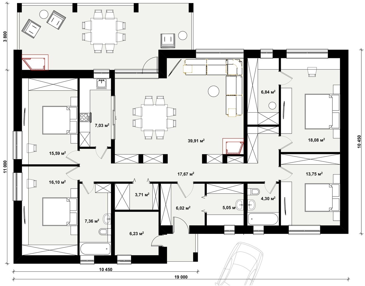
ПЛАНИРОВКА

Дом спроектирован с учетом некоторых современных тенденций планировок одноэтажных домов, по результатам обращений в наше бюро.

Почитать описание плана этого дома и подробный обзор тенденций планировочных решений - 2024 можно в прошлой статье 👇👇

На базе этого плана будет ещё дом в другом стиле, похожий на вот этот 👇. Через дней 8-10 подготовим. Потом можно будет пообсуждать/посравнивать.

ИНТЕРЬЕРЫ

Конструктивное решение коттеджа предполагает выполнение интерьеров (особенно центрального пространства с колоннами) стиле шале.

КОНСТРУКТИВНЫЕ ОСОБЕННОСТИ

Фундамент монолитный ленточный. Пол из пустотных плит.
Наружные стены из газосиликатных D400 блоков, толщиной 300 мм с отделкой фасада кирпичом, несущие колонны кирпичные.
Перегородки из пазогребневых плит или гипсокартона толщиной 80 мм. Чердачное перекрытие тёплое деревянное. Кровля по деревянным балкам и стропилам. Чердак холодный.

✅ Информация о составе чертежей, стоимости и порядке приобретения документации - на сайте ИНВАПОЛИС на странице дома

► Чтобы не пропускать наши публикации, реагируйте лайком 👍, подписывайтесь на канал, пишите комментарии, тогда нейросети будут показывать нас вам чаще :)