Добавить в корзинуПозвонить
Найти в Дзене
Лесстрой Портал

Дом из оцилиндрованного бревна ДиОБ-80 от 2 150 000 рублей

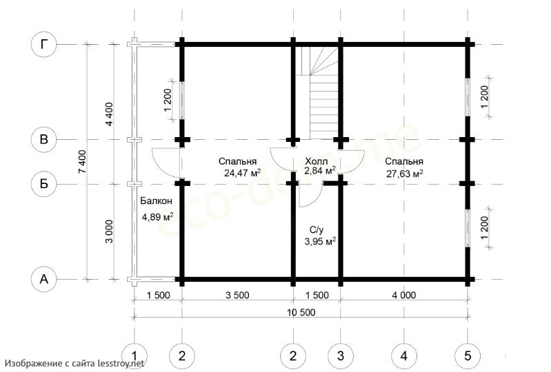
Двухэтажный дом площадью застройки 9.1 x 9.6м, общей площадью 87,3 м2 и стоимостью от 2 150 000 рублей. От нашего подрядчика ЭКО ДОМ МНЕ Ссылка на проект: https://lesstroy.net/user/33959/project/83438/
Люди строят деревянные дома уже многие сотни лет. Сегодня данная традиция продолжается в ходе строительства домов из бревна. Преимущества постройки дома из бревна очевидны каждому – это оптимальный микроклимат и идеальный воздух внутри помещения, стильный дизайн и великолепная теплоизоляция. Древесина представляет собой строительный материал, который находится в гармонии с природой. Базовое условие для создания здоровой и естественной жилой среды – чистый воздух. В сравнении с другими строительными материалами, древесина способна дышать, прочна и обладает низкой теплопроводностью. В деревянном доме из бревна человеку легко дышится и уютно живется. Также дерево влияет на настроение человека положительно. Высота стен 1-го этажа 3 метра. Высота стен 2-го этажа 1,5 метра. Высота рубленых фр

Двухэтажный дом площадью застройки 9.1 x 9.6м, общей площадью 87,3 м2 и стоимостью от 2 150 000 рублей. От нашего подрядчика ЭКО ДОМ МНЕ

Ссылка на проект: https://lesstroy.net/user/33959/project/83438/


Описание проекта

Люди строят деревянные дома уже многие сотни лет. Сегодня данная традиция продолжается в ходе строительства домов из бревна. Преимущества постройки дома из бревна очевидны каждому – это оптимальный микроклимат и идеальный воздух внутри помещения, стильный дизайн и великолепная теплоизоляция.

Древесина представляет собой строительный материал, который находится в гармонии с природой. Базовое условие для создания здоровой и естественной жилой среды – чистый воздух. В сравнении с другими строительными материалами, древесина способна дышать, прочна и обладает низкой теплопроводностью. В деревянном доме из бревна человеку легко дышится и уютно живется. Также дерево влияет на настроение человека положительно.

Высота стен 1-го этажа 3 метра.

Высота стен 2-го этажа 1,5 метра.

Высота рубленых фронтонов 2,5 метра.

-3

В состав стоимости входит:

Материалы:

  1. Наружные стены, бревно - 22х26 ⌀;
  2. Внутренние стены, бревно - 22х26 ⌀ ;
  3. Рубленные фронтоны, бревно - 18х24 ⌀ ;
  4. Внутренние перегородки, брус - 100х150 (на ребро)
  5. Лаги пола, межэтажные, подстрапильные - 100х150 (на ребро);
  6. Стропила, брус - 50х150 (на ребро);
  7. Контробрешётка - 50х50;
  8. Обрешётка, доска - 25х150;
  9. Черновой пол - 25х150;
  10. Метизные изделия (скобы, гвозди, саморезы);
  11. Межвенцевой утеплитель, мох (северный красный);
  12. Руберойд на временную кровлю крыши;
  13. Материал на изготовление строительных лесов;
  14. Гидроизоляция на фундамент, гидроизол;
  15. Рабочий проект;

Перечень работ:

  1. Монтаж сруба с внутренними перегородками;
  2. Врезка балок половых, межэтажных, подстропильных;
  3. Прокладка межвенцового утеплителя мха;
  4. Подвивка мха;
  5. Прошкантовка стен деревянными нагелями;
  6. Монтаж стропильной конструкции;
  7. Укладка обрешётки;
  8. Укладка черновых полов;
  9. Кровля временной кровлей-рубероидом;
  10. Укладка на фундамент гидроизоляции;
  11. Монтаж и демонтаж строительных лесов.
  12. Обработка нижних венцов и балок в подарок