Добавить в корзинуПозвонить
Найти в Дзене
ЭТО ВАШ ИНТЕРЬЕР

Мы с мужем потратили все свои деньги на ремонт в этой советской квартире! Смотрите, как теперь здесь живем (фото ДО и ПОСЛЕ)

В центре внимания этой статьи — семейная пара с котом, которая недавно приобрела квартиру. Квартира находится в доме, который построен в 70-х годах. Жилплощадь была в довольно потрепанном виде, поэтому в ходе ремонта здесь были заменены практически все элементы: начиная от напольного покрытия и заканчивая окнами. Цель ремонтных работ заключалась в создании современного интерьера, выполненного в стиле минимализм, но при этом сохраняющего атмосферу прошлого. В наследство от прежнего интерьера хозяевам достались чугунные радиаторы, которые являются своеобразным напоминанием об истории этого дома. Их было решено оставить и при этом полностью отреставрировать и покрасить. Со всеми своими пожеланиями по поводу будущего интерьера наши герои обратились к дизайнеру — Насте Кудряшевой. Вся прихожая выполнена максимально минималистично. На полу в "грязной" зоне уложен керамогранит, а стены везде покрашены в ненавязчивый светлый оттенок. В плане функционала здесь разместили яркую открытую вешал
Оглавление

В центре внимания этой статьи — семейная пара с котом, которая недавно приобрела квартиру. Квартира находится в доме, который построен в 70-х годах. Жилплощадь была в довольно потрепанном виде, поэтому в ходе ремонта здесь были заменены практически все элементы: начиная от напольного покрытия и заканчивая окнами.

Цель ремонтных работ заключалась в создании современного интерьера, выполненного в стиле минимализм, но при этом сохраняющего атмосферу прошлого.

В наследство от прежнего интерьера хозяевам достались чугунные радиаторы, которые являются своеобразным напоминанием об истории этого дома. Их было решено оставить и при этом полностью отреставрировать и покрасить.

Со всеми своими пожеланиями по поводу будущего интерьера наши герои обратились к дизайнеру — Насте Кудряшевой.

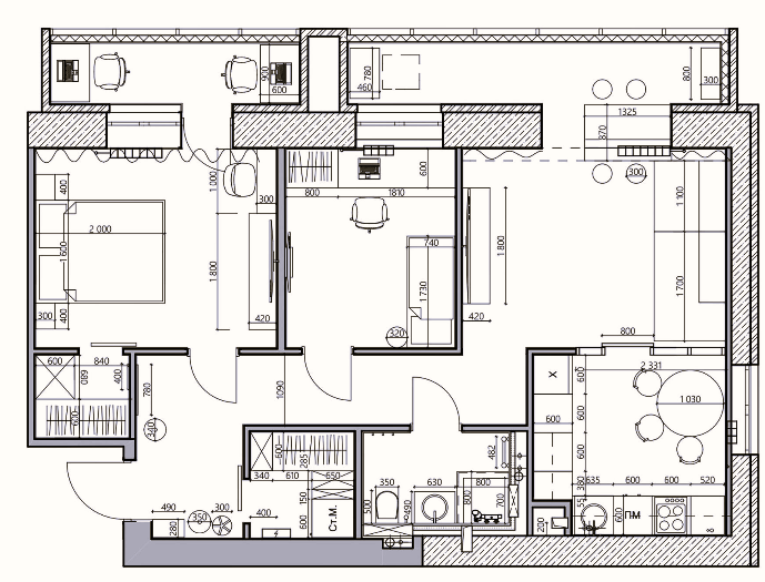
Проект

  • Местоположение: г. Ростов-на-Дону
  • Площадь квартиры: 70 квадратных метров
  • Владельцы: супружеская пара и кот
  • Бюджет: 2 500 000 рублей

Прихожая и коридор

Вся прихожая выполнена максимально минималистично. На полу в "грязной" зоне уложен керамогранит, а стены везде покрашены в ненавязчивый светлый оттенок.

-3

В плане функционала здесь разместили яркую открытую вешалку для верхней одежды и классическую обувницу.

-4

Что касается остального хранения, то здесь была организована полноценная гардеробная с постирочным блоком, где установили стиральную и сушильную машинки, а так же нагревательный бойлер.

-5

Кухня

В результате перепланировки, вход на кухню был перенесен в гостиную. Зонирует эти два помещения стеклянная перегородка со сдвижной дверью. Благодаря такому приему пространство кажется одним целым. Перегородку делали по индивидуальным размерам.

-6

Что касается отделки, то стены оклеили светлыми обоями немецкого бренда, а на полу уложен керамогранит под бетон. При входе находится столовая группа с большим обеденным столом и яркими стульями.

-7

Угловой кухонный гарнитур был изготовлен на заказ. Фасады выбрали в классическом белом цвете, а фасады функциональной колонны имитируют деревянное покрытие.

-8

Гостиная

Центральным элементом гостиной стал великолепный диван терракотового оттенка. Модель была оснащена механизмом трансформации, что позволяло использовать её в качестве спального места, если бы возникла необходимость разместить на ночь гостей. Напротив мягкой группы разместили телевизионную зону.

Спальня

Интерьер спальни выдержан в светлых тонах, где доминирует матовый белый цвет, искусно дополненный древесными оттенками с изысканной текстурой. У акцентной стены установлена кровать с подъёмным механизмом.

Напротив неё расположен туалетный столик, о котором всегда мечтала хозяйка. Часть комнаты было решено отдать под небольшую гардеробную.

-11

Ванная комната и детская находится в процессе обустройства.

Если вам понравилась статья, то не забудьте поставить лайк и подписаться, чтобы не пропустить новый материал!

Так же пишите в комментариях, что вам понравилось в этом проекте, а что вызывает сомнения.