Добавить в корзинуПозвонить
Найти в Дзене
ЭТО ВАШ ИНТЕРЬЕР

Мне надоела моя старая советская квартира и я решился на ремонт. Смотрите, как теперь я здесь устроился (фото до и после всех удивляют)

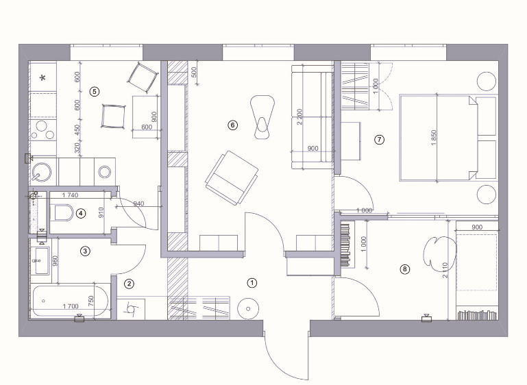
В центре нашего внимания сегодня находится молодой человек, который является преподавателем в одном из наиболее престижных высших учебных заведений Москвы — МГТУ имени Н. Э. Баумана. Он принял решение продать свою прежнюю квартиру и приобрести новую большей площади, которая, однако, оказалась в пятиэтажном доме и требовала серьёзного ремонта. В связи с этим, он обратился за помощью к профессиональному дизайнеру Лидии Напреенко. В интерьере прихожей были использованы преимущественно светлые тона в сочетании с ярким желтом оттенком. В качестве напольного покрытия здесь выступает классический ламинат. Напротив входной двери поставили деревянный комод, а слева от входа была установлена встроенная система хранения до самого потолка. А чтобы она не выделялась — фасады покрасили в цвет стен. В углу коридора, ближе к ванной комнате, расположился постирочный блок со стиральной машиной. В интерьере гостиной, на фоне светлых стен, гармонично разместилась яркая мебель: жёлтый диван и кресло. Под
Оглавление

В центре нашего внимания сегодня находится молодой человек, который является преподавателем в одном из наиболее престижных высших учебных заведений Москвы — МГТУ имени Н. Э. Баумана.

Он принял решение продать свою прежнюю квартиру и приобрести новую большей площади, которая, однако, оказалась в пятиэтажном доме и требовала серьёзного ремонта. В связи с этим, он обратился за помощью к профессиональному дизайнеру Лидии Напреенко.

Проект

  • Местоположение: г. Москва
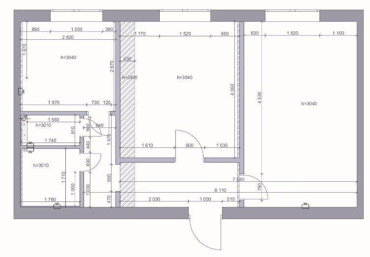
  • Площадь квартиры: 52 квадратных метра
  • Владельцы: молодой преподаватель
  • Бюджет: 2 000 000 рублей

Прихожая

В интерьере прихожей были использованы преимущественно светлые тона в сочетании с ярким желтом оттенком. В качестве напольного покрытия здесь выступает классический ламинат.

-3

Напротив входной двери поставили деревянный комод, а слева от входа была установлена встроенная система хранения до самого потолка. А чтобы она не выделялась — фасады покрасили в цвет стен. В углу коридора, ближе к ванной комнате, расположился постирочный блок со стиральной машиной.

-4

Гостиная

В интерьере гостиной, на фоне светлых стен, гармонично разместилась яркая мебель: жёлтый диван и кресло.

-5

Подобный диван присутствовал и в предыдущей квартире нашего героя, который он намеревался перевезти сюда. Однако диван не выдержал переезда, и поэтому хозяин квартиры приобрёл новый, который и стал определяющим элементом будущего интерьера.

-6

Диван является раскладным и может служить местом для сна гостей. Кроме того, в комнате предусмотрены различные системы хранения.

-7

Спальня-кабинет

В помещении, предназначенном для сна, установили стеклянную перегородку, которая разделила его на две части. Теперь здесь есть две зоны: спальня и рабочий кабинет. Благодаря стеклянной перегородке, в кабинет проникает естественный свет из окна. Перегородку изготавливали на заказ.

-8

Так как хозяин квартиры преподаватель по машиностроению, он всегда работает с большим обилием чертежей, поэтому и рабочий стол делали индивидуально.

В центре спальни располагается двуспальная кровать с мягким изголовьем в синих тонах. Напротив кровати установлен комод, а рядом вместительный гардероб, который выкрашен в цвет стен и визуально растворяется в пространстве. Акцентная стена, расположенная за изголовьем кровати, декорирована обоями с растительным принтом.

-10

По обе стороны от кровати стоят тумбы, которые отличаются по форме и габаритам. Однако благодаря общей цветовой гамме это различие почти не бросается в глаза.

Кухня

В столовой зоне находится квадратный стол и два стула жёлтого цвета, которые гармонируют с мягкой мебелью в гостиной и перекликаются с желтой полосой под потолком.

Напротив разместили угловой кухонный гарнитур, изготовленный по индивидуальным размерам. Здесь имеется аж три яруса в разной расцветке: нижний выполнен в насыщенном коричневом цвете, средний — в белом, а третий покрашен в желтый цвет.

Что касается фартука, то он оформлен керамической плиткой с геометрическим узором.

Ванная комната и санузел

Ванную комнату вместе с санузлом оставили раздельными. В туалете для оформления инсталляции и экрана под ванной была использована та же плитка, что и для фартука на кухне.

-14

Так же в этих двух помещениях были использованы еще несколько видов плитки и водостойкая краска. Что касается функционала, то здесь всё по классике: раковина, ванна, унитаз, места для хранения и тд.

-15

Если вам понравилась статья, то не забудьте поставить лайк и подписаться, чтобы не пропустить новый материал!

Так же пишите в комментариях, что вам понравилось в этом проекте, а что вызывает сомнения.