Добавить в корзинуПозвонить
Найти в Дзене

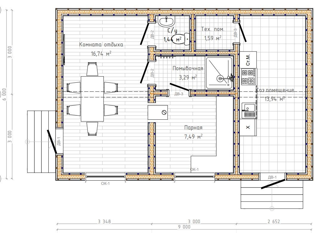
Баня 6х9 с отдельным хоз. помещением

Эта каркасная баня имеет ДВА входа: первый – в комнату отдыха, второй – в хозяйственное помещение.
Односкатная крыша
Проект 2024г, создан для Пермского края Снеговой район: IV
Ветровой район: I Пиломатериал стоек наружных стен: сухая-строганная 145х45 мм
Высота 1-го этажа: 2,5 м Кол-во свай: 18шт
Объем пиломатериала каркаса: 8,61 м3
Угол ската кровли: 10 градусов КР – конструктивный раздел, включает чертежи всех стен, перекрытий.
Файл распиловки пиломатериалов – для создания домокомплекта и экономного раскроя 6 м доски
Смета (сводные данные)
3д модель каркаса и эскизная 3д модель в скетчап
Оглавление

Эта каркасная баня имеет ДВА входа: первый – в комнату отдыха, второй – в хозяйственное помещение.
Односкатная крыша
Проект 2024г, создан для Пермского края

-2

Общая площадь: 44,50 м2

-3

Снеговой район: IV
Ветровой район: I

-4

Пиломатериал стоек наружных стен: сухая-строганная 145х45 мм
Высота 1-го этажа: 2,5 м

-5

Кол-во свай: 18шт
Объем пиломатериала каркаса: 8,61 м3
Угол ската кровли: 10 градусов

-6

Стоимость стройматериалов на утепленную коробку с отделкой (2024г): ~1 350 000р

-7

Проект включает в себя:

КР – конструктивный раздел, включает чертежи всех стен, перекрытий.
Файл распиловки пиломатериалов – для создания домокомплекта и экономного раскроя 6 м доски
Смета (сводные данные)
3д модель каркаса и эскизная 3д модель в скетчап

Купить проект на нашем сайте

-9
-10