Добавить в корзинуПозвонить
Найти в Дзене
Мастерская дизайнера

Трековое освещение в спальне и прихожей с направленным и отраженным светом, а также схема освещения и светового зонирования в квартире

На текущем этапе работы над дизайн-проектом квартиры нужно тщательно отработать световое зонирование и управление освещением. Предыдущий материал по этой квартире можете найти здесь: Основная стилистическая идея связана с использованием трекового освещения. В гостиной и на кухне используется многим знакомая встроенная трековая система. Она позволяет выиграть высоту потолка, при этом обеспечивает гибкое управление и настройку освещения комнаты. Но основная идея, которая в этот раз предлагается на рассмотрение, связана с применением магнитной модульной системы Flarity от Maytoni. Эта система обладает изяществом, функциональностью и выразительностью, благодаря своей тонкой выносной конструкции. Но прежде всего, она меня заинтересовала благодаря своей гибкости в освещении и возможности создания эффекта отраженного света, который очень востребован в спальне и прихожей (в ночное время). Это достигается за счет использования светильников Plato, повернутых к потолку, и закрепленных на тр
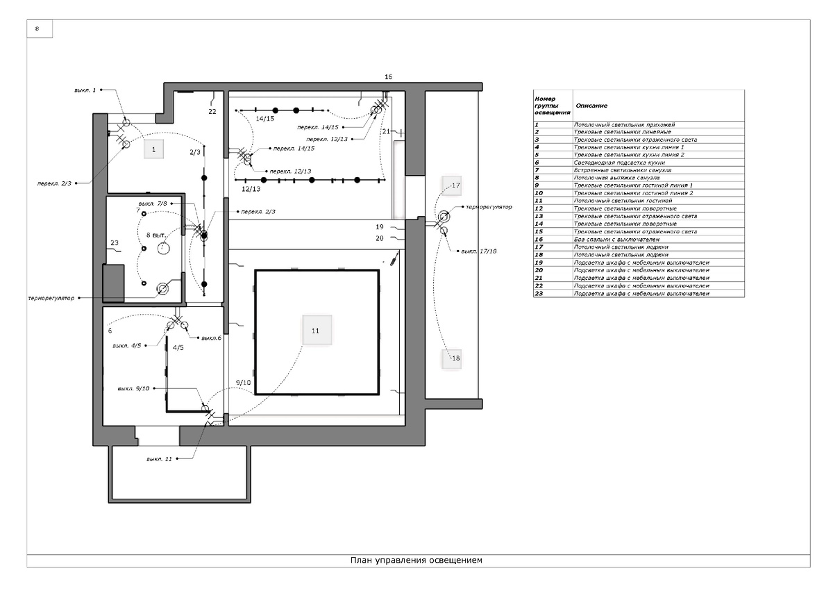
Схема управления освещением в квартире
Схема управления освещением в квартире

На текущем этапе работы над дизайн-проектом квартиры нужно тщательно отработать световое зонирование и управление освещением.

Предыдущий материал по этой квартире можете найти здесь:

Основная стилистическая идея связана с использованием трекового освещения.

В гостиной и на кухне используется многим знакомая встроенная трековая система. Она позволяет выиграть высоту потолка, при этом обеспечивает гибкое управление и настройку освещения комнаты.

Но основная идея, которая в этот раз предлагается на рассмотрение, связана с применением магнитной модульной системы Flarity от Maytoni.

Эта система обладает изяществом, функциональностью и выразительностью, благодаря своей тонкой выносной конструкции.

Но прежде всего, она меня заинтересовала благодаря своей гибкости в освещении и возможности создания эффекта отраженного света, который очень востребован в спальне и прихожей (в ночное время).

Это достигается за счет использования светильников Plato, повернутых к потолку, и закрепленных на треке на определенном расстоянии от него. Потолок мягко отражает свет, полностью исключается слепящий эффект.

Для того же, чтобы создать прямое или направленное освещение, в трековой системе используются другие светильники, причем их можно сочетать в одном треке.

В спальне я добавил поворотные споты Fokus, которые светят на секции шкафа-перегородки и стену с постерами:

Эскиз спальни с трековой системой Flarity
Эскиз спальни с трековой системой Flarity
Эскиз спальни с трековой системой Flarity
Эскиз спальни с трековой системой Flarity

На самом деле такая трековая система зрительно делает выше даже низкий потолок, который не отличается высотой в панельном доме.

Светильник Fokus от Maytoni
Светильник Fokus от Maytoni

В прихожей и коридоре отраженный свет можно использовать как ночное освещение.

Для светильника прямого освещения здесь я предлагаю простой линейный светильник с матовым рассеивателем Basis.

Светильник Basis от Maytoni
Светильник Basis от Maytoni
Эскиз прихожей с трековой системой Flarity
Эскиз прихожей с трековой системой Flarity

Схему светового зонирования и управления освещением в квартире можно посмотреть в начале этой статьи.