Добавить в корзинуПозвонить
Найти в Дзене
SloyArch

Роскошь французского ультрамарина

Географически квартира располагается в живописном районе у западного залива Москва реки. Непосредственная близость к воде и тихое окружение навеивают мысли о Лазурном побережье Франции, что и было взято за основу при разработке интерьера. Планировка Планировка помещения разрабатывалась исходя из потребности размещения не более 1-2 человек. Обязательным условием было зонирование спальной зоны и полноценная кухня. Основное настроение Жилое помещение разрабатывалось для молодой девушки, увлеченной чтением и путешествиями. Это сразу бросается в глаза при виде стеллажей для книг и привозных артефактов. Основной цветовой палитрой были выбраны природные оттенки морского побережья: песочно-бежевый, шалфейно-зеленый, древесный и синий цвет океана, получивший воплощение в акцентной стене спальной зоны и плитке санузла. Ванная комната Жемчужина проекта - это ванная комната. В данном помещении были использованы крайне смелые цветовые решения как в выборе плитки, так и при выборе цвета сантехни

Географически квартира располагается в живописном районе у западного залива Москва реки. Непосредственная близость к воде и тихое окружение навеивают мысли о Лазурном побережье Франции, что и было взято за основу при разработке интерьера.

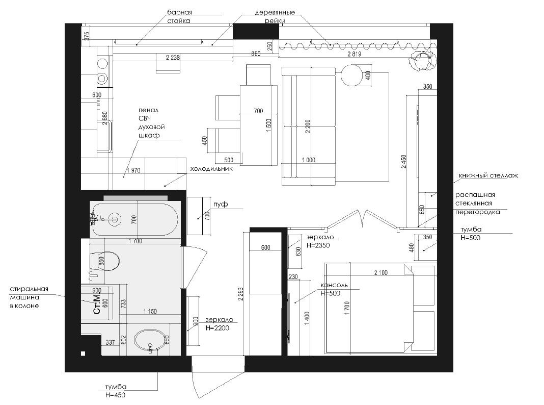
Планировка

Планировка помещения разрабатывалась исходя из потребности размещения не более 1-2 человек. Обязательным условием было зонирование спальной зоны и полноценная кухня.

Площадь апартамента - 38 м2
Площадь апартамента - 38 м2

Основное настроение

Жилое помещение разрабатывалось для молодой девушки, увлеченной чтением и путешествиями. Это сразу бросается в глаза при виде стеллажей для книг и привозных артефактов.

Общее настроение интерьера - природные оттенки
Общее настроение интерьера - природные оттенки

Основной цветовой палитрой были выбраны природные оттенки морского побережья: песочно-бежевый, шалфейно-зеленый, древесный и синий цвет океана, получивший воплощение в акцентной стене спальной зоны и плитке санузла.

Ванная комната

Жемчужина проекта - это ванная комната. В данном помещении были использованы крайне смелые цветовые решения как в выборе плитки, так и при выборе цвета сантехники.

Ультрамариновая плитка и золотая сантехника
Ультрамариновая плитка и золотая сантехника

Представленная испанская плитка со смелым синим цветом изготовлена по аутентичной технологии, что создаёт необычную неровную поверхность с переливами. Данная особенность доставляет трудности при установке, однако в результате получается уникальная игра бликов, которая никого не оставляет равнодушным.

Великолепная игра света на глазури плитки
Великолепная игра света на глазури плитки

Для баланса синего дизайнер прибегла к ещё одному смелому решению и предложила комплект золотой сантехники в сочетании с бежевой декоративной штукатуркой и ламинированной мебелью под дерево. Финальным акцентом выступает испанская контрастная плитка на полу с паттерном из белых и черных квадратов.

Золотая сантехника + фишка слив-перелив вместо крана в ванной.
Золотая сантехника + фишка слив-перелив вместо крана в ванной.

Кухня - гостиная

Возвращаясь обратно в жилое пространство хотелось бы обратить внимание на использование белого кварцевого агломерата в кухонной зоне для рабочей поверхности, фартука, а также для кухонного стола, выполненного на заказ.

Шалфейно-зеленая кухня обрамлен элементами в золотых оттенках, что откликается с общим настроением интерьера.
Шалфейно-зеленая кухня обрамлен элементами в золотых оттенках, что откликается с общим настроением интерьера.

Несмотря на скромные размеры, кухня полноценно сочетает в себе весь необходимый для современной хозяйки функционал и технику. Вместо текстиля на окна были предложены жалюзи из натурального шпона.

На полу по всей площади апартаментов используется кварцвинил ёлка под дерево, что визуально придаёт определенного шарма, позволяет исключить использование плитки на кухне и даёт возможность сделать напольное покрытие по всей площади равномерно без стыков.

Кварцвинил английская ёлка
Кварцвинил английская ёлка

Зона для сна

Спальная зона ограждена от кухни-гостиной при помощи стеклянной перегородки с распашными дверями. Таким образом мы получили возможность отделить зону сна от гостиной и при этом без ущерба пространству, которого в апартаментах дефицит.

Спальная зона
Спальная зона

Декор

На стене вдоль кровати расположился дуплекс из текстурных картин, написанных подразделением нашей студии (SloyDecor), которые написаны тем же цветом, что и декоративная штукатурка. Их изюминка заключается в текстуре, которая по-разному отражает свет, что добавляет интерьеру уюта, но при этом не создает лишнего визуального шума.

Текстурные картины SloyDecor
Текстурные картины SloyDecor

Хранение

Места хранения расположены в большом шкафу в прихожей, который сочетает в себе уникальный органайзер для хранения бытового инвентаря, сезонной одежды и обуви.

Нежно розовые фасады основного шкафа для хранения
Нежно розовые фасады основного шкафа для хранения

Освещение

Свет в квартире сочетает в себе основные трековые светильники, споты и пассивное освещение в стеллажах. Благодаря трекам, в апартаментах есть возможность индивидуально подсвечивать картины и элементы декора в стеллажах на подобие того, как это делается в музеях.

-11

Фишки

В санузле в вертикальном стеллаже спрятана стиральная машина, установленная на постаменте, и с выведенной под неё вентиляцией, что исключает накопление конденсата и сырости даже при регулярной эксплуатации стиральной машины в закрытом состоянии стеллажа.

-12

Вместо крана для набора воды в ванну был установлен слив-перелив с наполнением, а от полотенцесушителя отказались в пользу теплой стены.

Кондиционер спрятан в навесном шкафу кухонной мебели. Для его использования необходимо раскрыть дверцы, а после использования - закрыть. Это было сделано с целью экономии денежных средств, а также, для снижения визуального шума.

-13

О студии

На нашем сайте у каждого реализованного проекта есть возможность сравнить проектные рендеры, разработанные на этапе проектирования и итоговые фото. Таким образом можно увидеть на сколько точно были реализованы согласованные с заказчиками идеи будущего интерьера.

Мы работаем с жилыми и коммерческими объектами (квартиры, дома, общепит, офисные помещения, техцентры)

В нашей команде все специалисты имеют архитектурное или инженерное образование.

Автор проекта

Лили Кайсарова - архитектор, руководитель и основатель студии SloyArch
Лили Кайсарова - архитектор, руководитель и основатель студии SloyArch