Добавить в корзинуПозвонить
Найти в Дзене

Фотообзор Фаворита 6х9 П6 – идеальный загородный дом для вашей семьи!

Сегодня мы хотим познакомить вас с одним из проектов полутораэтажных домов. Фаворит 6х9 П6 площадью 100 м² пользуется спросом у наших заказчиков из-за своей удобной планировки и демократичной стоимости. Так что давайте посмотрим на дом поближе! Ссылка на проект: https://sk-aprel.ru/catalog/favorit/favorit-6x9-p6?utm_source=yandex.zen1 На 1 этаже расположены кухня-гостиная, санузел, техническое помещение, комната и терраса. На 2 этаже – 3 комнаты и санузел. Все, что нужно и ничего лишнего! Помните, что вы можете вносить любые правки в проект и менять назначение комнат по своему желанию. На входе располагается уютная небольшая терраса. Установив там столик и стулья, вы создадите себе приятное место для отдыха на природе. Для многих заказчиков наличие тамбура – важный нюанс, поскольку он призван защищать дальнейшие комнаты от ветра и холода. Также тамбур часто называют «грязной зоной», где люди переобуваются и переодеваются, прежде чем зайти в дом. Здесь мы установили шкаф, вешалки и зер
Оглавление

Сегодня мы хотим познакомить вас с одним из проектов полутораэтажных домов. Фаворит 6х9 П6 площадью 100 м² пользуется спросом у наших заказчиков из-за своей удобной планировки и демократичной стоимости. Так что давайте посмотрим на дом поближе!

Ссылка на проект: https://sk-aprel.ru/catalog/favorit/favorit-6x9-p6?utm_source=yandex.zen1

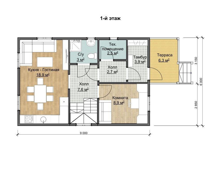
Планировка дома

На 1 этаже расположены кухня-гостиная, санузел, техническое помещение, комната и терраса.

-2

На 2 этаже – 3 комнаты и санузел. Все, что нужно и ничего лишнего!

-3

Помните, что вы можете вносить любые правки в проект и менять назначение комнат по своему желанию.

Фотообзор дома

На входе располагается уютная небольшая терраса. Установив там столик и стулья, вы создадите себе приятное место для отдыха на природе.

Терраса
Терраса

Для многих заказчиков наличие тамбура – важный нюанс, поскольку он призван защищать дальнейшие комнаты от ветра и холода. Также тамбур часто называют «грязной зоной», где люди переобуваются и переодеваются, прежде чем зайти в дом.

Здесь мы установили шкаф, вешалки и зеркало.

-5

Кухня-гостиная получилась просторной. Во всю стену установлен кухонный гарнитур, в нем много мест для хранения столовой утвари. С другой стороны помещения мы сделали небольшое рабочее пространство с компьютерным столом, комодом и диваном.

Вы можете здесь поставить обеденный стол, кресла и телевизор.

В техническом помещении установлены электрощитки, электрокотел и водонагреватель. Они будут поддерживать жизнедеятельность вашего дома.

Техническое помещение
Техническое помещение

Из свободной комнаты на 1 этаже мы сделали кабинет. У вас это может быть комната для творчества, спальня или детская.

Кабинет на 1 этаже
Кабинет на 1 этаже

На второй этаж нас ведет надежная двухмаршевая лестница. Она спроектирована с учетом безопасности для детей и пожилых людей.

Лестница на 2 этаж
Лестница на 2 этаж

Спальня на втором этаже поистине просторная. Мы поставили здесь большую двуспальную кровать, кресло с пуфом, комод, шкаф и всеми любимый туалетный столик. Здесь даже еще осталось место!

Рядом расположили детскую с кроватью, письменным столом, комодом и шкафчиком.

Также сделали еще один кабинет на втором этаже. У вас это может быть дополнительная гостевая спальня или комната для вашего ребенка.

Посетите дом на выставочной площадке

Приглашаем всех желающих посмотреть на Фаворит 6х9 П6 на нашей выставочной площадке в ВЦ «Малоэтажная страна» ежедневно с 10:00 до 19:00.

Адрес: МО, г. Котельники, Дзержинское шоссе, вл. 7/7, дом 43.

👉 Другие проекты СК «Апрель»