Добавить в корзинуПозвонить
Найти в Дзене
DIVAN.RU

ДО/ПОСЛЕ: яркий дизайн двушки 54 кв.м в старом кирпичном доме

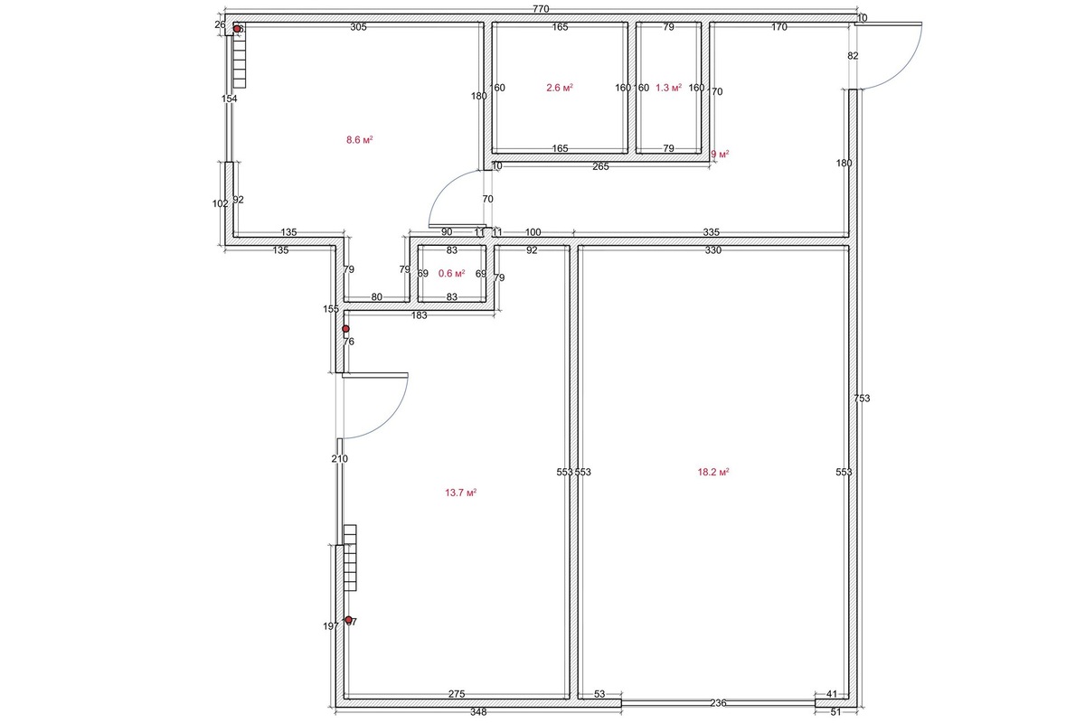
Молодые супруги купили эту двухкомнатную квартиру со старым ремонтом и крошечной кухней, но с потрясающим видом на лес. Они снесли все стены, сделали перепланировку и оформили стильный интерьер, вдохновившись картинками Pinterest. Об объекте: двухкомнатная квартира 54 кв.м, г. Дубна, Московская область, Хозяйка квартиры, дизайнер и автор фото: Варвара Толмачева Бюджет: 3 млн рублей Изначально это была типовая квартира с двумя раздельными комнатами, изолированной крохотной кухней, раздельным санузлом и большой лоджией. Изменения коснулись всей планировки. Стену между кухней и комнатой снесли, объединив два помещения в одно пространство. Во второй комнате обустроили спальню. Санузел объединили. По новому плану в квартире есть кухня-гостиная, спальня, прихожая, совмещенный санузел. На момент покупки в комнате был довольно типичный позднесоветский интерьер. На полу лежал изношенный паркет, на стенах — неактуальные обои. В качестве единственного источника освещения выступала трехрожковая лю
Оглавление

Молодые супруги купили эту двухкомнатную квартиру со старым ремонтом и крошечной кухней, но с потрясающим видом на лес. Они снесли все стены, сделали перепланировку и оформили стильный интерьер, вдохновившись картинками Pinterest.

Об объекте: двухкомнатная квартира 54 кв.м, г. Дубна, Московская область,

Хозяйка квартиры, дизайнер и автор фото: Варвара Толмачева

Бюджет: 3 млн рублей

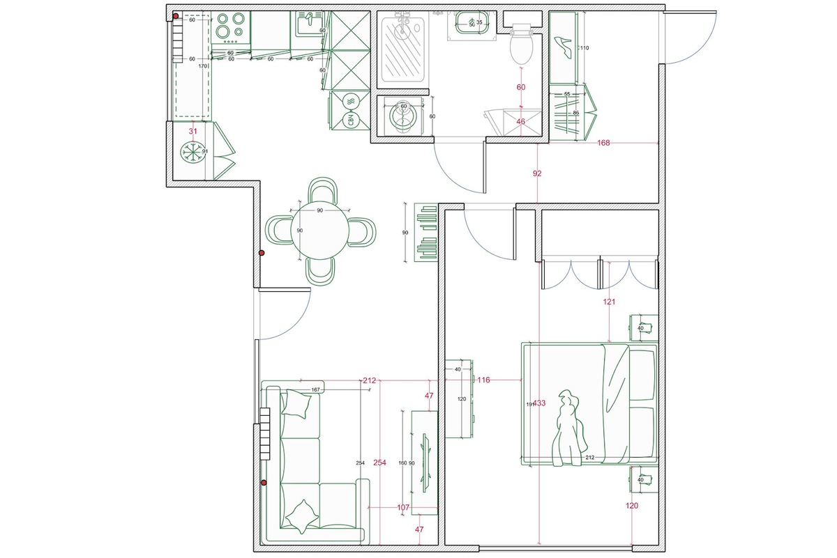
Изначально это была типовая квартира с двумя раздельными комнатами, изолированной крохотной кухней, раздельным санузлом и большой лоджией. Изменения коснулись всей планировки. Стену между кухней и комнатой снесли, объединив два помещения в одно пространство. Во второй комнате обустроили спальню. Санузел объединили. По новому плану в квартире есть кухня-гостиная, спальня, прихожая, совмещенный санузел.

Гостиная

На момент покупки в комнате был довольно типичный позднесоветский интерьер. На полу лежал изношенный паркет, на стенах — неактуальные обои. В качестве единственного источника освещения выступала трехрожковая люстра на побеленном потолке.

Оконный блок демонтировали, сняли паркет и выровняли стены. На полу единым контуром уложили ламинат с теплой фактурой дерева, стены в кухне-гостиной покрыли краской в оттенке «кашемир».

Главным акцентом в гостиной стал угловой диван Виена от бренда divan.ru в обивке нежно-розового цвета. Розовый диван был мечтой хозяйки с того момента, когда она увидела такой на просторах Pinterest. В онлайн-конструкторе диванов на divan.ru нашелся «тот самый» велюр припыленного оттенка, и картинка сложилась.

В кадре угловой диван Виена, divan.ru >>

▶️Сейчас этот диван можно купить с выгодой до 25 000₽*. Сделайте интерьер уютнее этой осенью со скидками до 50% на распродаже divan.ru >>

-5

Кстати: в квартире живут два кота, поэтому обивку искали с плотной основой и фактурой, которая исключает появление зацепок. По словам хозяйки, велюр за полгода использования показал достойное качество: ткань легко очищается от шерсти и пятен, следов от когтей не остается.

Между кухней и гостиной обустроили обеденную зону с круглым столом и стульями на деревянном основании. Всю мебель из дерева в квартиру подобрали в похожем оттенке.

Кухня

Изначально это была кухня площадью 5 кв.м с советским ремонтом: крашеные зеленые стены, на полу — квадратная плитка. Между кухней и санузлом — окно. В одной из стен была ниша, а над ней — антресоль. Требовалось обустроить функциональную кухню со всей необходимой современной техникой, а главное — найти место для большого двухдверного холодильника.

От старой отделки избавились полностью, стену между кухней и комнатой демонтировали. Одной из причин объединения кухни и гостиной стал большой холодильник, о котором мечтала хозяйка. Хотелось похожий на те, что показывали в фильмах, которые она смотрела в детстве. Новый двухдверный холодильник занял место в небольшой нише, у окна.

Гарнитур с темно-синими фасадами выгодно смотрится на фоне светлых стен и хорошо гармонирует с серой плиткой фартука и деревянным полом. Мебель выстроили углом и сделали по правой стороне шкафы-пеналы «под потолок». Кухня выглядит опрятно и незахламленно — все необходимое надежно скрыто за дверцами фасадов с интегрированными ручками.

Интерьер квартиры 54 кв.м в г. Дубна. Хозяйка квартиры и дизайнер: Варвара Толмачева. Авторы фото: Ксения Мокрова и Варвара Толмачева
Интерьер квартиры 54 кв.м в г. Дубна. Хозяйка квартиры и дизайнер: Варвара Толмачева. Авторы фото: Ксения Мокрова и Варвара Толмачева

Обратите внимание: при замене окон подоконник слегка приподняли, чтобы гарнитур вошел по высоте, поэтому столешница расположена немного выше стандартной кухни.

Спальня

Для отделки стен в спальне выбрали природный светло-зеленый оттенок. Он вызывает у владельцев положительные эмоции, снимает усталость, позволяет чувствовать себя комфортно и расслаблено.

По словам хозяйки, кровать, которая стоит в спальне, ей буквально приснилась. На следующий день она пошла искать похожую модель и нашла кровать Фостер на divan.ru. Дополнительный бонус: под кроватью очень удобно хранить сезонные вещи в большом бельевом ящике.

В кадре кровать Фостер 160 Velvet Smoke, divan.ru >>

▶️Сейчас эту кровать можно купить с выгодой до 11 000₽*. Сделайте интерьер уютнее этой осенью со скидками до 50% на распродаже divan.ru >>

-13

Кровать дополнили деревянными прикроватными тумбами и акцентными золотистыми бра. Около окна обустроили рабочее место, которое может служить туалетным столиком.

Во время ремонта намеренно возвели нишу, в которой сделали встроенный шкаф для хранения. Одна половина — женская, вторая — мужская.

Прихожая

В прихожей требовалось полностью преобразить интерьер советских времен и создать современную функциональную обстановку, комфортную для повседневной жизни.

Фото прихожей во время ремонта
Фото прихожей во время ремонта

Это помещение еще находится в процессе обустройства. Стены окрашены в акцентный серо-синий цвет, пол выложен керамогранитом. Из мебели во входной зоне временно поставили комплект от divan.ru: обувница и вешалка Линт. В будущем место вешали займет полноценный шкаф, так как мест для хранения не хватает.

Санузел

До переделки санузел был раздельный — ванная комната и туалет. В замене здесь нуждались все стены. Их снесли и выстроили заново. Состояние несущей стены в ванной тоже оставляло желать лучшего, на нее было невозможно положить плитку. В результате уменьшили длину душевой и надстроили перед крошащейся стеной новую.

Ванну заменили на душевую со стеклянной перегородкой, на стенах скомбинировали голубую квадратную плитку и крупноформатный керамогранит. Чтобы отделить постирочную от душевой, возвели стену. Для освещения предусмотрели три точечных светильника на потолке и зеркало с подсветкой.

=========

Оцените интерьер в комментариях, а если статья понравилась — не забудьте поставить лайк.

🖤divan.ru — не только блог про интерьеры, но и производитель доступной дизайнерской мебели. Ищите новые идеи и переходите на сайт, чтобы воплотить их в жизнь.

*Цены актуальны на момент публикации статьи