Добавить в корзинуПозвонить
Найти в Дзене
Realt.by

Смотрите, какой классный ремонт минчане сделали в хрущевке. Она выставлена на продажу

Недалеко от станции метро «Тракторный завод» продается однокомнатная квартира с уютным ремонтом. Тут есть полноценная спальня и кухня. Кажется, в однушке будет присутствовать атмосфера лета даже в холодное время. Все потому, что в интерьере есть зеленый оттенок и множество комнатных цветов. Посмотрите, как выглядит квартира и узнайте ее стоимость. Дом на Щербакова, 27 — пятиэтажная хрущевка 1964 года постройки. На последнем этаже тут продается однокомнатная квартира в 30,4 м². Площадь кухни — 5,7 м². Внутри сделан хороший ремонт. Тут были заменены окна, трубы, проводка, стеклопакеты. В жилой комнате сделана полноценная спальня. Около стены находится большой шкаф. Стены однушки украшают постеры, уюта придают и комнатные цветы. На полу лежат деревянное покрытие и плитка. Из комнаты есть выход на открытый балкон. Там стоит стол и стулья. Обустроена и кухня с обеденной зоной. Из техники имеются холодильник, газовая плита и чайник. Все, что есть на фотографиях, остается после продажи. Сануз

Недалеко от станции метро «Тракторный завод» продается однокомнатная квартира с уютным ремонтом. Тут есть полноценная спальня и кухня. Кажется, в однушке будет присутствовать атмосфера лета даже в холодное время. Все потому, что в интерьере есть зеленый оттенок и множество комнатных цветов. Посмотрите, как выглядит квартира и узнайте ее стоимость.

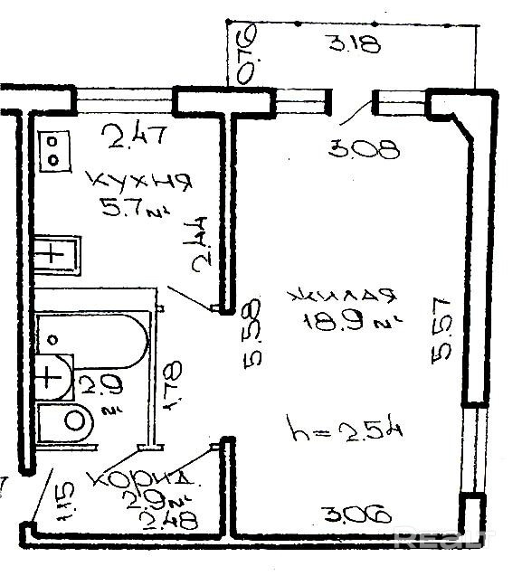
Дом на Щербакова, 27 — пятиэтажная хрущевка 1964 года постройки. На последнем этаже тут продается однокомнатная квартира в 30,4 м². Площадь кухни — 5,7 м².

-2

Внутри сделан хороший ремонт. Тут были заменены окна, трубы, проводка, стеклопакеты. В жилой комнате сделана полноценная спальня. Около стены находится большой шкаф. Стены однушки украшают постеры, уюта придают и комнатные цветы. На полу лежат деревянное покрытие и плитка.

Из комнаты есть выход на открытый балкон. Там стоит стол и стулья.

Обустроена и кухня с обеденной зоной. Из техники имеются холодильник, газовая плита и чайник. Все, что есть на фотографиях, остается после продажи.

Санузел тут совмещенный.

Квартира располагается в аккуратном подъезде. Рядом с домом находятся Антоновский парк и сквер Клумова, с другой стороны — станция метро «Тракторный завод».

-6

Стоимость квартиры — 63 700 долларов. Квадратный метр — 2 095 долларов.