Добавить в корзинуПозвонить
Найти в Дзене

Как продумать все розетки на кухне. Ох, нелегкая это работа)))

Здравствуйте! Мы строили дом с нуля. Без дизайнеров и проектов. И одной из самых сложных задач для меня было расположение розеток на кухне. Смотря на голые стены я совершенно не могла представить где, какая и зачем мне нужна розетка. Знала лишь то, что розеток много не бывает и лучше больше, чем меньше))) Я пыталась рисовать будущую кухню на листе бумаги, что оказалось очень муторно, т.к. постоянно гуглила: "а какая стандартная ширина духового шкафа, посудомойки, мойки и т.д.", "а какая стандартная высота нижнего ряда шкафов" и т.д. Затем пыталась сделать 3D проект в различных бесплатных компьютерных программах. Получше, но тоже результат ужасен. И я отправилась в Леруа Мерлен (ныне Лемана ПРО) на создание бесплатного проекта кухни. Сразу честно предупредила, что кухню пока заказывать не буду и проект мне нужен исключительно для расположения розеток. Никто на меня не обиделся, более того - похвалили за правильный подход. Сказали, что и им так легче работать, когда они могут удобно и п

Здравствуйте! Мы строили дом с нуля. Без дизайнеров и проектов. И одной из самых сложных задач для меня было расположение розеток на кухне. Смотря на голые стены я совершенно не могла представить где, какая и зачем мне нужна розетка. Знала лишь то, что розеток много не бывает и лучше больше, чем меньше))) Я пыталась рисовать будущую кухню на листе бумаги, что оказалось очень муторно, т.к. постоянно гуглила: "а какая стандартная ширина духового шкафа, посудомойки, мойки и т.д.", "а какая стандартная высота нижнего ряда шкафов" и т.д. Затем пыталась сделать 3D проект в различных бесплатных компьютерных программах. Получше, но тоже результат ужасен.

И я отправилась в Леруа Мерлен (ныне Лемана ПРО) на создание бесплатного проекта кухни. Сразу честно предупредила, что кухню пока заказывать не буду и проект мне нужен исключительно для расположения розеток. Никто на меня не обиделся, более того - похвалили за правильный подход. Сказали, что и им так легче работать, когда они могут удобно и правильно расположить кухню, не привязываясь к розеткам. Я лишь ткнула пальцем в понравившуюся мне кухню (просто для примера, ведь фасады, ручки, наполнение и т.д. можно поменять), назвала размеры и работа закипела. Дизайнер лихо расставляла модули кухни, а я лишь кивала головой в знак согласия.

Вот такая получилась кухня!
Вот такая получилась кухня!

На проекте мы расставили всю основную бытовую технику. Пришло понимание, где будет холодильник, вытяжка, варочная панель, духовой шкаф, встраиваемая микроволновка и посудомоечная машина (она в нижнем шкафу) и следовательно там нужны розетки.

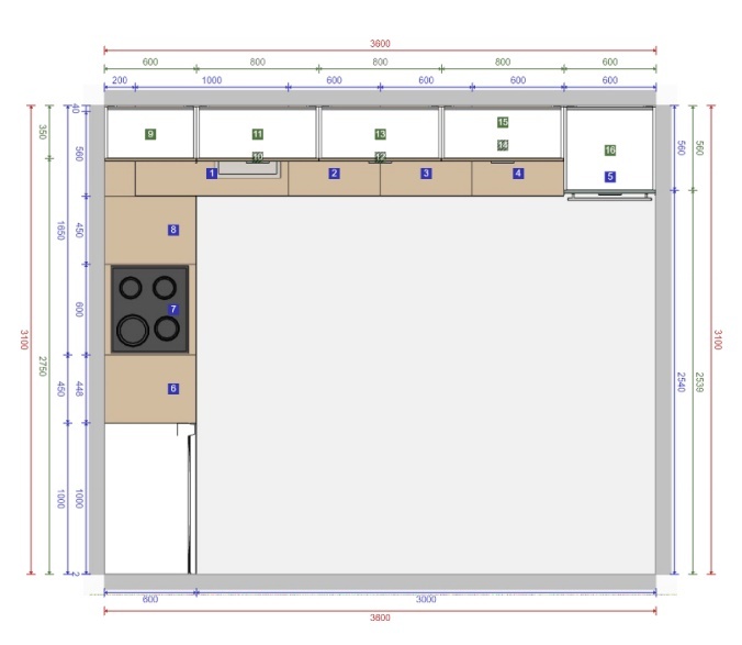
В принципе уже этого было достаточно. Но, Леруа (буду называть его так) приятно удивил. Дизайнер прислал мне на электронную почту чертеж с основными размерами, т.е. нам самим не пришлось высчитывать расстояния.

План с измерениями. Вид сверху
План с измерениями. Вид сверху
План с измерениями. Анфас по длинной стене
План с измерениями. Анфас по длинной стене
План с измерениями. Анфас по короткой стене
План с измерениями. Анфас по короткой стене

Благодаря Леруа Мерлен мы удобно расположили все розетки. Но заказали в другом месте. С этими фотографиями и чертежами я обратилась в фирму-изготовителю модульных кухонь и попросила просчитать стоимость. Леруа, извините, пожалуйста, но у конкурентов было дешевле))) Все основные модули сделали, как чертили в Леруа, добавили лишь еще один верхний ряд шкафов и поменяли цвет фасадов и столешницы. Скажу сразу, что там, где мы заказали кухню сделали ужаснейший чертеж, я так тоже нарисую (хоть и криворукая). Прислали одно единственное фото, глядя на которое хочется плакать)))

На проекте что-то ужасное))) А в жизни довольно симпатичная кухня)
На проекте что-то ужасное))) А в жизни довольно симпатичная кухня)

Сравните сами проект из Леруа и другой фирмы одной и той же кухни (не считая дополнительного верхнего ряда шкафов). Это же небо и земля!

Как из серии Ожидание/Реальность)))
Как из серии Ожидание/Реальность)))

Мы добавили еще розетки под кондиционер и телевизор (на других стенах), две розетки в оконных откосах (заряжать телефоны и ноут) и по ряду розеток на каждой рабочей стене (для чайника, тостера, блендера и т.д.). Получилось очень удобно. Для крупной бытовой техники все розетки получились скрытые, нигде никаких проводов не видно.

Про удобство розеток в откосах можно прочитать здесь:

В Леруа Мерлен таким образом можно сделать дизайн-проект любого помещения. Сестра по моему совету сделала дизайн-проект ванной комнаты. Но она и заказала все в Леруа, так что свой "грех" перед ними я искупила)))

Буду очень рада, если кому-то пригодится мой совет)

Спасибо большое всем!!! Надеюсь, что Вам понравилось! Буду рада лайку и подписке)