Найти в Дзене
Tig21.ru

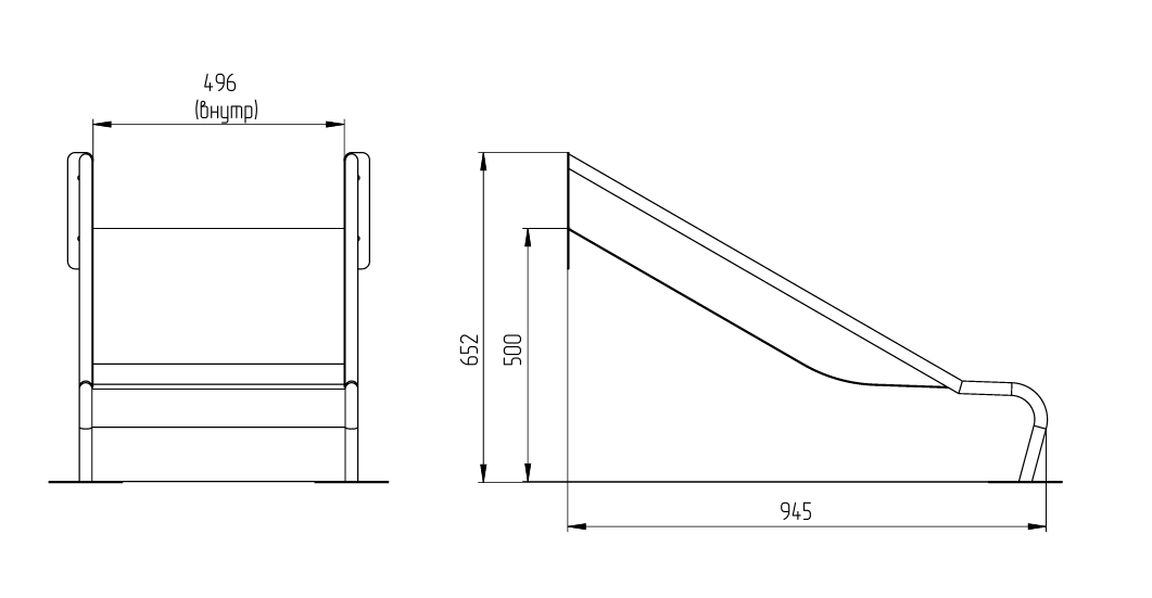
Детская горка h=500мм из нержавейки

Пришел заказ на проектирование и сборку горки высотой 500мм из нержавейки толщиной 2мм. Был спроектирована горка в Компасе, для удобства раскроя для лазерного станка. Вот такая красота появилась, заказчик был доволен. Если кого то заинтересовало такие изделия, обращайтесь. arturtex21@yandex.ru 89004520964 г. Чебоксары.

Пришел заказ на проектирование и сборку горки высотой 500мм из нержавейки толщиной 2мм.

Был спроектирована горка в Компасе, для удобства раскроя для лазерного станка.

-2
-3

Вот такая красота появилась, заказчик был доволен.

Если кого то заинтересовало такие изделия, обращайтесь.

arturtex21@yandex.ru

89004520964

г. Чебоксары.