Добавить в корзинуПозвонить
Найти в Дзене

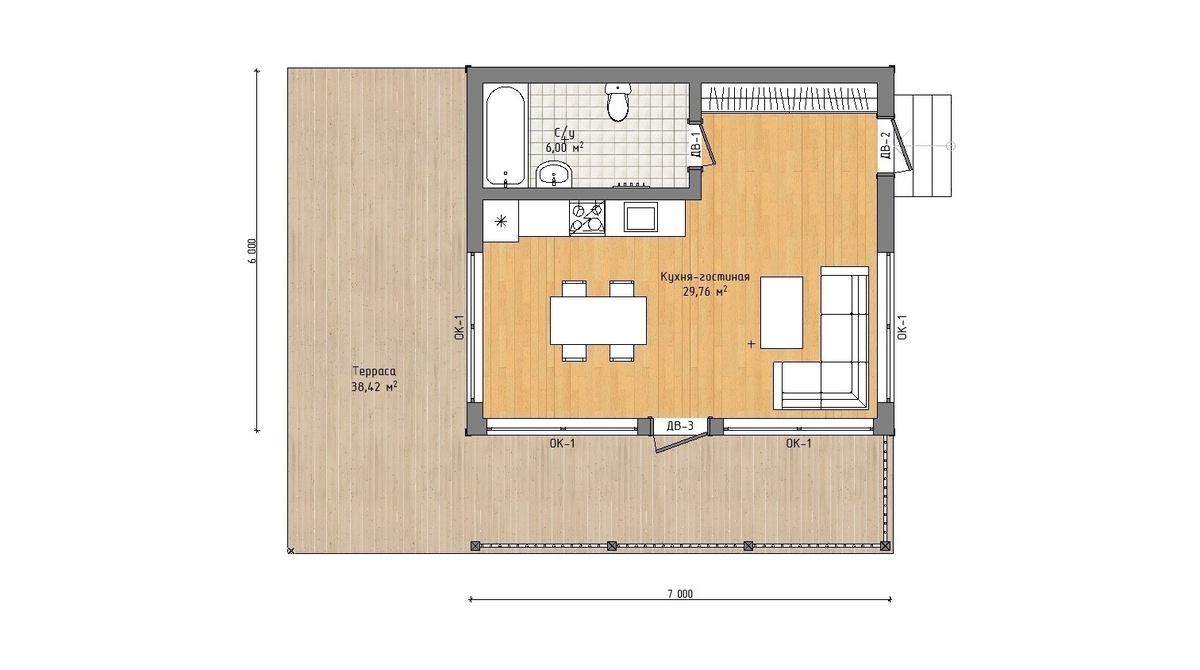
Небольшой одноэтажный домик для сезонного проживания 7х6 м.

Площадь помещений 35,7 м², терраса 38,4 м².
Утепление минеральной ватой.
Цокольное перекрытие 200 мм,
Наружные стены 150 мм,
Чердачное перекрытие 200 мм."
Каркас из доски естественной влажности, сечение 100х50, 150х50, 200х50 мм.
Фундамент винтовые сваи.
Стропильная система, опорные, несущие конструкции рассчитаны для строительства в III снеговом районе.
В состав проекта входит:
- Эскизный проект;
- Конструктивный раздел;
- Спецификация на материалы
- Схема раскроя пиломатериала
- Схема раскроя OSB
- 3D визуализация дома и каркаса
Полный эскизный проект можно посмотреть по ссылке https://disk.yandex.ru/i/4-aTYD30hoLP7A
#купитьпроектдома #заказатьпроектдома #проекткаркасногодома #проектдома #каркасныйдом #проекткаркас #проектдомамосква #проектзагородногодома

Площадь помещений 35,7 м², терраса 38,4 м².
Утепление минеральной ватой.
Цокольное перекрытие 200 мм,
Наружные стены 150 мм,
Чердачное перекрытие 200 мм."
Каркас из доски естественной влажности, сечение 100х50, 150х50, 200х50 мм.
Фундамент винтовые сваи.
Стропильная система, опорные, несущие конструкции рассчитаны для строительства в III снеговом районе.


В состав проекта входит:
- Эскизный проект;
- Конструктивный раздел;
- Спецификация на материалы
- Схема раскроя пиломатериала
- Схема раскроя OSB
- 3D визуализация дома и каркаса

Полный эскизный проект можно посмотреть по ссылке
https://disk.yandex.ru/i/4-aTYD30hoLP7A

#купитьпроектдома #заказатьпроектдома #проекткаркасногодома #проектдома #каркасныйдом #проекткаркас #проектдомамосква #проектзагородногодома