Добавить в корзинуПозвонить
Найти в Дзене
Мастерская дизайнера

Основные чертежи дизайн-проекта, добавление в спальню зеркала и туалетного столика: процесс работы над квартирой на Доброслободской

На текущем этапе мы уточняем и согласуем с заказчиком планы и чертежи дизайн-проекта, которые создаются на основе проработанной и точной трехмерной модели в SketchUp. Приведу готовые чертежи, которые уже учитывают последние доработки. Это план показывает общую планировку с расположением мебели и оборудования. По сравнению с прошлой версией проекта в спальне появилась встроенная в шкаф-перегородку у окна зона туалетного столика, а на противоположной стене от шкафа перед кроватью появилось большое настенное зеркало с подсветкой. Уточнены внутренние параметры санузла. По этому плану сейчас идет возведение перегородок и проемов в квартире. План пола показывает предполагаемое использование и зоны напольных покрытий. В зоне кухни, комнат и лоджии предполагается кварцевый ламинат (SPC-ламинат), в прихожей и санузле керамогранит. План дверей позволит запросить предложения у производителей дверей. В проекте предусмотрены распашные двери в спальню и санузел, дверь-книжка на кухню и 4-ех ство
Оглавление
Общий вид квартиры
Общий вид квартиры

На текущем этапе мы уточняем и согласуем с заказчиком планы и чертежи дизайн-проекта, которые создаются на основе проработанной и точной трехмерной модели в SketchUp.

Приведу готовые чертежи, которые уже учитывают последние доработки.

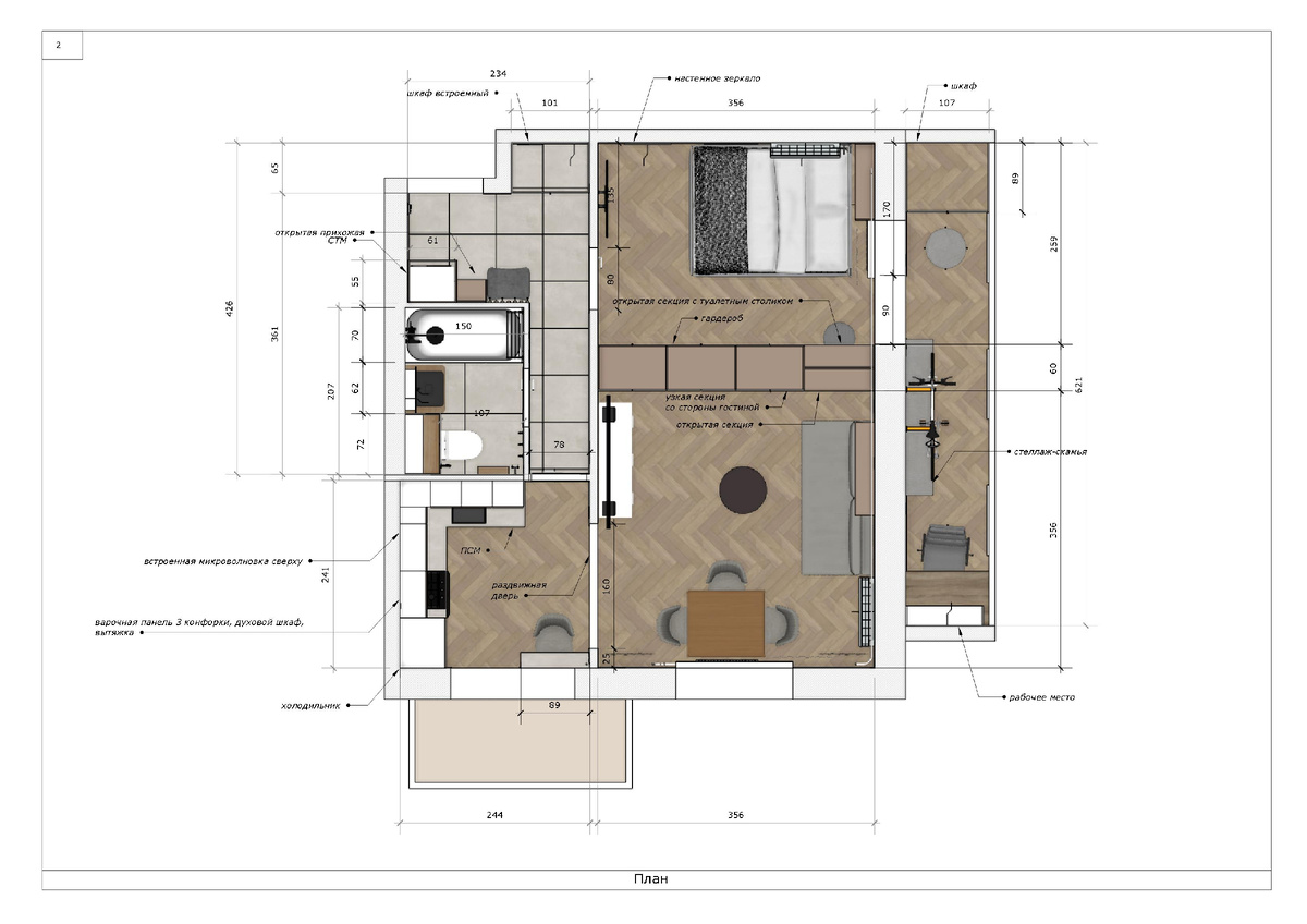
План квартиры с мебелью

План квартиры с мебелью
План квартиры с мебелью

Это план показывает общую планировку с расположением мебели и оборудования.

По сравнению с прошлой версией проекта в спальне появилась встроенная в шкаф-перегородку у окна зона туалетного столика, а на противоположной стене от шкафа перед кроватью появилось большое настенное зеркало с подсветкой.

Уточнены внутренние параметры санузла.

Монтажный план

Монтажный план
Монтажный план

По этому плану сейчас идет возведение перегородок и проемов в квартире.

План пола

План пола
План пола

План пола показывает предполагаемое использование и зоны напольных покрытий. В зоне кухни, комнат и лоджии предполагается кварцевый ламинат (SPC-ламинат), в прихожей и санузле керамогранит.

План межкомнатных дверей

План межкомнатных дверей
План межкомнатных дверей

План дверей позволит запросить предложения у производителей дверей. В проекте предусмотрены распашные двери в спальню и санузел, дверь-книжка на кухню и 4-ех створчатая дверь-гармошка из кухни в гостиную.

План размещения радиаторов отопления

План размещения радиаторов отопления
План размещения радиаторов отопления

На плане радиаторов отопления показаны габариты на плане, и указаны предполагаемые спецификации. Используются биметаллические радиаторы отопления.

План розеток

План розеток
План розеток

Указано расположение и назначение розеток.

Добавлены выводы и розетки в зоне туалетного столика и зеркала в спальне. Исключены интернет-розетки, по всей квартире будет беспроводной интернет.

План плинтусов

План плинтусов
План плинтусов

Показывает расположение плинтусов и их количество.

План потолка

План потолка
План потолка

На плане потолка указаны светильники, их назначение и тип с привязками к расположению, гипсокартонные короба с размерами и общие размеры потолка.

В санузле освещение разнесено на 2 группы - центральный основной светильник и дополнительные светильники.

Вытяжка убрана с потолка и перенесена на стену, где она изначально и располагается.

На лоджии используются светильники с двумя типами освещения. Они могут переключаться на прямое или скрытое освещение, тем самым создавая на лоджии разную световую атмосферу.

Так как светильники накладные, они расположены ближе к стене лоджии, чтобы не мешать возможному открыванию створок окон. Хотя их высота от потолка не велика, поэтому мешать не должны - но этот момент я еще проверю.

План управления освещением

План управления освещением
План управления освещением

На этом плане показано расположение выключателей и линии, или группы, освещения.

В гостиной добавлены переключатели освещения, и теперь свет в комнате можно включить от входа и около дивана или обеденного стола.

Добавлен выключатель в туалетной зоне спальни.

На лоджии свет тоже переключается с двух точек - у входа и около рабочего места. Так удобнее в длинном помещении.

Развертки стен спальни

Стена спальни со шкафом и туалетной зоной
Стена спальни со шкафом и туалетной зоной
Стена спальни со входом на лоджию
Стена спальни со входом на лоджию
Стена спальни с большим зеркалом
Стена спальни с большим зеркалом

Показ стен позволяет точно понять расположение мебели, отделочных материалов и электрики. Размеры будут проставлены позже, но сейчас показываю для иллюстрации изменений в спальне, связанных с добавлением туалетного столика и большого зеркала.

Эскизы квартиры

На эскизах можно посмотреть актуальную версию квартиры в трехмерном исполнении.

Работа продолжается.