Добавить в корзинуПозвонить
Найти в Дзене
ЭТО ВАШ ИНТЕРЬЕР

Бабушкин ремонт — это не приговор! Показываю, как я преобразила старую "сталинку" площадью всего 30 м² (сравните фото до и после)

Героиня этой истории — женщина, которая накопила определённую сумму денег и решила вложить их в недвижимость. Она приобрела небольшую старую квартиру в "сталинке", чтобы сдавать её в аренду. Квартира привлекла её своей относительно невысокой ценой и удачным расположением. Однако жильё было в плохом состоянии и выглядело непривлекательно, поэтому после покупки хозяйка обратилась к дизайнеру Полине Шотт. Её главной задачей было создать яркий интерьер, который выгодно отличался бы от конкурентов. Она хотела, чтобы в интерьере чувствовалась атмосфера природы, окружавшей дом. Также она хотела сохранить дух времени, ведь дом был построен в сталинскую эпоху. Всё началось с перепланировки помещения. Так же демонтировали полностью старую отделку. Под слоем старой отделки обнаружили аутентичную кирпичную кладку, которую решили оставить открытой. Она создаёт особую атмосферу при входе в квартиру и отражается в зеркальных дверцах шкафа. В шкафу предусмотрели место для хранения бытовых принадлежно
Оглавление

Героиня этой истории — женщина, которая накопила определённую сумму денег и решила вложить их в недвижимость. Она приобрела небольшую старую квартиру в "сталинке", чтобы сдавать её в аренду. Квартира привлекла её своей относительно невысокой ценой и удачным расположением.

Однако жильё было в плохом состоянии и выглядело непривлекательно, поэтому после покупки хозяйка обратилась к дизайнеру Полине Шотт. Её главной задачей было создать яркий интерьер, который выгодно отличался бы от конкурентов.

Она хотела, чтобы в интерьере чувствовалась атмосфера природы, окружавшей дом. Также она хотела сохранить дух времени, ведь дом был построен в сталинскую эпоху.

Проект

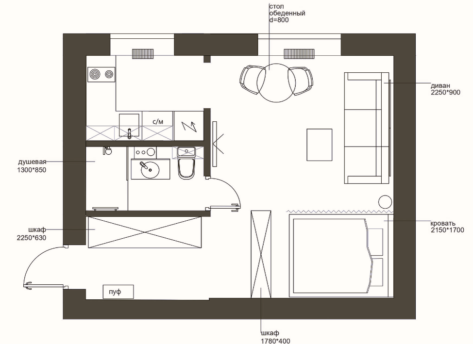
  • Местоположение: Минск
  • Площадь квартиры: 30 квадратных метров
  • Владельцы: женщина (квартира сдается в аренду)
-2

Прихожая

Всё началось с перепланировки помещения. Так же демонтировали полностью старую отделку. Под слоем старой отделки обнаружили аутентичную кирпичную кладку, которую решили оставить открытой. Она создаёт особую атмосферу при входе в квартиру и отражается в зеркальных дверцах шкафа. В шкафу предусмотрели место для хранения бытовых принадлежностей.

-3

А чтобы зрительно увеличить узкое помещение — на стене появилось большое зеркало. Часть стен покрасили в светлый оттенок, а на полу в "грязной" зоне использовали серую плитку.

-4

Спальня

Между прихожей и комнатой расположили еще один шкаф, который помимо хранения отвечает за зонирование пространства, ведь сразу за ним находится зона спальни. Кстати, зонирующий шкаф открывается с двух сторон: со стороны прихожей и со стороны спальни.

Кроме большой и красивой кровати здесь ничего не предусмотрено, так как площадь этой зоны весьма ограничена. Главным акцентом спальни стал насыщенный горчичный цвет, в который покрасили стены и потолок.

-6

Так же здесь повесили штору, чтобы можно было зонировать спальню от остальной комнаты (её подобрали в цвет стен).

-7

Гостиная

Раньше в квартире на полу был ламинат, который было решено демонтировать и вскрыть старый деревянный пол. Это сосновые доски, который отреставрировали и решили оставить как есть.

-8

Гостиная была оформлена в нейтральных тонах с целью достижения баланса и приглушения яркости оформления спальни. В этой зоне был размещён большой диван-трансформер, который гармонично соединяли все зоны помещения.

-9

Здесь так же находится компактная столовая группа, которую вынесли с кухни. В интерьере обеденной зоны гармонично сочетаются материалы с разной поверхностью и структурой.

-10

Лаконичный стол, над которым висит уютный светильник из натурального ротанга с игривыми кисточками. Венские стулья, которые отреставрировали и окрасили в насыщенный малиновый цвет.

-11

Кухня

Вход в кухонное пространство был перенесён из коридора в помещение. Отделка кухонной зоны выполнена в нейтральных тонах: белые стены и серая плитка на полу. Это решение позволяет гармонично сочетать кухонную зону с ярким кухонным гарнитуром, изготовленным на заказ.

-12

Фасады гарнитура выполнены в насыщенном оранжевом цвете. Верхние шкафы расположены только на одной стене, чтобы не перегружать ограниченное пространство.

-13

Ванная комната

В оформлении стен было применено несколько видов облицовочной плитки, цветовая гамма которой гармонирует с общим стилем кухни.

-14

Часть стен и потолок были специально окрашены в насыщенный синий цвет, что придало помещению ощущение глубины. Старую ванну заменили на просторную душевую кабину.

-15

Если вам понравилась статья, то не забудьте поставить лайк и подписаться, чтобы не пропустить новый материал!

Так же пишите в комментариях, что вам понравилось в этом проекте, а что вызывает сомнения.