Найти в Дзене

Детская комната в морском стиле.

Проект, для меня был необычным, не люблю делать такую явную символику стиля. Но мальчишкам, которые там будут жить понравилось. Техническое задание: Задние стенки кроватей выполнены в виде волн. Люстры плоские накладные. Стенка за диваном и боковая в виде планок. Бра над кроватями наподобие ламп на корабле. Над рабочим столом разноцветные подвесные светильники. Сам рабочий стол продолжение подоконника. Полки в шкафу разного цвета. На платяном шкафу фигурки рыбаков.
Концепт
Концепт

Проект, для меня был необычным, не люблю делать такую явную символику стиля.

Но мальчишкам, которые там будут жить понравилось.

Техническое задание:

  • Детская комната 20 кв.м.
  • Будут проживать 3 мальчиков погодки.
  • Стиль морской с символикой.
  • Большой рабочий стол
  • Книжные и полки для игрушек, спортивная стенка, платяной шкаф.
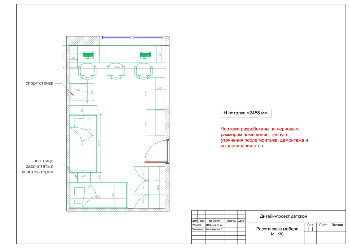
План расстановки мебели
План расстановки мебели
Развертка
Развертка
-4

Задние стенки кроватей выполнены в виде волн.

Люстры плоские накладные. Стенка за диваном и боковая в виде планок.

Бра над кроватями наподобие ламп на корабле.

-5
В лестнице ящики.
В лестнице ящики.

Над рабочим столом разноцветные подвесные светильники. Сам рабочий стол продолжение подоконника.

-7

Полки в шкафу разного цвета.

-8

На платяном шкафу фигурки рыбаков.

-9