Добавить в корзинуПозвонить
Найти в Дзене
Проекты домов RuPlans

Проект одноэтажного дома с гаражом и террасой

Общая площадь 113,3 кв.м Жилая площадь 58,2 кв.м Размеры дома 17,7 x 9,2 м Высота здания 6,2 м Количество комнат 4 Количество спален 3 Гараж есть Отделка фасадная штукатурка, камень Материал стен каркас Фундамент буронабивной, монолитный, ж/б Перекрытия деревянные Проект индивидуального одноэтажного одноквартирного жилого дома с размерами здания 17,7 x 9,2 м. Наружная отделка здания - фасадная штукатурка. Цоколь - отделка камнем. Фундамент - свайно-ростверковый (буронабивной). Ростверк - монолитный ж/б. Наружные стены - деревянный каркас. Между стойками каркаса заложить тепло-шумоизоляционные материалы, пароизоляцию. Внутренние стены - Доска, OSB-3 с двух сторон, внутр. отделка. Перегородки - Брус, отделка с двух сторон ГКЛ. Для устройства вентканалов и дымоходов используют трубы металлические, трубы керамические многослойные и.т.д. Выбор материала, конструкции и расположение в доме -по усмотрению заказчика. Пол первого этажа - пол по грунту. Чердачное перекрытие: по деревян
Оглавление

Характеристики проекта

Общая площадь 113,3 кв.м
Жилая площадь 58,2 кв.м
Размеры дома 17,7 x 9,2 м
Высота здания 6,2 м
Количество комнат 4
Количество спален 3
Гараж есть
Отделка фасадная штукатурка, камень
Материал стен каркас
Фундамент буронабивной, монолитный, ж/б
Перекрытия деревянные
Rg1624 - Одноэтажный дом с гаражом и террасой
https://ruplans.ru/proekti/proekti_1624.html
https://ruplans.ru/proekti/proekti_1624.html

Чат в WhatsApp с +7 904 349-96-90
Чат вTELEGRAMM с +7 904 349-96-90

Проект индивидуального одноэтажного одноквартирного жилого дома с размерами здания 17,7 x 9,2 м. Наружная отделка здания - фасадная штукатурка. Цоколь - отделка камнем. Фундамент - свайно-ростверковый (буронабивной). Ростверк - монолитный ж/б. Наружные стены - деревянный каркас. Между стойками каркаса заложить тепло-шумоизоляционные материалы, пароизоляцию. Внутренние стены - Доска, OSB-3 с двух сторон, внутр. отделка. Перегородки - Брус, отделка с двух сторон ГКЛ. Для устройства вентканалов и дымоходов используют трубы металлические, трубы керамические многослойные и.т.д. Выбор материала, конструкции и расположение в доме -по усмотрению заказчика. Пол первого этажа - пол по грунту. Чердачное перекрытие: по деревянным балкам с пароизоляцией и использованием тепло-шумоизоляционных материалов в межбалочном пространстве. Кровля - металлочерепица. Окна - металлопластиковые, выполненные по индивидуальному заказу.
При разработке проектов домов по каркасной технологии, конструктив стен на стадии проектирования не прорабатывается подробно, так как это целесообразнее производить на стройплощадке уже по ходу строительства. (т.е. в состав проектной документации не входят развертки стен, сборочные схемы и спецификация элементов каркаса). В конструктиве проекта будут присутствовать монтажные планы и основные узлы.

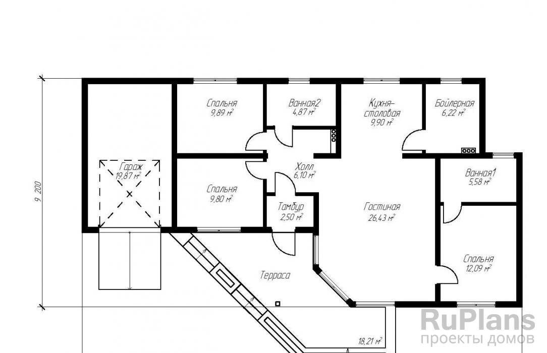
Гостиная — 26,43 кв м Кухня — 9,90 кв м Ванная 1 — 5,58 кв м Бойлерная — 6,22 кв м Спальня — 12,09 кв м Холл — 6,10 кв м Ванная 2 — 4,87 кв м Тамбур — 2,50 кв м Терраса — 18,21 кв м Спальня — 9,80 кв м Спальня — 9,89 кв м Гараж — 19,87 кв м
Гостиная — 26,43 кв м Кухня — 9,90 кв м Ванная 1 — 5,58 кв м Бойлерная — 6,22 кв м Спальня — 12,09 кв м Холл — 6,10 кв м Ванная 2 — 4,87 кв м Тамбур — 2,50 кв м Терраса — 18,21 кв м Спальня — 9,80 кв м Спальня — 9,89 кв м Гараж — 19,87 кв м