Добавить в корзинуПозвонить
Найти в Дзене
ПСК "Градиент"

Дом с плоской крышей: комфорт в каждой детали

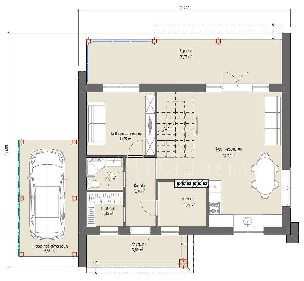
Представляем вашему вниманию уникальный проект, разработанный компанией «ПСК Градиент» — двухэтажный дом с плоской крышей площадью 167 квадратных метров. Этот проект объединяет в себе современный дизайн, комфорт и функциональность, создавая идеальное место для жизни и отдыха. Первый этаж: пространство для общения и релаксации На первом этаже дома расположена огромная кухня-гостиная, которая станет идеальным местом для семейных ужинов, дружеских посиделок и просто для отдыха после рабочего дня. Здесь вы сможете наслаждаться общением с близкими людьми и проводить время в уютной атмосфере, для посиделок на свежем воздухе в проекте предусмотрена терраса.
Также на первом этаже находится кабинет, санузел и техническое помещение, что обеспечивает удобство и комфорт в повседневной жизни.
Второй этаж: уют и спокойствие Второй этаж дома представляет собой идеальное место для отдыха и сна. Здесь расположены три спальни, одна из которых оснащена гардеробной, и второй санузел, что позволяет созда

Представляем вашему вниманию уникальный проект, разработанный компанией «ПСК Градиент» — двухэтажный дом с плоской крышей площадью 167 квадратных метров. Этот проект объединяет в себе современный дизайн, комфорт и функциональность, создавая идеальное место для жизни и отдыха.

Типовой проект загородного дома GT-167
Типовой проект загородного дома GT-167

Первый этаж: пространство для общения и релаксации

На первом этаже дома расположена огромная кухня-гостиная, которая станет идеальным местом для семейных ужинов, дружеских посиделок и просто для отдыха после рабочего дня. Здесь вы сможете наслаждаться общением с близкими людьми и проводить время в уютной атмосфере, для посиделок на свежем воздухе в проекте предусмотрена терраса.
Также на первом этаже находится кабинет, санузел и техническое помещение, что обеспечивает удобство и комфорт в повседневной жизни.

План 1 этажа
План 1 этажа

Второй этаж: уют и спокойствие

Второй этаж дома представляет собой идеальное место для отдыха и сна. Здесь расположены три спальни, одна из которых оснащена гардеробной, и второй санузел, что позволяет создать комфортные условия для всех членов семьи.

План 2 этажа
План 2 этажа

Этот проект от компании «ПСК Градиент» сочетает в себе современные технологии и материалы, обеспечивая долговечность и надёжность конструкции. Дом с плоской крышей не только выглядит стильно и современно, но и обладает рядом преимуществ, таких как простота обслуживания и возможность использования крыши в качестве дополнительной зоны отдыха.

Если вы ищете комфортное и функциональное жильё, то этот проект от «ПСК Градиент» может стать отличным выбором. Он подойдёт как для семейного отдыха, так и для постоянного проживания.