Найти в Дзене
GREY HOUSE

Каркасный дом с идеальной планировкой. Приглашаем на просмотр дома

Оглавление

Энергоэффективный каркасный дом по проекту Байкал 77м2. Готовим к сдаче клиенту.

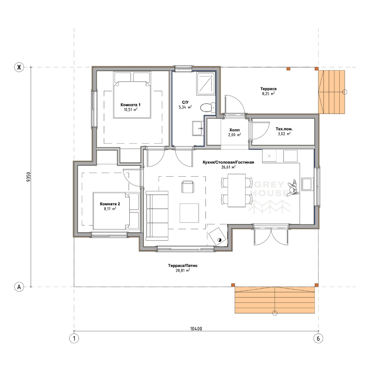
Планировка дома

Планировка дома Байкал
Планировка дома Байкал

Приглашаем вас на просмотр дома 26 и 27 октября.

Уникальная возможность побывать на объекте и увидеть своими глазами финальный продукт, познакомиться с бригадой, посмотреть подходит ли вам данный проект или нужно что-то изменить под себя!

Запись на просмотр дома обязательна!

С. Гжель, Раменский р-н., Московская обл.

-2

Комплектация дома:

- Фундамент - Железобетонные сваи 150х150х3000мм

- Защитная сетка от грызунов

- Каркас дома сухой строганный 45х195мм

- Ветрозащита - JUTAVEK 115

- Пароизоляция Ютафол Н110+скотч Delta

- Отделка снаружи - скандинавская доска толщиной 21мм с заводской покраской

- Отделка внутри дома - стены и потолок - имитация бруса толщиной 16мм, пол - OSB 22 мм

- Утепление - пол и кровля - 200 мм, наружные стены 150 мм Технониколь Роклайт, перегородки 100 мм

- Отделка пола на террасе лиственницей толщиной 28мм

- Кровля - Металлочерепица толщиной 0,45мм

- Окна ПВХ Rehau Grazio толщиной 70мм двойной стеклопакет

- Дверь входная - ПВХ Rehau толщиной 70мм

- Водосточная система и снегозадержатели GrandLine

- Ступени с поручнем

- Разводка электрики 62 точки

- Разводка труб ХВС и ГВС

- Монтаж канализационных фановых труб по точкам

- Вентиляционный выход на кровлю в кухне и в 2-х с/у - Утепленный Vilpe d125мм 1шт.

- Приточный клапан - КИВ 125мм 2 шт.

Стоимость дома - https://grey-house.ru/object/gjel/

Строим в Московской и Ленинградской областях

***
Все новости читайте в нашем телеграм-канале

Подписывайтесь на нашу группу Вконтакте

И, конечно же, подписывайтесь на нас в «Дзене»

Наши контакты:
Телефон:
8-495-504-71-33
mail@grey-house.ru
Сайт:
grey-house.ru