Добавить в корзинуПозвонить
Найти в Дзене
ЭТО ВАШ ИНТЕРЬЕР

Я влюбилась в эту квартиру! Смотрите, как можно за небольшие деньги сделать классный ремонт. Хозяйка показала, как здесь живет

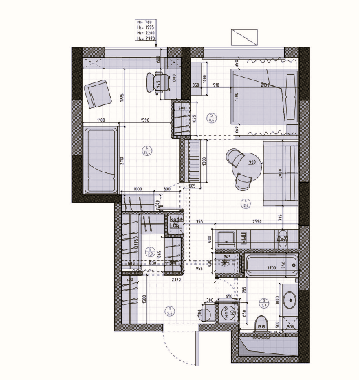
Героями сегодняшней статьи выступает молодая семейная пара с дочкой-подростком. Они продали свою старую квартиру и купили жилье побольше в новом жилом комплексе на юге Москвы. Застройщик позиционировал эту квартиру как евродвушку, хотя по факту это обычная однушка с большой кухней. И чтобы на 49-ти "квадратах" разместить гостиную, кухню, спальню и детскую — наши герои решили обратиться в дизайнерское бюро, где им создали очень классный проект, который в точности реализовали в жизни. На полу во всей квартире (кроме ванной комнаты) единым контуром уложили кварцвинил, который напоминает паркет в раскладке "ёлочка". Стены решили покрасить в нейтральный светлый оттенок. Слева от входа была установлена подвесная система хранения с закрытыми и открытиями секциями, а также компактный пуфик. Но это не единственное место для хранения. Здесь же за шторой скрывается полноценная гардеробная. Перед входом на кухню была сделана специальная ниша, где разместили холодильник. Справа от входа в помещ
Оглавление

Героями сегодняшней статьи выступает молодая семейная пара с дочкой-подростком. Они продали свою старую квартиру и купили жилье побольше в новом жилом комплексе на юге Москвы. Застройщик позиционировал эту квартиру как евродвушку, хотя по факту это обычная однушка с большой кухней.

И чтобы на 49-ти "квадратах" разместить гостиную, кухню, спальню и детскую — наши герои решили обратиться в дизайнерское бюро, где им создали очень классный проект, который в точности реализовали в жизни.

Проект

  • Местоположение: Москва, Варшавское шоссе
  • Площадь квартиры: 49 квадратных метров
  • Владельцы: семейная пара с дочкой

Прихожая

На полу во всей квартире (кроме ванной комнаты) единым контуром уложили кварцвинил, который напоминает паркет в раскладке "ёлочка". Стены решили покрасить в нейтральный светлый оттенок.

-2

Слева от входа была установлена подвесная система хранения с закрытыми и открытиями секциями, а также компактный пуфик. Но это не единственное место для хранения. Здесь же за шторой скрывается полноценная гардеробная.

Кухня-гостиная

Перед входом на кухню была сделана специальная ниша, где разместили холодильник. Справа от входа в помещение находится компактный кухонный гарнитур с фасадами под дерево.

От верхних шкафов было решено отказаться, вместо них над гарнитуром повесили состаренное зеркальное панно, которое зрительно облегчает пространство.

"Благодаря ему я могу готовить и одновременно общаться с гостями, которые сидят за обеденным столом" — говорит хозяйка.

Из-за отсутствия верхнего яруса, было решено организовать дополнительное место для хранения, которое расположено в колонне сразу при входе в помещение. Кухонный фартук и рабочая столешница сделаны из одного материала — искусственного камня.

К кухонной зоне примыкает небольшая гостиная. Здесь разметили красивый голубой диван, напротив которого организовали компактную обеденную группу. Светильник над столом можно регулировать и перемещать, если вдруг хозяевам понадобится двигать стол.

Спальня

И теперь переходим к последней функциональной зоне — спальне. Её расположили прямо возле окна и зонировали от остального пространства стеклянной перегородкой с черным графичным профилем. Также здесь есть плотные шторы, если нужно полностью изолировать спальню.

В центре спальни располагается стильная двуспальная кровать с изящным закругленным изголовьем, а напротив появился небольшой туалетный столик и шкаф для хранения, для которого специально сделали нишу.

Детская

Спальня для дочки была оформлена с учётом всех её пожеланий. На подоконнике было организовано удобное место для отдыха, где девочка могла бы читать или просто отдыхать, любуясь видом из окна. Для большего комфорта на подоконник был постелен мягкий матрас с подушками.

В нише у окна расположился рабочий уголок, в котором продумана каждая мелочь. Так же в комнате пересмотрели места для хранения вещей, книг, игрушек и тд.

Ванная комната

Ванная комната не отличается большими размерами, однако в ней удалось разместить всё необходимое.

Более того, нашлось место даже для сушильной машины, что было особенно важно для нашей героини, учитывая, что в доме есть домашние животные (собака и кошка), ребёнок, и необходимость в ежедневной стирке. Что касается отделки, то здесь использовали плитку и водостойкую краску.

-13

Если вам понравилась статья, то не забудьте поставить лайк и подписаться, чтобы не пропустить новый материал!

Так же пишите в комментариях, что вам понравилось в этом проекте, а что вызывает сомнения.