Добавить в корзинуПозвонить
Найти в Дзене
Дачные опыты

Как из двушки сделать трешку для семьи из 4 человек? Окончание.

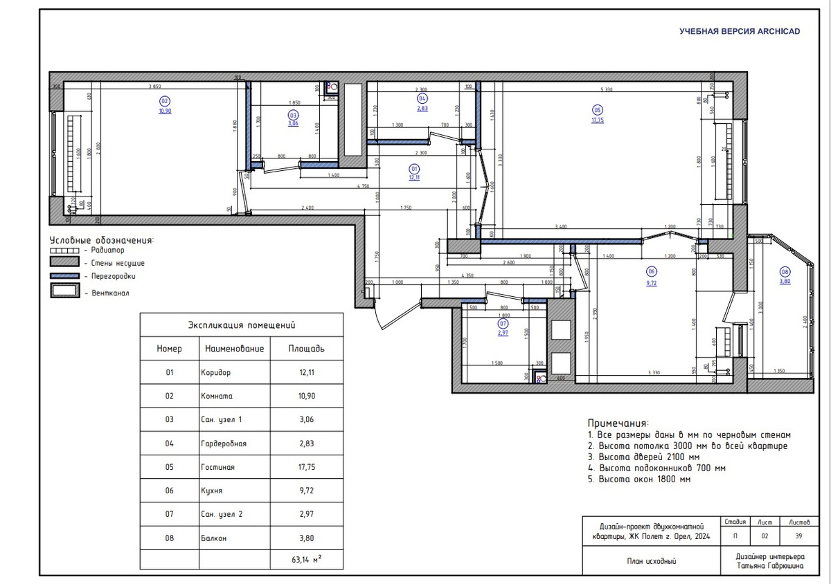
Добрый день, уважаемые друзья, подписчики и читатели! Сегодня я заканчиваю рассказ о дизайн-проекте двухкомнатной квартиры для Екатерины и Сергея, которые воспитывают двух дочерей. В предыдущих статьях вы узнали, как я, исходя из пожеланий заказчиков, при помощи перепланировки смогла выделить отдельные комнаты для родителей и детей и общую зону отдыха – гостиную, а также познакомились с визуализациями детской комнаты, коридора, санузлов, кухни и балкона. Эти статьи находится по ссылкам: Как из двушки сделать трешку для семьи из 4 человек?; Как из двушки сделать трешку? Продолжение. Сегодня подробно остановимся на дизайне спальни родителей, гардероба и гостиной. Если вы читали предыдущие статьи, то, помните, что квартира у заказчиков двухкомнатная. Комната площадью 10,9 м2 была отдана под детскую, а комнату площадью 17,75 м2 было решено разделить путем возведения раздвижной стеклянной перегородки на гостиную и спальню родителей, немного расширив их за счет коридора и кухни. Кроме то

Добрый день, уважаемые друзья, подписчики и читатели!

Сегодня я заканчиваю рассказ о дизайн-проекте двухкомнатной квартиры для Екатерины и Сергея, которые воспитывают двух дочерей. В предыдущих статьях вы узнали, как я, исходя из пожеланий заказчиков, при помощи перепланировки смогла выделить отдельные комнаты для родителей и детей и общую зону отдыха – гостиную, а также познакомились с визуализациями детской комнаты, коридора, санузлов, кухни и балкона. Эти статьи находится по ссылкам: Как из двушки сделать трешку для семьи из 4 человек?; Как из двушки сделать трешку? Продолжение.

Сегодня подробно остановимся на дизайне спальни родителей, гардероба и гостиной.

Если вы читали предыдущие статьи, то, помните, что квартира у заказчиков двухкомнатная.

Дизайн-проект двухкомнатной квартиры, Исходная план, чертеж автора.
Дизайн-проект двухкомнатной квартиры, Исходная план, чертеж автора.

Комната площадью 10,9 м2 была отдана под детскую, а комнату площадью 17,75 м2 было решено разделить путем возведения раздвижной стеклянной перегородки на гостиную и спальню родителей, немного расширив их за счет коридора и кухни. Кроме того, в результате перепланировки, изменился вход в гардероб, теперь он находится в спальне. Спальня и гостиная получились одинаковыми по площади, равной 9,18 м2.

Дизайн-проект двухкомнатной квартиры, План после перепланировки, чертеж автора.
Дизайн-проект двухкомнатной квартиры, План после перепланировки, чертеж автора.

В спальне разместилась двухспальная кровать с шириной спального места 1600 мм, две прикроватные тумбочки и вместительный шкаф.

Дизайн-проект двухкомнатной квартиры, Спальня, визуализация автора.
Дизайн-проект двухкомнатной квартиры, Спальня, визуализация автора.

Стену за изголовьем кровати я оформила деревянными панелями в сочетании с зеркальными. Зеркальные панели, помимо того, что они просто красивы, добавляют в комнату света.

В спальне предусмотрено 3 сценария освещения – точеные потолочные светильники обеспечат максимальное освещение, настенные бра добавят уюта и интимности, споты над изголовьем предназначены для чтения.

В гардеробе в двух сторон установлены вместительные системы хранения, между которыми разместилось большое зеркало.

В гостиной разместился большой уютный диван с атаманкой, на котором с комфортом разместятся все члены семьи, при необходимости диван раскладывается.

Рядом с диваном – журнальный столик, напротив телевизор. Телевизор располагается на передней стенке шкафа, в котором предусмотрены открытые полки и закрытые отсеки для хранения.

Дизайн-проект двухкомнатной квартиры, Гостиная, визуализация автора.
Дизайн-проект двухкомнатной квартиры, Гостиная, визуализация автора.

Площадь помещений совсем небольшая, тем не менее, и в спальне, и в гостиной удалось разместить все необходимое.

Работа над проектом закончена, теперь мне предстоит сдать его аттестационной комиссии.

Буду признательна за ваши отзывы о моем проекте, а если вам нужна консультация по расстановке мебели или дизайн-проект для ремонта пишите мне на электронный адрес: theana@yandex.ru и мы обсудим вашу задачу.

До новых проектов!